مسابقه طراحی برج باغ مسکونی هامون

0

اطلاعات پروژه

Peida Studio

نوع مسابقه: طراحی مسکونی
سال انجام پروژه : 1402
نقش: طراح
موقعیت : تهران
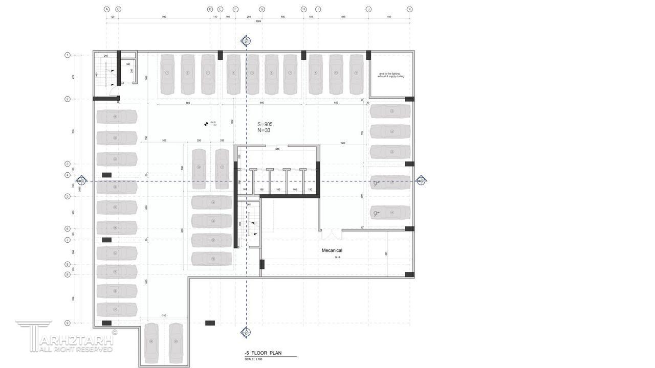
متراژ زیربنا : 17366
مساحت زمین : 2610
کارفرما : دکتر پرداختی

خدمات ارائه شده توسط طراح

خدمات طراحی و کانسپت
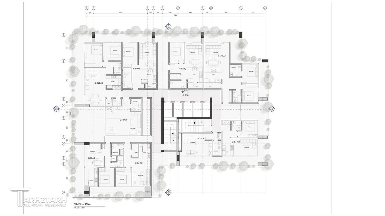
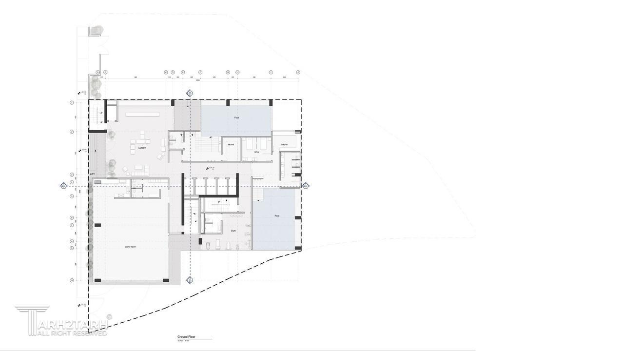
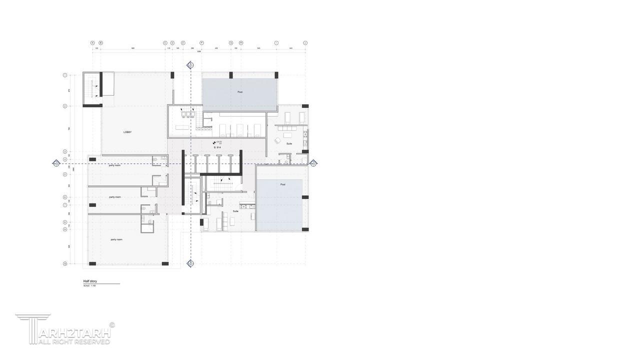
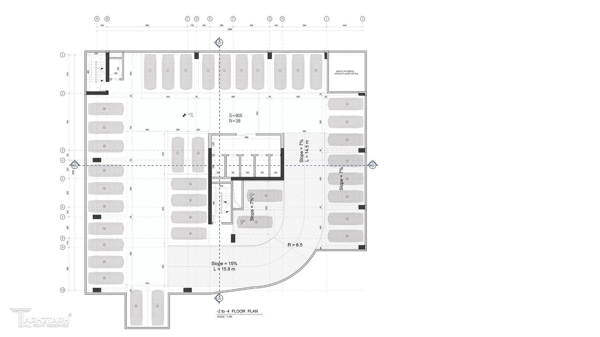
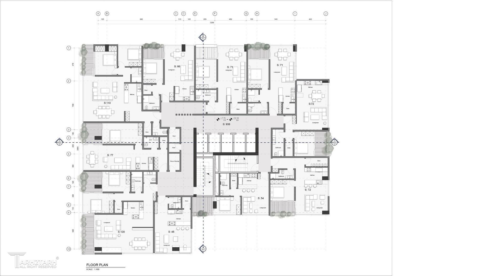
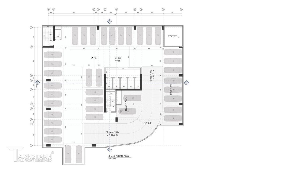
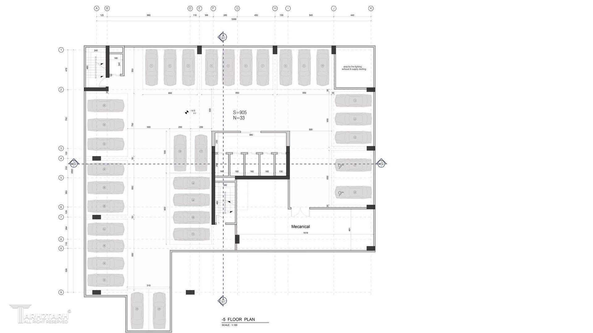
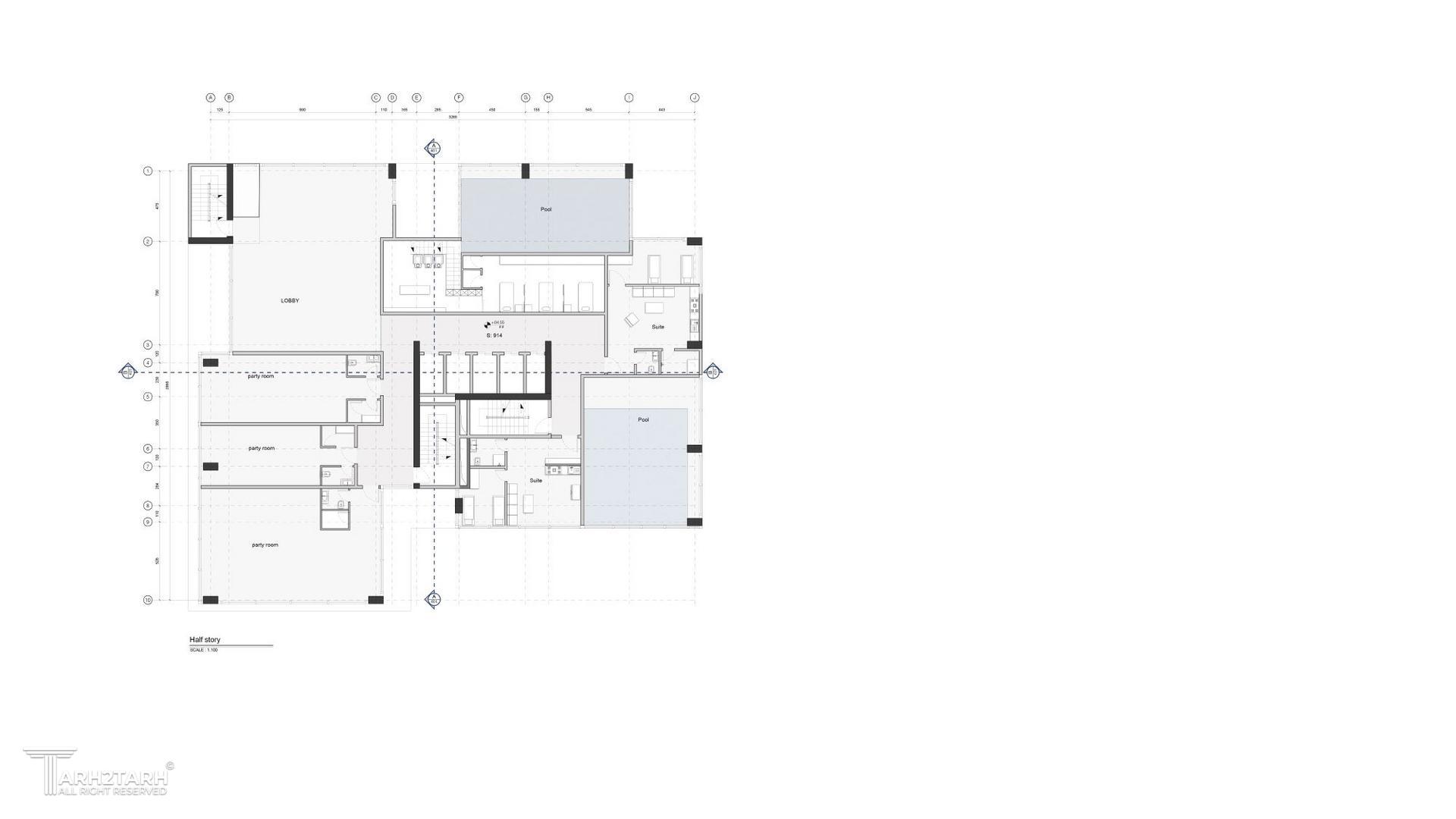
طراحی پلان (نقشه معماری) فاز 1
طراحی نما
طراحی منظر، فضای سبز، لند اسکیپ، روف گاردن و محوطه
طراحی نورپردازی

موقعیت مکانی پروژه

پیشنهاد و بازخورد