اطلاعات پروژه
ARMINARMANSTUDIO
نوع مسابقه:
طراحی مسکونی
سال انجام پروژه :
1403
نقش:
طراح
موقعیت :
تهران
متراژ زیربنا :
6500
مساحت زمین :
1200
کارفرما :
علی کاتوزیان
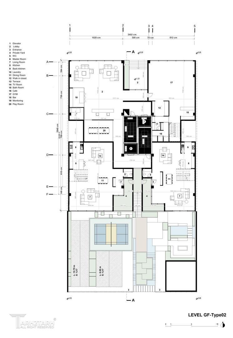
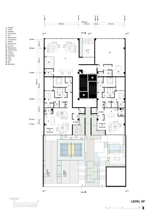
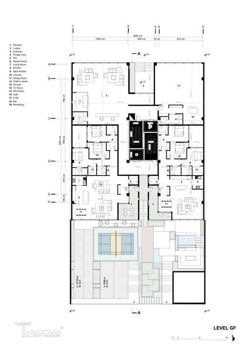
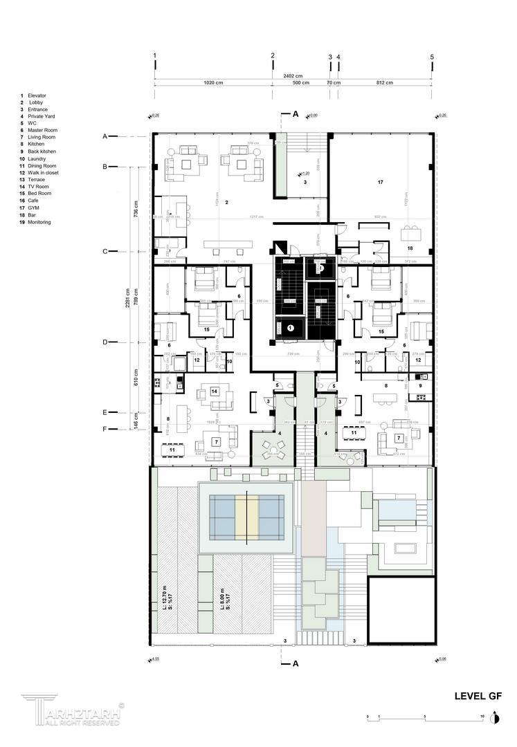
خدمات ارائه شده توسط طراح
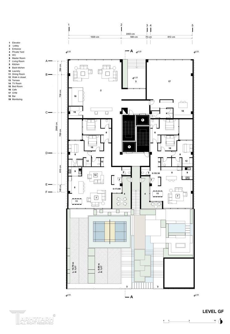
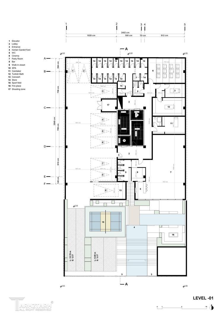
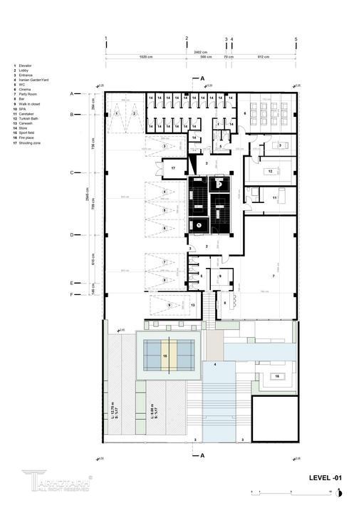
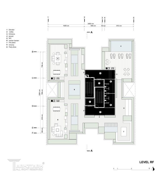
خدمات طراحی و کانسپت
طراحی پلان (نقشه معماری) فاز 1
طراحی نما
طراحی داخلی
طراحی منظر، فضای سبز، لند اسکیپ، روف گاردن و محوطه
طراحی نورپردازی
موقعیت مکانی پروژه
برای ثبت کامنت ابتدا وارد سایت شوید.
نیوشا محلوجی
فضا حس آرامش و تعادل میده 🌷
3 ماه پیش