مسابقه طراحی ویلای ورجین (لواسان)

0

اطلاعات پروژه

استودیو معماری نو

نوع مسابقه: طراحی ویلا
سال انجام پروژه : 1404
نقش: طراح
موقعیت : لواسان
متراژ زیربنا : 400
مساحت زمین : 1000
کارفرما : مهندس عباس صلحی

خدمات ارائه شده توسط طراح

خدمات طراحی و کانسپت
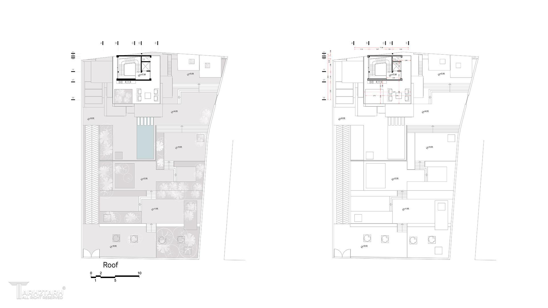
طراحی پلان (نقشه معماری) فاز 1
طراحی نما
طراحی داخلی
طراحی منظر، فضای سبز، لند اسکیپ، روف گاردن و محوطه
طراحی نورپردازی

موقعیت مکانی پروژه

پیشنهاد و بازخورد