مسابقه طراحی پلان و نما یاس فرمانیه

0

اطلاعات پروژه

FOR ARCHITECTURE OFFICE

نوع مسابقه: طراحی مسکونی
سال انجام پروژه : 1403
نقش: طراح
موقعیت : تهران
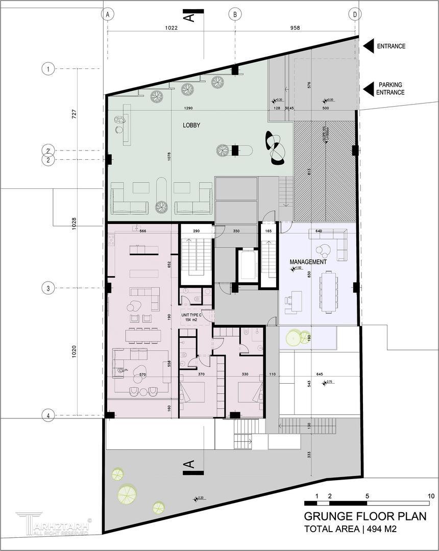
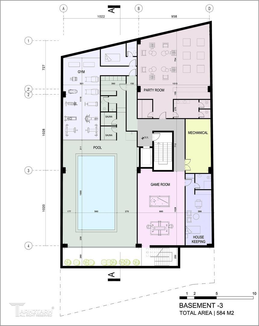
متراژ زیربنا : 4850
مساحت زمین : 728
کارفرما : Amir-H

خدمات ارائه شده توسط طراح

خدمات طراحی و کانسپت
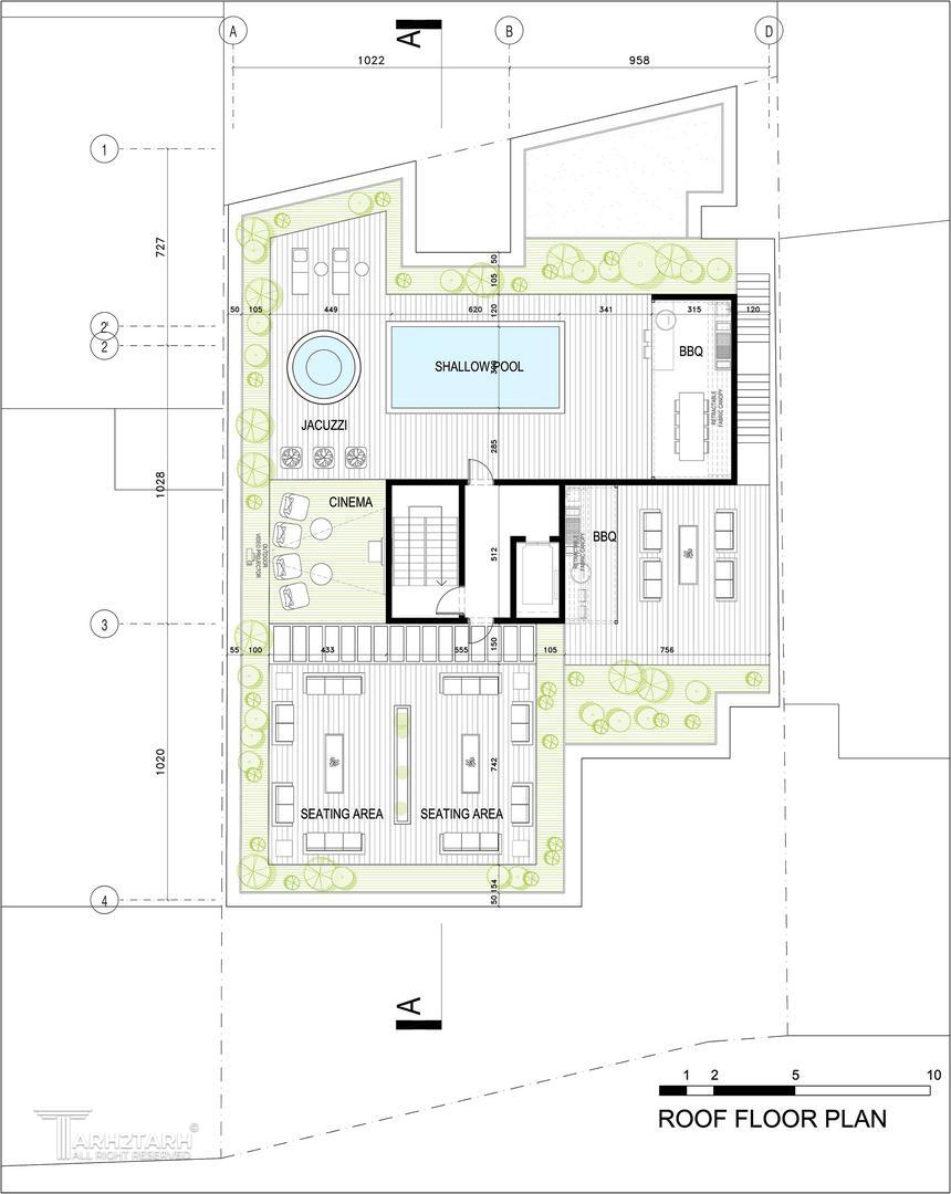
طراحی منظر، فضای سبز، لند اسکیپ، روف گاردن و محوطه
طراحی نورپردازی
طراحی پلان (نقشه معماری) فاز 1
طراحی نما

موقعیت مکانی پروژه

پیشنهاد و بازخورد