طراحی نما و داخلی تچرا پالاس 8 مهرشهر

طراحی نما و داخلی تچرا پالاس 8 مهرشهر

شروع مسابقه : 24 اسفند 1401

پایان ثبت‌نام : پایان یافته

پایان مسابقه : 03 خرداد 1402

مبلغ ورودی : 255,000 تومان

2,000,000,000 ریال جایزه نقدی
تعداد شرکت کنندگان: 21 نفر

اطلاعات پایه

  • نوع مسابقه:

    طراحی مسکونی

  • مبلغ جایزه:

    2,000,000,000 ریال

  • متراژ زیربنا:

    3300 متر مربع

  • وضعیت مسابقه:

    پایان یافته

  • موقعیت:

    کرج- مهرشهر

  • نام شهر:

    کرج

  • مساحت زمین:

    600 متر مربع

نمودار زمانی مسابقه

  1. شروع

    24_اسفند

  2. پایان ثبت‌نام

    20_اردیبهشت

  3. دفاعیه

    05_تیر

  4. پایان مسابقه

    03_خرداد

  5. اعلام نتایج

    12_تیر

مواردی که شما باید ارسال کنید

  • تصاویر سه بعدی سه وجه نما با فرمت JPG
  • تصاویر سه بعدی نورپردازی سه وجه نما با فرمت JPG
  • تصاویر سه بعدی طراحی داخلی لابی طبقه همکف (چهار رندر) با فرمت JPG
  • تصاویر سه بعدی طراحی داخلی سالن و یک اتاق خواب ۲۲۰ مترمربع (چهار رندر) با فرمت JPG
  • تصاویر سه بعدی روف گاردن و محوطه (چهار رندر) با فرمت JPG

اطلاعات بیشتر

مرتضی نیک فطرت

منتور

مرتضی نیک فطرت

  • عضو هیات علمی و مدیر گروه معماری و شهرسازی دانشگاه آزاد اسلامی واحد کرج
  • معمار، پژوهشگر، خوانش گرِ معماری.
  • مترجم کتاب های رهیافت پدیدارشناسی در اندیشه ی پیتر زومتور(انتشارات علم معمار) پرسش های ادراک، و...
  • پدیدارشناسی معماری(انتشارات فکر نو) گفتگو با میس وندرروهه(انتشارات فکر نو) اتمسفر معمارانه(انتشارات فکر نو) هایدگر برای معماران(انتشارات فکر نو) احساسی از تاریخ(انتشارات فکرنو) معماری و انفصال( انتشارات فکر نو) تاخر(انتشارات فکر نو) درآمدی بر معماری ژاپن(انتشارات فکر نو) گفتگو دانشجویان با تادائو آندو(انتشارات فکرنو).
احسان مالکی

منتور

احسان مالکی

  • مدیر عامل شرکت مهندسین مشاور آتی زیست
  • طراح و مجری برجهای مسکونی، اداری ویلایی
  • منتخب جایزه معمار در سال1396 با پروژه خانه_آپارتمان لواسان
  • داور چندین جایزه معماری
  • طراح چندین برج مسکونی در تهران(برج ادیب، هزار آسمان، گلزار1 و 2)

توضیحات تکمیلی

• جلسه دفاعیه مسابقه در تاریخ 1402/04/05 برگزار شد. 1402/04/10
• مبلغ مسابقه و جایزه نفرات برترمسابقه افزایش یافته است. 1402/02/06

• ارتفاع طبقات مطابق با برش‌‎های موجود در فایل اتوکد در نظر گرفته شود. به‌روز‌رسانی شده در تاریخ 1402/01/19

موارد طراحی
طراحی سه وجه نما
طراحی لابی
طراحی روف گاردن و محوطه
طراحی سالن و اتاق خواب واحد مسکونی


جایزه مسابقه 
بنا به درخواست کارفرما در این مسابقه مبلغ 170 میلیون تومان 200 میلیون تومان برای نفرات برتر به شرح ذیل در نظر گرفته می‌شود.
نفر اول: 110 میلیون تومان  130 میلیون تومان
نفر دوم: 45 میلیون تومان     50  میلیون تومان
نفر سوم: 15 میلیون تومان    20  میلیون تومان


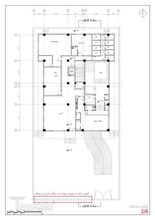
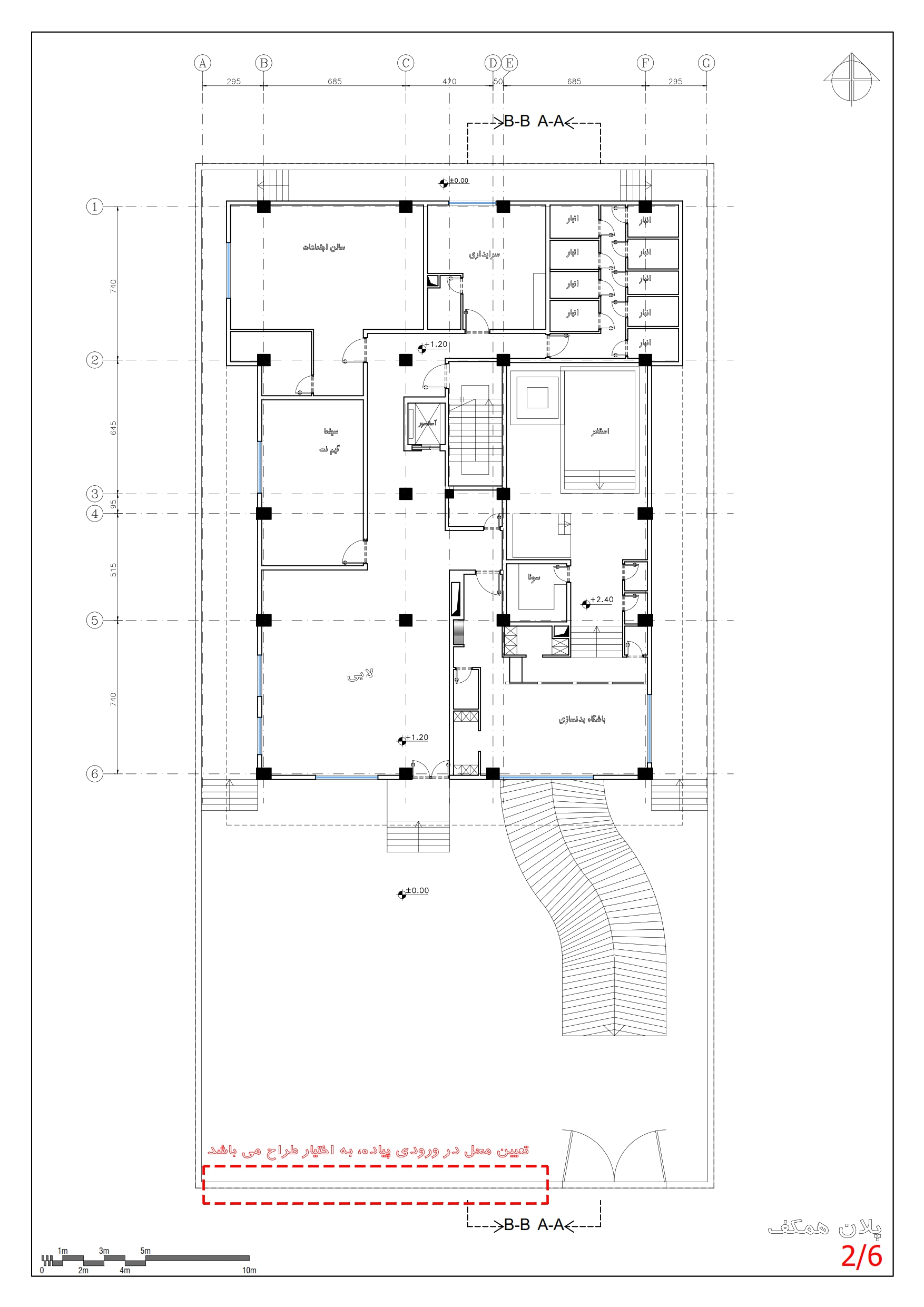
توضیحات پروژه
با توجه به بافت شهرسازی مهرشهر، ساختمان وسط ساز می باشد و در نمای اصلی و نماهای جانبی باید سقف شیبدار دیده شود.
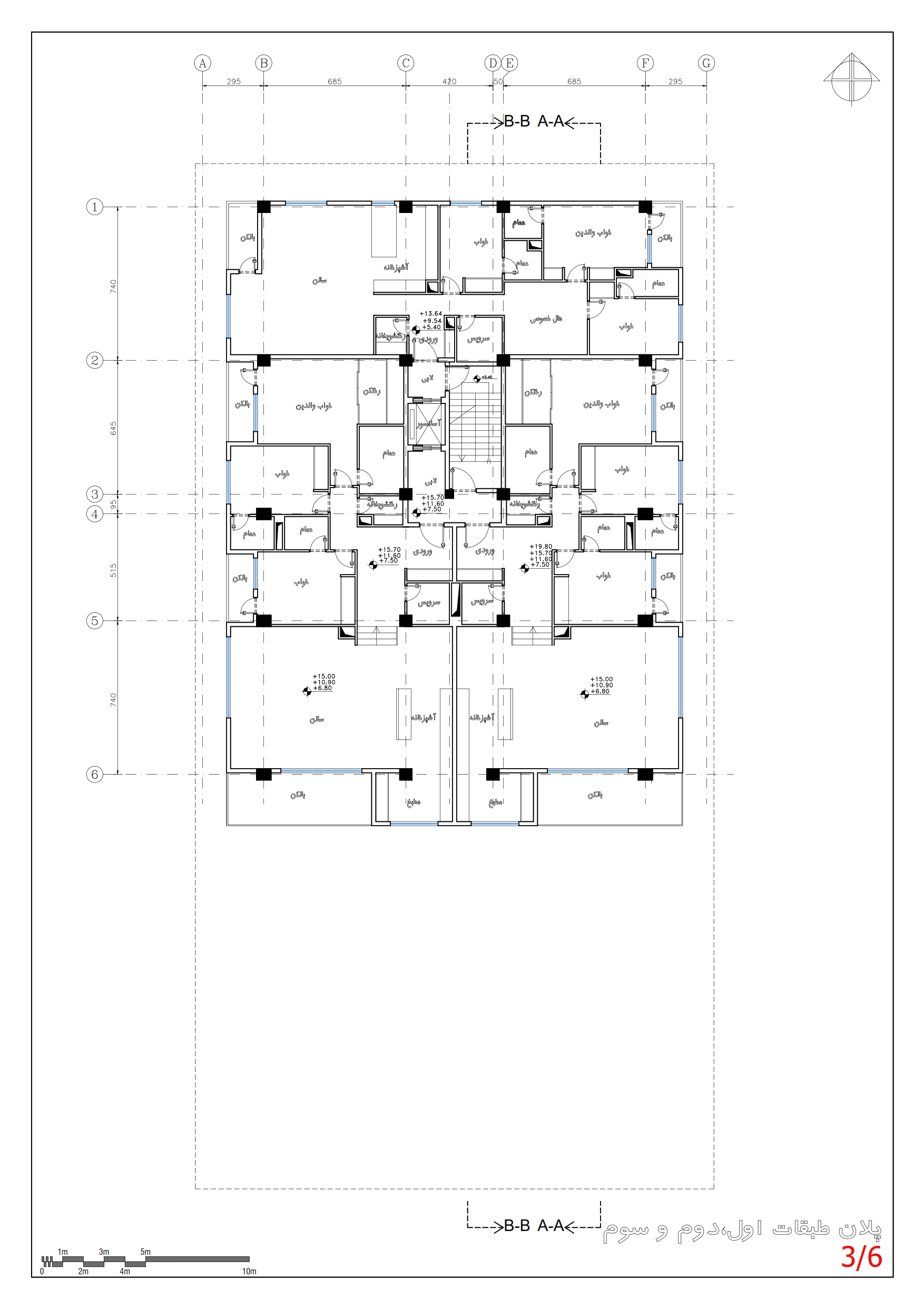
مشخصات واحدهای مسکونی: سه طبقه مسکونی روی همکف (نه واحد، که شش واحد 220 مترمربع و سه واحد 170 مترمربع است.)
ارتفاع طبقات، کف تا کف 410 سانتی متر می‌باشد. ارتفاع طبقات مطابق با برش‌‎های موجود در فایل اتوکد در نظر گرفته شود. به‌روز‌رسانی شده در تاریخ 1402/01/19

وضعیت پروژه
در حال اجرای سازه

متراژ بنا
3300 مترمربع

نوع سازه 
بتنی

نوع سیستم گرمایشی سرمایشی
مینی چیلر، پکیج فن کوئل

سبک طراحی 
مدرن


طراحی نما 
سبک طراحی به صورت مدرن باشد .
اختلاف ارتفاع نما از نمای همجوارنباید از 120 سانتی‌متر تجاوز کند.
طراحی وجوه جنوبی و ضلع های شرقی و غربی
نورپردازی در نما انجام شود.
طراحی پنجره‌ها با رعایت اصول شهرسازی و معماری و فنی و بهداشتی به عهده طراح محترم می‌باشد.
• استفاده از فلاورباکس و گلکاری درجلوی تراس‌ها و محل‌هایی که جهت رسیدگی در دسترس هستند، امکان پذیر است.
در مورد پنجره‌ها، دست طراح بازاست و در صورت استفاده از پنجره قدی شیشه‌ها باید لمینیت شوند.
محل پنجره‌ها در پلان‌ها شماتیک است و تعیین محل و ابعاد دقیق پنجره‌ها براساس طرح نما در اختیار طراح می‌باشد.

متریال نما
شیشه، سنگ، آجر، فلز، سیمان و سرامیک خشک و سایر
انتخاب متریال موارد بالا برای طراحی نما و رنگ و درصد استفاده به عهده طراح می‌باشد.


طراحی لابی
سبک طراحی مدرن
انتخاب متریال و رنگ و درصد استفاده از متریال به عهده طراح محترم می باشد.


طراحی داخلی 
طراحی سالن و یک اتاق خواب مستر و سرویس بهداشتی واحد 220 مترمربع
انتخاب متریال کف به پیشنهاد کارفرما استفاده از پارکت چوبی و سنگ اسلب است.
طراحی اتاق خواب و دیوارها به سبک مدرن باشد.
به پیشنهاد کارفرما در طراحی حمام از سنگ اسلب و در طراحی سرویس بهداشتی از فرنگی ترک و شیرآلات شودر استفاده شود.


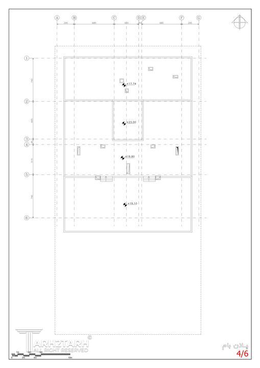
طراحی روف گاردن
فضاهای مورد نیاز در طراحی روف گاردن شامل : آب نما، باربیکیو، شومینه، نشیمن و فضای جمع شدن رو باز و درختچه‌های خاص
متریال مورد استفاده و رنگ و درصد استفاده  در کف و دیوارها به عهده طراح محترم است.


طراحی محوطه 
متریال مورد استفاده و رنگ و درصد استفاده در کف و دیوارها به عهده طراح محترم است.
طراحی دیوار محوطه
طراحی ورودی مجموعه
طراحی فضای سبز
طراحی آبنما
طراحی کف سازی 
طراحی نورپردازی
طراحی نشیمن سرپوشیده


الزامات کارفرمای پروژه 
عدم استفاده از فرم‌های نامتعارف و نامانوس (نظیر کشتی، مجسمه، میوه ها و ...) در طراحی 
عدم استفاده از رنگ‌های نامتعارف و ناهمگون در نمای ساختمان
پرهیز از به‌کارگیری مصالح متعدد در نمای ساختمان (به غیر از بازشوها و حفاظ‌های الحاقی مربوطه، استفاده حداکثر از سه نوع مصالح مجاز می‌باشد.)
پرهیز از به کارگیری مصالح برنده یا شکننده در طبقات همکف و اول، در محدوده‌ای که در تماس فیزیکی با انسان قرار می‌گیرد.(از قبیل فلز و ...) در صورت استفاده از شیشه، باید مصالح مورد مصرف از نوع شیشه لمینت باشد.

احکام ایجابی (اقدامات)
نماسازی جانبی در نماهای قابل رویت ساختمان‌ها، با مصالح متناسب با نمای اصلی ساختمان و نمای ساختمان‌های مجاور
ضرورت هماهنگی خط پیشانی ساختمان، پیش آمدگی و تراز بام با ساختمان‌های همجوار
الزامیست پلاک ساختمان‌ها در ارتفاع 205 سانتی‌متر از کف معبر نصب گردد.
در طراحی پنجره‌ها، تعبیه بازشوی مناسب با قابلیت دسترسی به تمام نقاط نمای پنجره به منظور رفع آلودگی الزامی می‌باشد.
در نماهای اصلی و جانبی می‌بایست طرح نما در بالاترین نقطه بصورت شیب‌دار نمایان باشد و در وسط بام می‌بایست سطح صاف لازم جهت نصب تجهیزات تاسیساتی و روف گاردن بصورتی لحاظ گردد که از معابر اطراف دیده نشود و خللی در رویت بام بصورت شیب دار وارد نشود.
الزامیست درپوش دیوار جان پناه بام از مصالح مناسب همچون فلاشینگ فلزی، بتنی و ... با تامین آبچکان و با شیب مناسب و حتی الامکان به صورت ممتد و به نحوی طراحی گردد که از لغزش آب بر روی نما و ایجاد لکه و آلودگی جلوگیری شود.
تناسب میان رنگ بام با مصالح استفاده شده ضرورت دارد.
رعایت ضوابط و مباحث 18 و 19 در طراحی و احداث نما ضرورت دارد.
توصیه ها
استفاده از مصالح قابل شستشو در طبقه همکف به منظور حفظ و زیبایی نما
نمای بنا می‌تواند از جنس آجر بندکشی، سیمان به صورت آبساب یا شیشه یا آبچکان مناسب، چوب و ... و یا ترکیبی از این مصالح باشد. (سنگ باید قابلیت استحکام در برابر بارندگی و حفظ رنگ در تابش خورشید برخورد داشته باشد.)
بهره‌گیری از مصالح بوم آور و مقاوم 
بهره‌گیری از ارزش‌های معماری ایرانی در طراحی نما و اجزای آن
استفاده از جعبه گل در لبه‌ی بالکن‌ها و در مجاورت پنجره‌ها مشروط به رعایت اتصال و ایستایی مناسب و اجرای زهکشی مناسب توصیه می‌شود.
پیش بینی فضای مورد نیاز جهت خشک نمودن البسه در محدودهای خارج از دید عموم 
در پلاک‌های شمالی احداث سردرب به شرط ایجاد استحکام لازم و عدم احداث هر گونه بنای الحاقی از جمله نگهبانی و ... بلامانع است.
استفاده از پوشش‌های گیاهی در سطح بام – روف گاردن (بام سبز) ساختمان با رعایت ضوابط و استانداردهای فنی
چنانچه در نمای ساختمان از تکنولوژی‌های نوین و مصالح جدید با خصوصیات ویژه استفاده شده است، ارائه مدارک مربوط به استاندارد بودن آن‌ها توسط مراجع دیصلاح همچون اداره استاندارد و مرکز تحقیقات ساختمان و مسکن الزامیست.

 

 

امتیازات این مسابقه

انصراف از مسابقه شرکت در مسابقه فینالیست تقدیر شونده نفر سوم نفر دوم نفر اول
-20 10 50 50 100 300 600

توجه!

لطفا موارد زیر را حتما مطالعه فرمایید
• فایل اتوکد و ویدئوها و اطلاعات تکمیلی پروژه در قسمت فایل‌های راهنما برای دانلود موجود است.
•  درصورت داشتن هر گونه سوال در مورد روند مسابقات ما و یا نحوه پرداخت جوایز به قسمت سوالات متداول مراجعه فرمایید و یا از طریق تیکت با تیم پشتیبانی طرح تو طرح، با ما در ارتباط باشید.
• هر گونه لوگو و اسم خود در طرح‌های ارسالی ممنوع می‌باشد و درصورت مشاهده باعث حذف طرح‌های شما می‌گردد.
• در صورتی‌که هر طراح یا دفتر طراحی، در مسابقه شرکت کند و پس از اتمام مسابقه، فایل‌های ارسالی خود را تکمیل ننماید، از روند مسابقه حذف خواهد شد.
• لطفا فایل‌های خود را تا جایی که مقدور هست با گوشی آپلود نکنید.
• محدودیتی در ارائه چند طرح توسط یک گروه یا شرکت‌کننده نخواهد بود اما لازم است به ازای ارسال هر طرح ثبت نام مجدد و پرداخت مجزا انجام شود و یا ارسال به صورت تیم صورت پذیرد که در این صورت نیز نیاز به افزودن تیم در پنل کاربری و پرداخت ورودی مسابقه می‌باشد. (برای اطلاعات بیشتر در مورد تیم کلیک نمایید.)
•  در طول مسابقه حتما پرسش و پاسخ‌ها را مطالعه کنید و قبل از مطرح کردن پرسشی، سوالات دیگر طراحان را مطالعه فرمایید.
• اگر مطلبی به مسابقه اضافه شود، در طول مسابقه با رنگ آبی به همراه تاریخ در قسمت توضیحات تکمیلی نوشته خواهد شد، لطفا در طول مسابقه اطلاعات پایه را مطالعه کنید.
•  در طول مسابقه حتما وارد بخش اخبار مسابقه شوید و از آخرین اطلاعات مربوطه (حتی پس از پایان مسابقه) مطلع شوید.


رندر شما باید خصوصیات زیر را داشته باشند
•  ابعاد عکس عرض حداکثر تا ۲۵۰۰ پیکسل
•  ابعاد عکس طول حداکثر  تا ۲۵۰۰ پیکسل
•  رزولوشن حداکثر ۱۵۰
•  فرمت عکس شما JPG
•  حجم عکس شما ماکسیمم ۳ مگابایت
•  اتوکد با ورژن ۲۰۱۰ به پایین آپلود شود.

پیشنهاد و بازخورد