0
طراحان
طراحان برتر
رزومه طراحان
پرسشهای متداول طراحان
آرشیو مسابقات
خدمات منتورینگ
متقاضیان طراحی
خدمات ما
درخواست مشاوره
پرسش های متقاضیان طراحی
خدمات منتورینگ
قیمت طراحی
طراحی مسکونی/ اداری/ تجاری
طراحی ویلا
خدمات طراحی
نوع خدمات
قیمت طراحی نما
قیمت طراحی پلان
کاربری ساختمان
قیمت طراحی ویلا
قیمت طراحی مسکونی
قیمت طراحی اداری/تجاری
مجله طرح تو طرح
پیشنهادها و بازخورد
ورود | ثبت نام
ورود/ثبت نام
مجله
کاربران
مسابقات
خانه
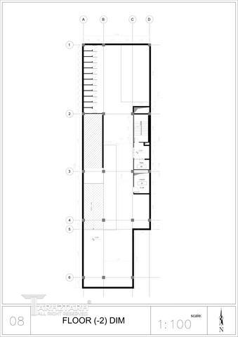
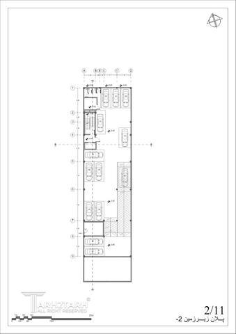
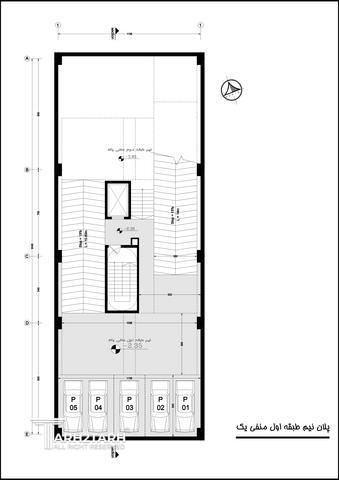
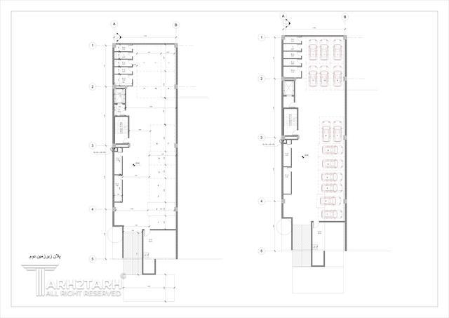
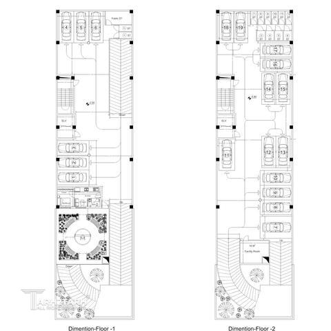
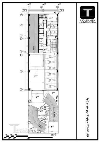
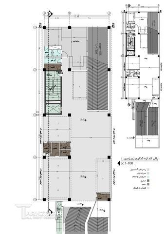
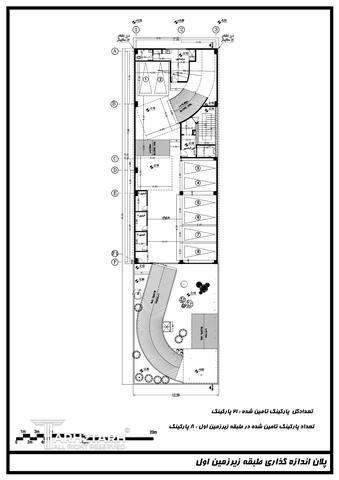
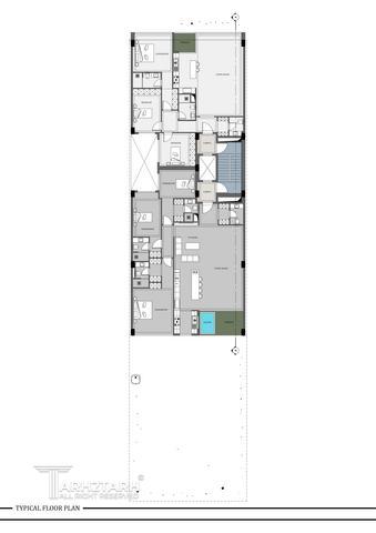
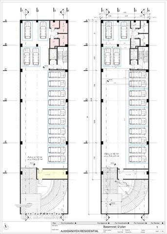
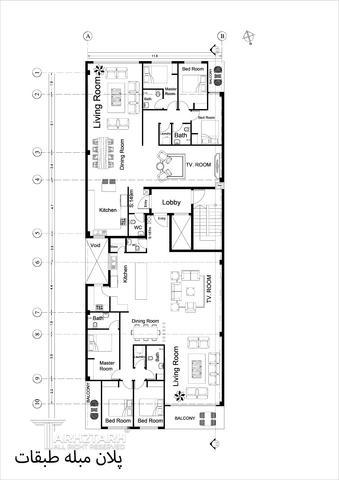
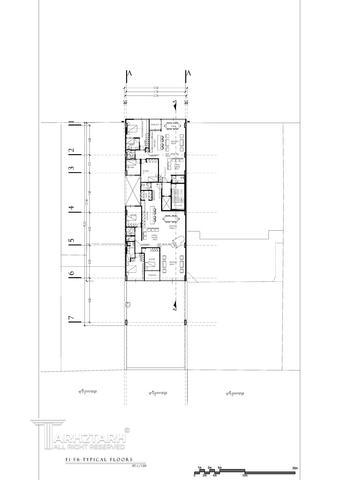
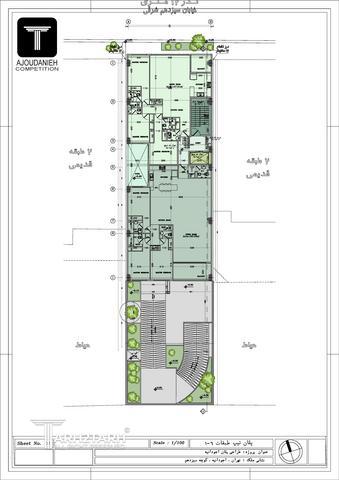
طراحی پلان آجودانیه
مسابقه عمومی
750,000,000
ریال
جایزه نقدی
تعداد شرکت کنندگان: 137 نفر
اطلاعات پایه
فایلهای راهنما
اخبار مسابقه
پرسش و پاسخ
نتایج
برای دیدن اطلاعات پایه و توضیحات مسابقه، صفحه اصلی پروژه را مرور کنید.
مشاهده اطلاعات پایه
نفر 1 - چارچوب استودیو
نفر 2 - توسعه پایدار هزاره سوم
فینالیست ها
توسعه پایدار هزاره سوم
استودیو نوجای
محمدرضا جوادی
امیرعلی ماهوتچیان اصل
استودیو طراحی بَناوا
گروه مهندسی ای آر
بابک عبدلی
گروه مهندسی و معماری BE ONE
OVA
Mohammad Amin bahramian- hanieh ghasemnezhad
RM Studio
پریسا چیوا
چارچوب استودیو
سهیلا عباسی
طرح های ارسالی
مونا ساجدی
یاسمن کیامقدم
هادی بیگلری (گروه معماری ایدری)
گروه معماری سوشیانت
بهروز هاشمی
شرکت مهندسین مشاور معماری و محیط
sepehr ebrahim kermani
فائزه کلهر
اسد میرعمادی
Faramarz Sattari
میلاد زارع
دفتر طراحی مسرور
سید سجاد محمدی
کسری بهارنژاد
فرناز برهانی
وحید رهبری مندولکانی
amir aziznezhad
معماربنا پایدار
نوید جمالی
بابک بزرگمهر
گروه معماری آران
سیدمحمد زاهدی
kiani studio
parisa keshavarz hadadha
علیرضا میثاقی
سماء نادری
عرفان شریفی
milad moradi
فهیمه محرابی
نیکان فرجام
محمود معماری
مسعود
مسعود بابایی
امیر ادیب منش
محمود جمشیدی
فرناز برهانی
سیروان عبداله زاده
آیدا کریمی
فرشاد فرهد
اتابک محمدی
بهناز مرادی
علی موسوی
مهرناز رنجکش
جهانی
محسن فرجی
امین شیرزاد
2E STUDIO
میثم معدنی پور
معماران مرز سیال
راحله سیدعربی
بهنام ندیمی
بیان یوسفی راد
ویلا پلاس
پوریا پورشهسواری
بهزاد قرجه
استودیو معماری کاژ
سیروان مهرابی
amir morshedloo
ساره لطف الهی
محدثه منوری
ملانی باغداساریانس
وحید میردار
علیرضا لباف
نفیسه زمانی درکانی
hanie ghasemnezhad
مریم سادات میرابیانه
گروه معماری آشا
نهان
مگا
همسو
G | D Design Studio
استودیو فردا
Teamino(تیمینو)
استودیو معماری خاک
محمدافشار
معمار
پیشنهاد و بازخورد