طراحی نما و داخلی دولت-3

طراحی نما و داخلی دولت-3

شروع مسابقه : 17 آبان 1401

پایان ثبت‌نام : پایان یافته

پایان مسابقه : 18 دی 1401

مبلغ ورودی : 150,000 تومان

700,000,000 ریال جایزه نقدی
تعداد شرکت کنندگان: 50 نفر

اطلاعات پایه

  • نوع مسابقه:

    طراحی مسکونی

  • مبلغ جایزه:

    700,000,000 ریال

  • متراژ زیربنا:

    3200 متر مربع

  • وضعیت مسابقه:

    پایان یافته

  • موقعیت:

    تهران -دولت

  • نام شهر:

    تهران

  • مساحت زمین:

    500 متر مربع

نمودار زمانی مسابقه

  1. شروع

    17_آبان

  2. پایان ثبت‌نام

    04_دی

  3. پایان مسابقه

    18_دی

  4. اعلام نتایج

    18_بهمن

مواردی که شما باید ارسال کنید

  • تصاویر سه بعدی 2 وجه نما (نمای جنوبی و غربی ) با فرمت JPG
  • تصاویر سه بعدی نورپردازی 2 وجه نما (نمای جنوبی و غربی ) با فرمت JPG
  • تصویر سه بعدی طراحی محوطه شامل کف سازی، فضای سبز و ... با فرمت JPG
  • تصویر سه بعدی طراحی داخلی لابی و سالن انتظار همکف با فرمت JPG
  • تصویر سه بعدی طراحی داخلی سالن واحدجنوبی با فرمت JPG
  • تصویر سه بعدی طراحی داخلی آشپزخانه واحد جنوبی با فرمت JPG
  • تصویر سه بعدی طراحی داخلی اتاق خواب والدین واحد جنوبی با فرمت JPG
  • آلبوم کلیه مدارک به همراه توجیح طرح با فرمت PDF

توضیحات تکمیلی

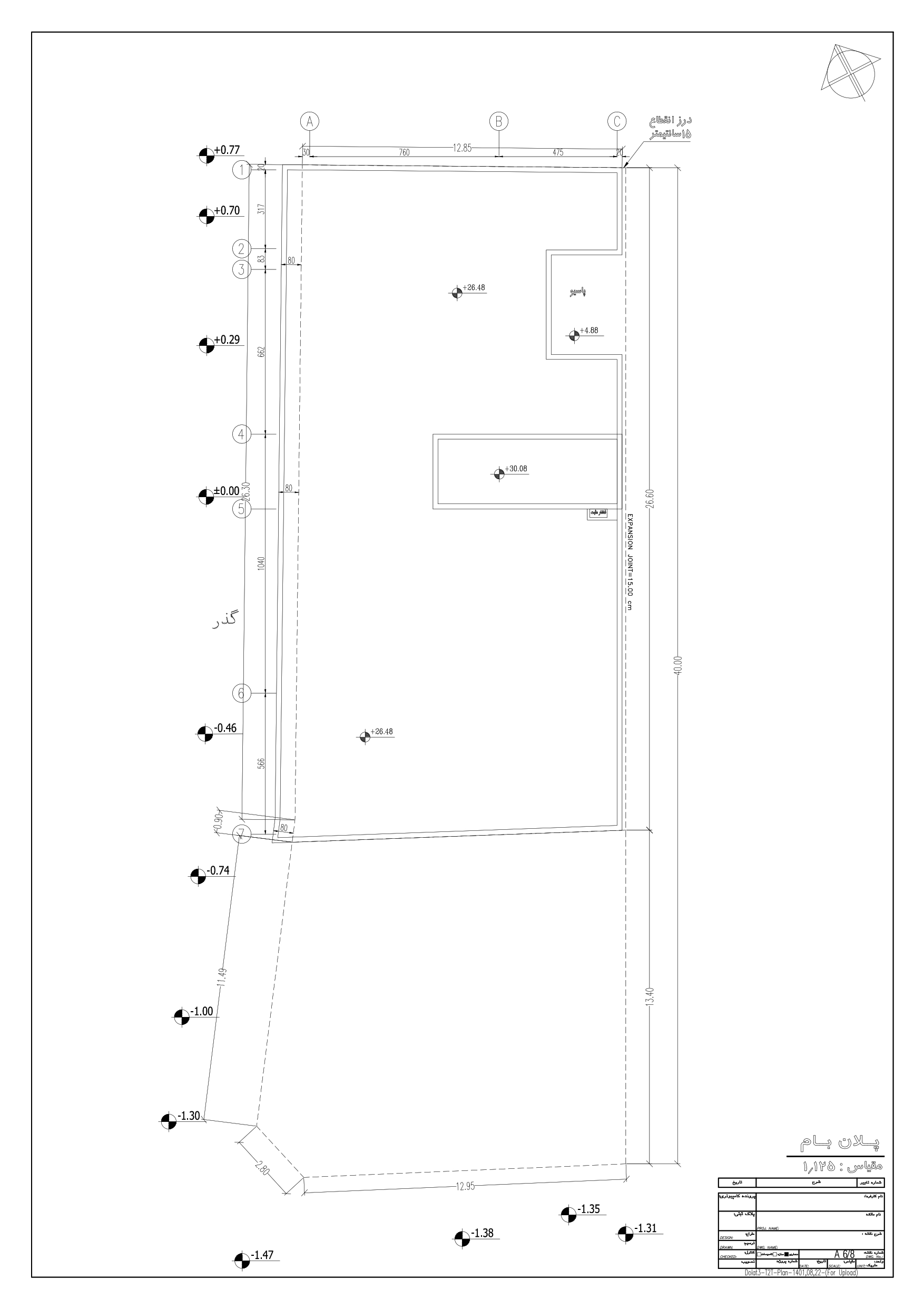
فایل اتوکد و تصاویر پلان‌ها با مشخص کردن ورودی خودرو و عابر به روزرسانی شد. 22-08-1401
اطلاعات پایه بخش طراحی محوطه به روز رسانی شد. 19-09-1401


موارد طراحی
طراحی نما
طراحی داخلی مسکونی واحد جنوبی
طراحی لابی 
طراحی محوطه (Landscape)


جایزه مسابقه 
بنا به درخواست کارفرما در این مسابقه مبلغ 70 میلیون تومان برای نفر برنده به شرح ذیل در نظر گرفته می‌شود.
•  نفر برنده: 50 میلیون تومان
•  نفر منتخب به صلاحدید کارفرما برای تهیه آلبوم نما: 20 میلیون 
این فرد پس از بستن قرارداد با کارفرما، ملزم به تهیه آلبوم نما برای ارائه به کمیته نما منطقه 3 شهرداری تهران می‌باشد. (نمونه مدارک جهت تکمیل آلبوم نما منطقه 3 شهرداری تهران را از اینجا مطالعه فرمایید). توجه داشته باشید برای تهیه آلبوم نما فرد منتخب موظف به طراحی روف گاردن و جانمایی تاسیسات در پلان بام خواهد بود که مضاف بر موارد طراحی مطابق با خواست‌های موجود در اطلاعات پایه مسابقه است همچنین می‌توانید مفاد قرارداد در رابطه با تهیه آلبوم نما را با کلیک بر روی لینک زیر مطالعه نمایید.
مفاد قرارداد تهیه آلبوم نما


* لطفا ویدئو توضیحات کارفرما در ارتباط با مسابقه را حتما مشاهده فرمایید. (روی لینک کلیک کنید)
* در طول مسابقه حتما پرسش وپاسخ‌ها را مطالعه کنید و قبل از مطرح کردن پرسش خود، سوالات دیگر طراحان را مطالعه فرمایید.


سبک طراحی
طراحی نما به سبک مراکشی
طراحی داخلی به سبک مراکشی ساده (با حداقل عناصر تزئیناتی)


طراحی نما
طراحی نمای جنوبی و غربی
متریال مورد استفاده در نما، سنگ و سیمان در نظر گرفته شود.
انتخاب رنگ و درصد استفاده از مصالح به سلیقه طراح می‌باشد.
محل و ابعاد پنجره‌ها به صورت شماتیک در پلان جانمایی شده است، تعداد و اندازه پنجره‌ها به اختیار طراح است. (در چارچوب ضوابط کمیته نمای شهرداری منطقه 3 تهران) 
جانمایی و اندازه پنجره‌ها در پارکینگ و لابی به اختیار طراح است. 
طراحی پنجره‌های واحد مسکونی ترجیحا به صورت قدی باشد.
نورپردازی در نما به سلیقه طراح می‌باشد.
محدوديتی بابت طراحی تاج در نمای جنوب و غرب وجود ندارد.


طراحی داخلی
طراحی داخلی سالن واحد جنوبی.
طراحی داخلی آشپزخانه واحد جنوبی.
طراحی داخلی اتاق خواب والدین واحد جنوبی.
طراحی داخلی لابی و انتظار همکف.
محل لابی من به اختیار طراح قابل تغییر است.
انتخاب رنگ بندی، متریال و مبلمان به سلیقه طراح محترم می‌باشد.


طراحی محوطه 
طراحی محوطه شامل کف سازی، فضای سبز و...
تیغه جدا کننده بین ملک و گذر وجود نداشته باشد. 
برای جدا سازی حیاط از گذر نیازی به طراحی دیوار بلند نیست و استفاده از فضای سبز و دیوارهای با ارتفاع کوتاه به اختیار طراح است. 19-09-1401
محل ورود عابر به داخل ساختمان از وسط ضلع جنوبی ملک می‌باشد. (در نقشه‌ها مشخص شده است)

 

 

امتیازات این مسابقه

انصراف از مسابقه شرکت در مسابقه فینالیست تقدیر شونده نفر سوم نفر دوم نفر اول
-20 10 50 50 100 300 600
پیشنهاد و بازخورد