0
طراحان
طراحان برتر
رزومه طراحان
پرسشهای متداول طراحان
آرشیو مسابقات
خدمات منتورینگ
متقاضیان طراحی
خدمات ما
درخواست مشاوره
پرسش های متقاضیان طراحی
خدمات منتورینگ
قیمت طراحی
طراحی مسکونی/ اداری/ تجاری
طراحی ویلا
خدمات طراحی
نوع خدمات
قیمت طراحی نما
قیمت طراحی پلان
کاربری ساختمان
قیمت طراحی ویلا
قیمت طراحی مسکونی
قیمت طراحی اداری/تجاری
مجله طرح تو طرح
پیشنهادها و بازخورد
ورود | ثبت نام
ورود/ثبت نام
مجله
کاربران
مسابقات
خانه
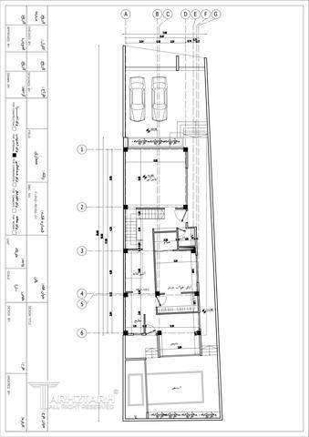
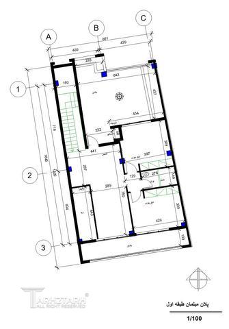
طراحی پلان و نما ویلا ساری
مسابقه عمومی
160,000,000
ریال
جایزه نقدی
تعداد شرکت کنندگان: 181 نفر
اطلاعات پایه
فایلهای راهنما
اخبار مسابقه
پرسش و پاسخ
نتایج
برای دیدن اطلاعات پایه و توضیحات مسابقه، صفحه اصلی پروژه را مرور کنید.
مشاهده اطلاعات پایه
نفر 1 - BusyBee Architecture Room
نفر 2 - مریم شفائی
نفر 3 - یلدا کتیرایی
فینالیست ها
BusyBee Architecture Room
مریم شفائی
یلدا کتیرایی
امین شیرزاد
حمیده آچاک
چارچوب استودیو
parisa keshavarz hadadha
دفتر معماری هوچهر
Malihe Shateri
سیمین شمسعلی نیا
گروه معماری ما
کیوان مهاجری
طرح های ارسالی
مهسا محمدخانی
REZNO DESIGN
ساناز حبیبی نژاد
پژمان کناره گیر
پژمان رحیمی
فردین صحرایی
سحر جعفری
حسن شهبازی
کیان طاهرزاده
پیمان پوستین دوز
مولود کشتکار ذوالقدر
محمد على بوش
Mahshid Kianian
mohammadreza heydari
شرکت انبوه سازان ساختمان سه میم
وحید پدرزه
رامتین چرغنده
ایوب الله وردی
محمدرضا انبیاء
نازنین بذرافشان
امین فراهانی
الهام امرایی
محمد علی کرباسفروشها
مژگان جلیلیان
حاتمه دادمهر
fatemeh razipour
فاطمه شاهین نیا
ماهرخ صادقی
نگار حسینی فراهانی
سمیه حسن نژاد
سحر حسن پور
کسری کیامرز بجنوردی
فریبا اخوان
فرزانه کازرانی
معصومه ذوالقدر
نرجس عبدالله زاده
صبا دربانی
پیشنهاد و بازخورد