طراحی ساختمان مسکونی مگنولیا (فرشته)

طراحی ساختمان مسکونی مگنولیا (فرشته)

شروع مسابقه : 20 خرداد 1404

پایان ثبت‌نام : پایان یافته

پایان مسابقه : 24 شهریور 1404

3,500,000,000 ریال جایزه نقدی
تعداد شرکت کنندگان: 5 نفر

اطلاعات پایه

  • نوع مسابقه:

    طراحی مسکونی

  • مبلغ جایزه:

    3,500,000,000 ریال

  • متراژ زیربنا:

    3250 متر مربع

  • وضعیت مسابقه:

    پایان یافته

  • موقعیت:

    تهران-فرشته

  • نام شهر:

    تهران

  • مساحت زمین:

    435 متر مربع

نمودار زمانی مسابقه

  1. شروع

    20_خرداد

  2. پایان ثبت‌نام

    21_تیر

  3. پایان مسابقه

    24_شهریور

توضیحات تکمیلی

اطلاعات پایه به روز شده 02-05-1404

- تغییر نورگیرها به صورت یک نورگیر ۱۲ متری و یک نورگیر ۶ متری که حداقل یکی از آنها گوشه شمال شرقی باشد بلامانع است ( تغییرات فوق منوط به ایجاد طرح پلان با کیفیت خیلی بالاتر است ، در صورتی که کیفیت خیلی تغییر نمیکند ترجیح بر این است که نورگیر جابجا نشود. ) 
- در  خصوص لابی ورودی واحد ها ترجیح کارفرما ایجاد دو لابی مجزا با ارتباط یک درب دکوراتیو است ولی در صورتی که با پیشنهاد آرشیتکت با ایجاد یک لابی با متراز بیشتر کیفیت بیشتری ایجاد می‌کند طراحی لابی بزرگتر بلامانع است.
- در همکف مسکونی طراحی نشود فضای باقی مانده با یک مشاعات خاص با کاربری پیشنهادی از سمت طراح طراحی شود.
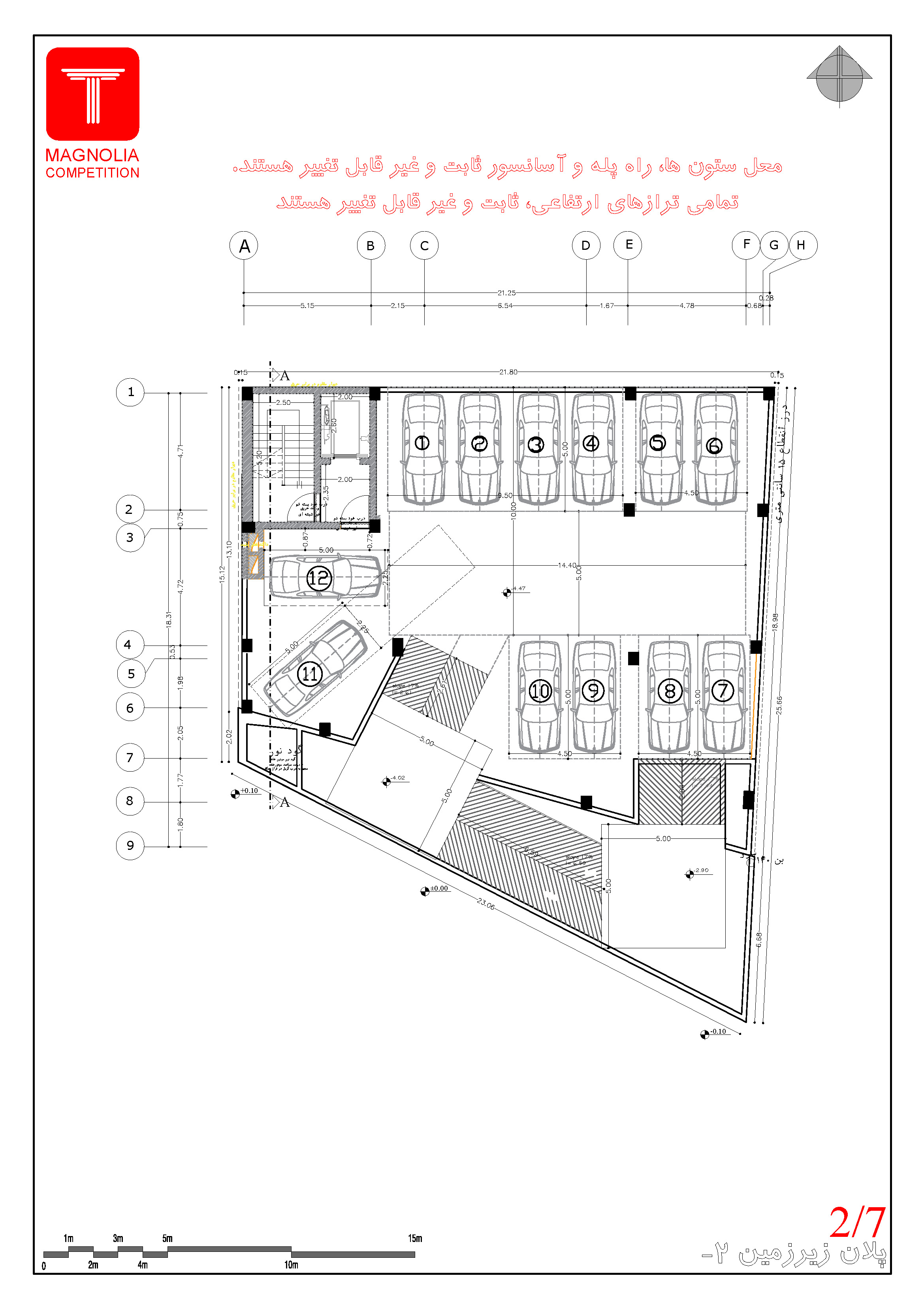
- در طبقه ۲- بین آکس e , f  دو پارکینگ تعبیه شود و تمامی انباری ها به زیرزمین ۳- منتقل شود. 
- در آینده انتهای کوچه بن بست به هزینه ی کارفرما محوطه سازی خواهد شد.
- پیرو حذف مسکونی در همکف مشاعات زیر زمین ۳- و همکف با تشخیص آرشیتکت در نظر گرفتن نکات زیر طراحی شود : 
۱- کاسه استخر قابل جا بجایی نیست ولی جکوزی قابل جا بجایی هست 
۲- حداقل ۲۰ تا ۳۰ متر موتورخانه اصلی + ۴% گود نور که تا حیاط ادامه یابد 
۳- در صورت تعبیه موتور خانه در زیرزمین ۱- نیازی به گود نور نیست 
مشاعات به شرح ذیل الزامی است : 
۱۲ باب انباری در زیر زمین  ( در همکف ممنوع ) 
۷۰ الی ۱۰۰ متر لابی در همکف 
فضای ورزشی
فضای اجتماعات ترجیحا در ۳- 
فضای سرایداری 
- پلان زیر زمین ۲- طبق طرح اجرایی با پارکینگ های اضافه تر در فایل اتوکد به روز شد.
- سرایداری انباری و تاسیسات الزاما در همکف نباشد.  02-05-1404


• فایل اتوکد به روزرسانی شد.02-05-1404
• ویدئو توضیحات پروژه مهندس مدرس به فایل های راهنما اضافه شد.01-05-1403
طراحی یک واحد دو خوابه مستر 120 الی 140 و یک واحد سه خوابه ... 30-04-1404
فایل ضوابط پارکینگ به فایل ها اضافه شد 23-04-1404



چه افرادی می‌توانند برای شرکت در این مسابقه محدود اعلام آمادگی کنند؟

مسابقه «طرح‌تو‌طرح» یک مسابقه محدود است و فقط اعضای سایت طرح‌تو‌طرح که دارای یکی از شرایط زیر باشند، مجاز به شرکت خواهند بود:

شرایط احراز صلاحیت شرکت در مسابقه:

1.امتیاز بالای ۵۰۰ در سایت طرح‌تو‌طرح

2.برنده یا فینالیست مسابقات معتبر داخلی در حوزه معماری و معماری داخلی، از جمله:

جایزه معماری و معماری داخلی ایران
جایزه معمار
دوسالانه ملی معماری، شهرسازی و طراحی داخلی ایران
فستیوال معماری و مردم
جایزه معماری داخلی ایران (معماری و ساختمان)
جایزه کوچه
جایزه بنیاد معماری میرمیران
جایزه دکتر محمدکریم پیرنیا
جایزه ملی خانه
جایزه معماری شیخ بهایی

3.برنده یا فینالیست مسابقات بین‌المللی معماری نظیر:

جایزه معماری آقاخان (Aga Khan Award)
جشنواره جهانی معماری (World Architecture Festival – WAF)
جایزه مؤسسه سلطنتی معماران بریتانیا (RIBA)
جایزه معماری آسیا (2A)
جایزه معمار خاورمیانه
مسابقه طراحی آسمان‌خراش Evolo

4.طراح پروژه‌هایی که در رسانه‌ها و مجلات معتبر معماری داخلی و خارجی منتشر شده باشند، از جمله:

مجله معمار
مجله هنر و معماری
مجله معماری و ساختمان
وب‌سایت و صفحه رسمی معماری معاصر ایران
وب‌سایت و صفحه رسمی آرکوما
وب‌سایت‌های معتبر جهانی مانند:
ArchDaily، DesignBoom، Archinect، Dezeen، Architizer، Amazing Architecture

موارد ارسالی توسط طراحان 
رندر از نمای جنوبی و محوطه با فرمت JPG
رندر از نورپردازی نمای جنوبی و محوطه با فرمت JPG
رندر از روف گاردن با فرمت JPG
• رندر از داخلی لابی ورودی با فرمت JPG
02-05-1404  پلان مبلمان زیرزمین 3- با فرمت JPG     
02-05-1404 پلان اندازه‌گذاری زیرزمین 3- با فرمت JPG

• پلان مبلمان همکف و محوطه با فرمت JPG 
پلان اندازه گذاری همکف و محوطه با فرمت JPG 
پلان مبلمان طبقات اول تا ششم با فرمت JPG 
پلان اندازه گذاری طبقات اول تا ششم با فرمت JPG 
پلان مبلمان بام ( روف گاردن ) با فرمت JPG 
پلان اندازه گذاری بام ( روف گاردن ) با فرمت JPG 

برش از ساختمان با فرمت JPG
فایل DWG شامل پلان ها و برش‌ها 
یک عدد فایل شامل تمام پلان ها ،برش و رندرهای نمای جنوبی و محوطه، روف گاردن و داخلی لابی (تمامی مدارک ) جهت ارائه طرح با فرمت pdf

توجه داشته باشید ساعت اتمام ثبت نام و ارسال طرح ها برای تمامی مسابقات تا ساعت ۱۴ تاریخ اعلام شده می‌باشد.

توضیحات مهم پروژه 
 وضعیت کنونی پروژه در مرحله ی اتمام اجرای اسکلت می‌باشد.
• طراحی نما و داخلی لابی به سبک مدرن (استفاده از خطوط منحنی از علاقمندی های کارفرما می باشد) و امتداد این خطوط منحنی در پلان ها هم دیده شود.
• تمامی طرح ها اجرایی و با رعایت کامل ضوابط شهرسازی و آتش نشانی باشد.
• محل ستون ها ، راه پله و آسانسور در تمامی طبقات ،ثابت و غیر قابل تغییر است.
مساحت پاسیو در طبقات مسکونی به 12 متر مربع کاهش یابد ( در محل پاسیوی موجود ) واحد های مسکونی به نحوی جانمایی شوند که پاسیو فقط در یک واحد قابل استفاده باشد .
تغییر نورگیرها به صورت یک نورگیر ۱۲ متری و یک نورگیر ۶ متری که حداقل یکی از آنها گوشه شمال شرقی باشد بلامانع است ( تغییرات فوق منوط به ایجاد طرح پلان با کیفیت خیلی بالاتر است ، در صورتی که کیفیت خیلی تغییر نمیکند ترجیح بر این است که نورگیر جابجا نشود) 02-05-1404

• بازدید طراحان مسابقه از سایت الزامی است. ( بدیهی است که پس از بررسی افرادی که در فراخوان مسابقه محدود ثبت نام کردند و بعد از بررسی توسط کارفرما و انتخاب ایشان به مسابقه اضافه شدند این کار الزامی است.

فایل اتوکد پروژه در فایل های راهنما قابل دانلود است. 02-05-1404

موارد طراحی
• طراحی پلان زیرزمین 3- (02-05-1404)
• طراحی پلان همکف و طبقات مسکونی 
• طراحی نمای جنوبی و محوطه
• طراحی روف گاردن 
• طراحی داخلی لابی

جایزه مسابقه 
• مبلغ کل مسابقه : 3.500.000.000 ریال ( به حروف سه میلیارد و پانصد میلیون ریال ) می باشد. 
•  نفر اول : مبلغ 2.000.000.000 ریال ( به حروف دو میلیارد ریال ) : مبلغ 200.000.000 ریال ( به حروف دویست میلیون ریال ) به عنوان لایف کاست که بعد از اتمام مسابقه و ارائه و تایید مدارک نهایی پرداخت خواهد شد +  800.000.000 ( به حروف هشتصد میلیون ریال )  ریال جایزه طراحی که پس از تایید اصلاحات نهایی توسط کارفرما پرداخت خواهد شد. + اخذ تاییدیه کمیته نما به عهده ی طراح می باشد و مشاور مبلغ 1.000.000.000 ( به حروف یک میلیارد ریال ) از جایزه ایشان را تا زمان اخذ تاییدیه کمیته نما و ارائه فاز 2 نما ( جهت ارائه به شهرداری) نزد خود نگه می دارد 
• نفر دوم : مبلغ 900.000.000 ریال ( به حروف نهصد میلیون ریال )  : مبلغ 200.000.000 ریال ( به حروف دویست میلیون ریال ) به عنوان لایف کاست که بعد از اتمام مسابقه و ارائه و تایید مدارک نهایی پرداخت خواهد شد + مبلغ  700.000.000 ریال ( به حروف هفتصد میلیون ریال ) جایزه طراحی که پس از تایید اصلاحات نهایی توسط کارفرما پرداخت خواهد شد.
• نفر سوم تا پنجم : مبلغ 600.000.000 ریال ( به حروف ششصد میلیون ریال ) : هرکدام مبلغ 200.000.000 ریال ( به حروف دویست میلیون ریال ) به عنوان لایف کاست که بعد از اتمام مسابقه و ارائه و تایید مدارک نهایی پرداخت خواهد شد.
مبالغ جایزه مسابقات محدود بعد از کسر 15 درصد هزینه برگزاری مسابقه به نفرات برتر پرداخت خواهد شد.

توضیحات کلی پروژه
• ساختمان مسکونی با متراژ زمین 435 مترمربع (پس از اصلاح)  و زیربنای تقریبی 3250 مترمربع می‌باشد.

سبک طراحی
• مدرن 

نوع سازه
• اسکلت بتنی ( سازه اجرا شده است ) 

نوع سازه سقف
• وافل یکطرفه ( سازه اجرا شده است ) 

سیستم سرمایش و گرمایش
• موتور خانه مرکزی و چیلر

کد مجاز همکف و کد صفر‌– صفر در سایت پلان
• کد صفر طبق فایل اتوکد
• کد ارتفاعی کف طبقه همکف 1/20+ ( مطابق فایل اتوکد )


ارتفاع مجاز طبقات و کدهای ارتفاعی 
• کدهای ارتفاعی تمامی طبقات مطابق پلان ها برش ارائه شده در فایل اتوکد

محدوده طراحی و کاربری مجاز همکف
• محدوده ی طراحی طبقه همکف : مطابق محدوده تعریف شده در فایل اتوکد
• طراحی یک واحد مسکونی به مساحت 149 متر مربع (الزاما کمتر از 150 مترمربع) سه خوابه  05-02-1404
• طراحی لابی
• طراحی سالن اجتماعات

سطح اشغال و کاربری مجاز طبقات روی همکف
• سطح اشغال طبقات روی همکف : مطابق محدوده تعریف شده در فایل اتوکد
• 6 طبقه مسکونی دو واحدی 

مشخصات واحدهای طبقات مسکونی (اول تا ششم)

مساحت پاسیو به 12 متر مربع کاهش یابد ( در محل پاسیوی موجود ) واحد های مسکونی به نحوی جانمایی شوند که پاسیو فقط در یک واحد قابل استفاده باشد .
تغییر نورگیرها به صورت یک نورگیر ۱۲ متری و یک نورگیر ۶ متری که حداقل یکی از آنها گوشه شمال شرقی باشد بلامانع است ( تغییرات فوق منوط به ایجاد طرح پلان با کیفیت خیلی بالاتر است ، در صورتی که کیفیت خیلی تغییر نمیکند ترجیح بر این است که نورگیر جابجا نشود) 02-05-1404

• پلان طبقات مسکونی (اول تا ششم) به صورت تیپ و هر طبقه شامل دو واحد مسکونی سه خوابه با مساحت 140 الی 160 متر مربع با حداقل یک اتاق خواب مستر  ( طراحی یک واحد دو خوابه مستر 120 الی 140 و یک واحد سه خوابه ...) 30-04-1404
• برای هر واحد لابی آسانسور مجزا تعریف شود (آسانسور 2 در باشد)
• جانمایی بالکن قابل چیدمان
• ارائه ی پلان کامل مبلمان و Layout  سرویس ها و آشپزخانه  و جانمایی داکت های تاسیساتی الزامی است. 

طراحی نما و محوطه
• طراحی نما به سبک مدرن (استفاده از خطوط منحنی از علاقمندی های کارفرما می باشد)
• ترجیح کارفرما به استفاده از رنگ سفید در نما می‌باشد.
• انتخاب متریال مورد استفاده از متریال های به روز و موجود در بازار (شیشه ، سنگ، سیمان) 
• استفاده از پنجره های قدی با ابعاد بزرگ با قابلیت تبدیل به بالکن شیشه ای 
• نورپردازی نما به صورت غیر مستقیم طراحی شودو چراغ ها قابل دسترس باشند.
•طراحی محوطه(حیاط) هماهنگ با نما
• دیوارهای محوطه و ورودی نیز طراحی شود. 


طراحی روف گاردن
• طراحی آبنما 
• طراحی باربیکیو 
• طراحی نشیمن و فضای تجمعی سرپوشیده 
• طراحی نشیمن و فضای تجمعی روباز
• استفاده از درختچه های خاص در طراحی  

طراحی لابی 
• طراحی لابی هماهنگ با طراحی نما به سبک مدرن
• ترجیح کارفرما به استفاده از رنگ بندی روشن در طراحی داخلی لابی می‌باشد.
• انتخاب متریال مورد استفاده از متریال های به روز و موجود در بازار و هماهنگ با نما

توجه داشته باشید ساعت اتمام ثبت نام و ارسال طرح ها برای تمامی مسابقات تا ساعت ۱۴ تاریخ اعلام شده می‌باشد.

 

 

امتیازات این مسابقه

انصراف از مسابقه شرکت در مسابقه فینالیست تقدیر شونده نفر سوم نفر دوم نفر اول
-20 10 50 50 100 300 600

توجه!

راهنمای شرکت در مسابقات معماری «طرح‌تو‌طرح»

۱. ارتباط مستقیم با کارفرما و منتورها
⛔ هرگونه ارتباط مستقیم شرکت‌کنندگان با کارفرما یا منتورهای مسابقه، اعم از تماس تلفنی، مراجعه حضوری یا مکاتبه در شبکه‌های اجتماعی، موجب حذف فوری از مسابقه خواهد شد.


۲. زمان ثبت‌نام و ارسال آثار
⏰ مهلت ثبت‌نام و ارسال طرح‌ها برای کلیه‌ی مسابقات، تا ساعت ۱۴:۰۰ در تاریخ اعلام‌شده می‌باشد.
🟦 پیشنهاد: به‌منظور پیشگیری از بروز مشکلات فنی، ارسال آثار را به ساعات پایانی موکول نکنید.


۳. الزامات ارسال فایل اتوکد (در صورت نیاز به ارسال)
در صورت الزام به ارسال فایل اتوکد در یک مسابقه، رعایت نکات زیر جهت سهولت بررسی طرح‌ها ضروری است:

  • ترسیم Polyline برای مساحت کل طبقات و واحدهای مسکونی روی نقشه در یک لایه جداگانه

  • درج مساحت هر واحد مسکونی داخل همان واحد

  • ترسیم کادر دور پارکینگ‌ها

  • اندازه‌گذاری پارکینگ‌ها

  • ارسال فایل فقط در محیط Model (نه Layout)

  • تنظیم واحد نقشه بر روی Meters

  • نام‌گذاری تمام فضاها

  • شماره‌گذاری پارکینگ‌ها و انبارها

  • درج کدهای ارتفاعی در تمام پلان‌ها، نماها و مقاطع

  • خودداری کامل از تغییر اندازه بلوک‌های مبلمان اتوکد

  • ذخیره‌سازی فایل با گزینه‌ی Save as 2010


۴. قوانین پرداخت جوایز و هزینه‌ها
💰 کلیه مبالغ قابل پرداخت به شرکت‌کنندگان (اعم از جایزه، هزینه‌ی شرکت، lifecost و...) پس از تأیید اصلاحات نهایی توسط کارفرما و پس از کسر درصد مشخص به شرح زیر واریز خواهد شد:

  • ۱۵٪ در مسابقات محدود

  • ۱۲٪ در مسابقات عمومی
    🟦 پیشنهاد: برای جلوگیری از تأخیر در دریافت مبلغ، اصلاحات خواسته‌شده را در اولین فرصت اعمال نمایید.


۵. روند بررسی آثار ارسالی
📋 پس از ارسال آثار، روند مسابقه به شرح زیر خواهد بود:

  • بررسی کامل بودن فایل‌ها توسط تیم «طرح‌تو‌طرح» طی ۵ روز کاری

  • ارسال طرح‌ها به کارفرما، منتور و مشاور برای بررسی نهایی طی ۲ هفته کاری

  • معرفی فینالیست‌ها و برگزاری جلسه‌ی دفاعیه

  • اعلام نفرات برتر تا یک هفته کاری پس از جلسه دفاع

  • پرداخت جوایز تا ۶۰ روز پس از دریافت تأیید کتبی کارفرما


۶. محدودیت‌های انتشار و هویت اثر

  • انتشار آثار در فضای مجازی تا پیش از اعلام نتایج نهایی ممنوع است.

  • درج هرگونه نام، لوگو یا نشانه‌ای از طراح در فایل‌های ارسالی موجب حذف اثر خواهد شد.

  • عدم تکمیل فایل‌های نهایی پس از مسابقه به معنای انصراف از رقابت تلقی می‌شود.


۷. نحوه ارسال فایل‌ها و کیفیت آنها
📱 لطفاً از ارسال فایل‌ها از طریق گوشی موبایل خودداری کنید تا فرمت، کیفیت و حجم آن‌ها مطابق استاندارد باقی بماند.


۸. ارسال چند طرح (فقط در مسابقات محدود)
✅ تنها در مسابقات محدود، امکان ارسال چند طرح توسط یک شخص یا تیم وجود دارد.

  • برای هر طرح باید ثبت‌نام و پرداخت مجزا انجام شود.

  • در صورت شرکت به صورت تیمی، افزودن اعضای تیم در پنل کاربری الزامی است.
    🟦 توجه: در مسابقات عمومی فقط مجاز به ارسال یک طرح هستید.


۹. پیگیری اخبار و پاسخ‌ها
📢 اطلاعیه‌ها، نوتیفیکیشن‌ها و اخبار مسابقه تنها برای شرکت‌کنندگان ثبت‌نام‌شده ارسال می‌شود.

  • پیش از ارسال سوال جدید، پاسخ‌های داده‌شده به سایر شرکت‌کنندگان را مطالعه نمایید.

  • هرگونه اطلاعات تکمیلی جدید در حین مسابقه، با رنگ آبی و ذکر تاریخ، در بخش توضیحات تکمیلی منتشر خواهد شد.

  • حتماً بخش «اخبار مسابقه» را تا پایان کامل رقابت پیگیری کنید.


۱۰. مشخصات فایل‌های رندر و سایر فرمت‌ها

فایل‌های رندر (JPG):

  • حداکثر عرض: ۱۴۰۰ پیکسل

  • حداکثر طول: ۱۴۰۰ پیکسل

  • رزولوشن: تا ۱۰۰

  • حجم: حداکثر ۳ مگابایت

  • فرمت: JPG

سایر فرمت‌ها:

  • PDF: حداقل ۱۰ کیلوبایت، حداکثر ۱۰۰ مگابایت

  • PNG, JPEG, JPG: حداقل ۱۰ کیلوبایت، حداکثر ۵ مگابایت

  • DWG: حداقل ۱۰ کیلوبایت، حداکثر ۲۰ مگابایت

  • MP3, WMA: حداقل ۱۰ کیلوبایت، حداکثر ۵۰ مگابایت


۱۱. پشتیبانی و پاسخ‌گویی
📞 در صورت وجود هرگونه سوال درباره روند مسابقه یا نحوه‌ی پرداخت، لطفاً:

  • ابتدا به بخش سوالات متداول مراجعه فرمایید.

  • در صورت نیاز، از طریق تیکت با تیم پشتیبانی «طرح‌تو‌طرح» در ارتباط باشید.

پیشنهاد و بازخورد