0
طراحان
طراحان برتر
رزومه طراحان
پرسشهای متداول طراحان
آرشیو مسابقات
خدمات منتورینگ
متقاضیان طراحی
خدمات ما
درخواست مشاوره
پرسش های متقاضیان طراحی
خدمات منتورینگ
قیمت طراحی
طراحی مسکونی/ اداری/ تجاری
طراحی ویلا
خدمات طراحی
نوع خدمات
قیمت طراحی نما
قیمت طراحی پلان
کاربری ساختمان
قیمت طراحی ویلا
قیمت طراحی مسکونی
قیمت طراحی اداری/تجاری
مجله طرح تو طرح
پیشنهادها و بازخورد
ورود | ثبت نام
ورود/ثبت نام
مجله
کاربران
مسابقات
خانه
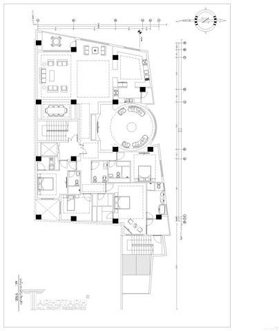
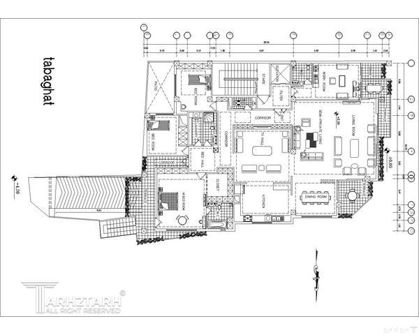
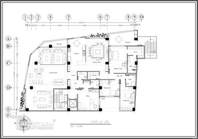
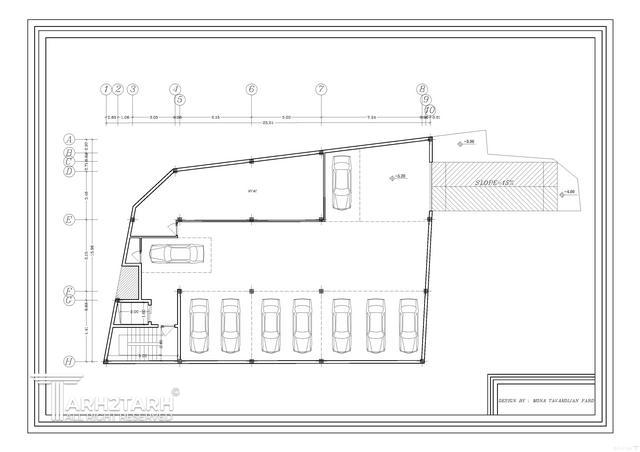
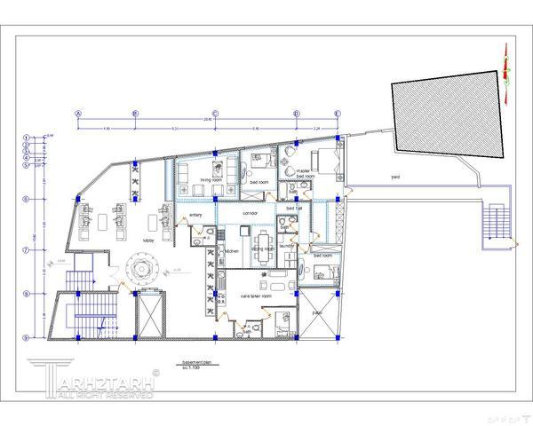
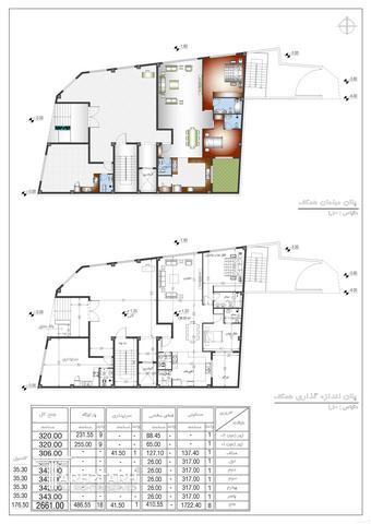
طراحی پلان پروژه مانا
مسابقه عمومی
70,000,000
ریال
جایزه نقدی
تعداد شرکت کنندگان: 95 نفر
اطلاعات پایه
فایلهای راهنما
اخبار مسابقه
پرسش و پاسخ
نتایج
برای دیدن اطلاعات پایه و توضیحات مسابقه، صفحه اصلی پروژه را مرور کنید.
مشاهده اطلاعات پایه
نفر 1 - Ali Ghavimi
نفر 2 - مجتبی بخشیان
نفر 3 - mohammad ghasemi
نفر 4 - حسن نیک افکار
نفر 5 - hamed soleimani
نفر 6 - هادی ابوالحسنی
طرح های ارسالی
مرضیه منطقی
گروه معماری آترو
سیاوش یزدان پناه
علی اخوان
علی علی بابایی
سپیده معراجی
محمد خسروی
گروه معماری همکار
hojat architect
آرش شمس دیبا
مهلا عبدالهی وقار
المیرا عبادی
شکوفه میرزاعلی
نوشین رکنی
گروه مهندسی گرافوس
FarhaD Dilmaghani
نگار رحیمی
شبنم فتحی سفید دشتی
هادی ابوالحسنی
Amir Hosein Pirani
بهاره بهزادی
سیما آذرخشی
mona tfard
دفتر طراحی سکویا
پیمان ملک محمودی
میترا کاظمی
ثمین غفاریان
فرامرز عزتی
پیشنهاد و بازخورد