شروع مسابقه : 22 تیر 1401
پایان ثبتنام : پایان یافته
پایان مسابقه : 31 مرداد 1401
مبلغ ورودی : 150,000 تومان
نوع مسابقه:
طراحی مسکونی
مبلغ جایزه:
1,000,000,000 ریال
متراژ زیربنا:
1400 متر مربع
وضعیت مسابقه:
پایان یافته
موقعیت:
تبریز
نام شهر:
تبریز
مساحت زمین:
300 متر مربع
شروع
22_تیر
پایان ثبتنام
15_مرداد
دفاعیه
11_مهر
پایان مسابقه
31_مرداد
اعلام نتایج
30_مهر
جدول معیارهای ارزیابی طرح به قسمت اطلاعات پایه پروژه اضافه گردید. 1401.04.25
برای مشاهده ضوابط تکمیلی طراحی نما در شهر تبریز، کلیک کنید.1401.05.15
مبلغ جایزه
بنا به درخواست کارفرما در این مسابقه مبلغ 100 میلیون تومان برای نفرات برتر به شرح زیر در نظر گرفته میشود.
• نفر اول: 60 میلیون تومان
• نفر دوم: 25 میلیون تومان
• نفر سوم: 15 میلیون تومان
مهلت ثبتنام دراین مسابقه تا روز شنبه 15 مرداد 1401 ساعت 17 میباشد.
مهلت ارسال آثار تا روز دوشنبه 31 مرداد 1401 ساعت 14 میباشد.
مسابقه دارای جلسه دفاعیه با حضور فینالیستها و تیم کارفرما میباشد.
موارد طراحی
• طراحی پلان
• طراحی نما
• طراحی روفگاردن
معیارهای ارزیابی طرح

سبک طراحی
• مدرن
توضیحات کلی پروژه
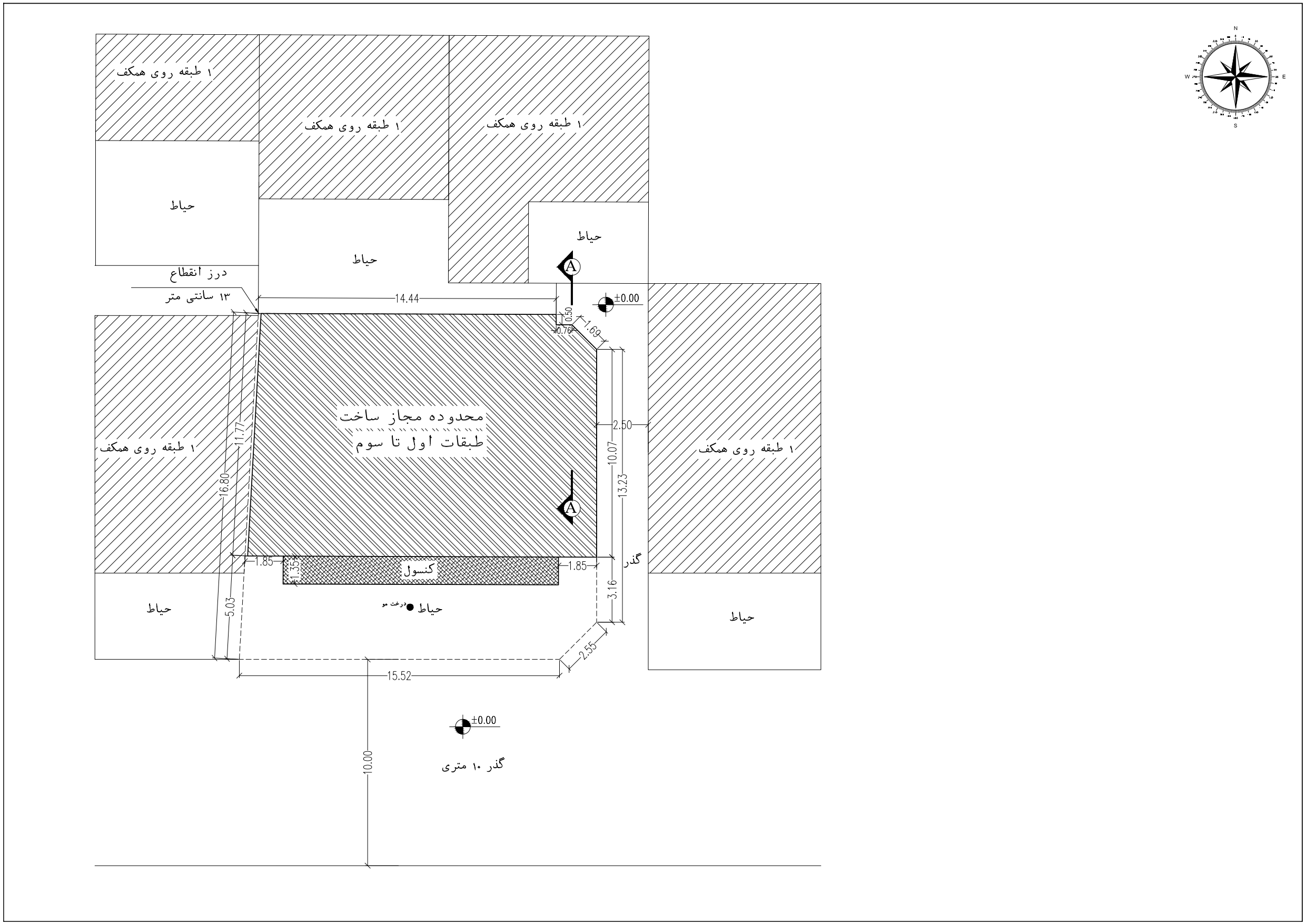
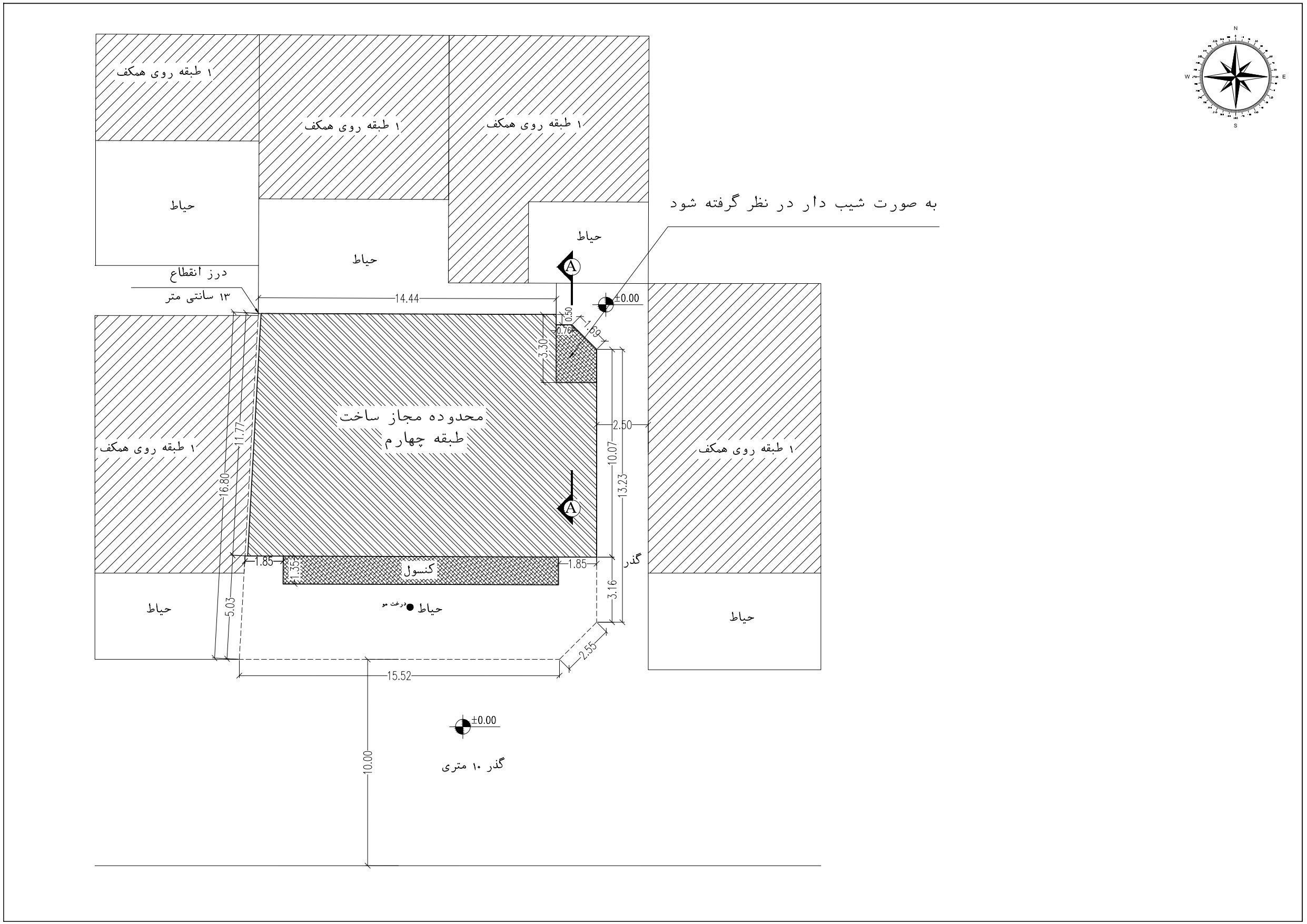
• ساختمان مسکونی پرنا واقع در شهر تبریز با زیربنای تقریبی 1455 مترمربع دارای 5 طبقه مسکونی روی همکف (طبقات اول تا سوم تک واحدی و طبقه چهارم و پنجم یک واحد به صورت دوبلکس) و یک طبقه زیرزمین میباشد.
• طراحان عزیز توجه داشته باشید در جبهه غربی قسمت شمالی، رعایت پخ در طبقات چهارم و پنجم مطابق با فایل اتوکد پیوست الزامی است.
• سطح اشغال کلیه طبقات مطابق با فایل اتوکد پیوست میباشد.
نوع سازه
• اسکلت بتنی با سقف وافل
سیستم سرمایش و گرمایش
• اسپیلت یونیت و پکیج رادیاتور
کد صفر-صفر در سایت پلان و تراز ارتفاعی مجاز طبقه همکف
• کد صفر-صفر مطابق با فایل اتوکد پیوست میباشد.
• حداکثر تراز ارتفاعی مجاز طبقه همکف 1/20+ متر میباشد.
سطح اشغال و کاربری مجاز طبقه همکف
• سطح اشغال طبقه همکف مطابق با فایل اتوکد پیوست میباشد.
• در طبقه همکف، پارکینگ و انباری طراحی شود.
سطح اشغال و کاربری طبقه زیرزمین
• سطح اشغال طبقات زیرزمین مطابق با فایل اتوکد پیوست میباشد.
• در طبقه زیرزمین، سالن اجتماعات، سالن ورزشی و انباری طراحی شود.
ارتفاع مجاز طبقات
• ارتفاع کف تا کف طبقه زیرزمین: 3/40 متر
• ارتفاع کف تا کف طبقه همکف: 3/40 متر
• ارتفاع کف تا کف طبقات مسکونی روی همکف: 3/60 متر
ضوابط پارکینگ
• جهت مطالعه ضوابط پارکینگ در شهر تبریز کلیک کنید.
• 6 واحد پارکینگ با ابعاد استاندارد و مطابق با ضوابط طراحی شود.
ضوابط راهپله و آسانسور
• یک دستگاه راهپله و یک دستگاه آسانسور ویلچربر با ابعاد مفید 1/60*2 متر
• جهت دسترسی به روفگاردن، آسانسور به بام دسترسی دارد.
• حداقل عرض راهپلهها در بناهاي مسكوني 1/20 متر بوده و در صورت تعبيه بالابر (آسانسور) حداقل عرض راهپلهها يك متر ميباشد.
• طراحی پله به صورت 4 بازو بلامانع است.
• لابی آسانسور در کلیه طبقات از راهپله جدا باشد.
• جهت مطالعه ضوابط راهپله و آسانسور در شهر تبریز کلیک کنید.
ضوابط نورگیر
• مساحت حياط خلوت جهت نورگيري اتاقهاي اصلي حداقل 9 مترمربع و نسبت عرض به طول آن حداقل یک به سه باشد.
• مساحت حياط خلوت جهت نورگيري آشپزخانه يا حمام و يا سرويسهاي بهداشتي حداقل 4/5 مترمربع و نسبت عرض به طول آن حداقل یک به سه باشد.
• حياط خلوت و نورگيرهایي كه با ضوابط فوق احداث گردند، جزء زيربنا محسوب نخواهند شد.
مشخصات واحدهای مسکونی روی همکف
• 5 طبقه روی همکف
• در طبقات اول تا سوم یک واحد مسکونی 3 خوابه (با یک خواب مستر) طراحی شود. در صورت امکان در واحدهای این طبقات لاندری طراحی شود.
• در طبقات چهارم و پنجم، یک واحد به صورت دوبلکس طراحی شود که طبقه چهارم شامل یک اتاق خواب مستر، سرویس مهمان، آشپزخانه و پذیرایی و طبقه پنجم شامل سه اتاق خواب مستر، نشیمن، آشپزخانه کوچک و لاندری میباشد.
• در تمامی واحدها بالکن با قابلیت چیدمان مبلمان طراحی شود.
• در بالکن طبقات اول تا سوم، فضایی جهت جانمایی کندانسور و پکیج در نظر گرفته شود که در معرض دید نباشد.
• در بالکن طبقات چهارم و پنجم، فضایی جهت جانمایی پکیج در نظر گرفته شود که در معرض دید نباشد. (کندانسور این طبقات در بام جانمایی شود)
طراحی نما
• طراحی نما به سبک مدرن
• جهت حجمسازی در نما، کسر 3 مترمربع ازمساحت کلیه طبقات بلامانع است.
• به هیچعنوان از چوب در طراحی نما استفاده نشود.
• به هیچوجه از نرده شیشهای برای جانپناه بالکنها و بام استفاده نشود.
• ارتفاع جانپناه حداقل 0/80 و حداکثر 1/20 متر در نظر گرفته شود.
• پنجرههاي مشرف به معابر 12 متر و كمتر تا ارتفاع 1/80 متر، باید با شيشه مات و بدون بازشو به معبر و حياط خلوت باشند.
جهت مطالعه دستورالعمل طراحی، کنترل و اجرای نمای شهری در شهر تبریز کلیک کنید.
طراحی روفگاردن
• در روفگاردن فضای نشیمن سرپوشیده، فضای بار، فضای سبز، درختچههای خاص و سایر عناصر متعارف طراحی شود.
| انصراف از مسابقه | شرکت در مسابقه | فینالیست | تقدیر شونده | نفر سوم | نفر دوم | نفر اول |
|---|---|---|---|---|---|---|
| -20 | 10 | 50 | 50 | 100 | 300 | 600 |