طراحی نما مجتمع آموزشی رهیار

طراحی نما مجتمع آموزشی رهیار

شروع مسابقه :

پایان ثبت‌نام : پایان یافته

پایان مسابقه : 15 آبان 1400

110,000,000 ریال جایزه نقدی
تعداد شرکت کنندگان: 72 نفر

اطلاعات پایه

  • نوع مسابقه:

    سایر

  • مبلغ جایزه:

    110,000,000 ریال

  • متراژ زیربنا:

    1000 متر مربع

  • وضعیت مسابقه:

    پایان یافته

  • موقعیت:

    تهران-پونک

  • نام شهر:

    تهران

  • مساحت زمین:

    400 متر مربع

نمودار زمانی مسابقه

  1. پایان مسابقه

    15_آبان

مواردی که شما باید ارسال کنید

  • طراحی نما ضلع شمال و جنوب پروژه با فرمت jpg

توضیحات تکمیلی

طراحی نما مجتمع آموزشی پسرانه رهیار

7- پلان‌های اصلاحی مجتمع آموزشی رهیار در قسمت فایل‌های راهنما بروزرسانی شد. 00.07.25

6- فایل صوتی توضیحات تکمیلی کارفرمای محترم پروژه دز فایل‌های راهنما قرار گرفت. 00.07.25

5-قابل توجه شما طراحان عزیز، فایل و نقشه طبقه اول پروژه که فاقد جای‌گذاری پنجره‌ها در پلان است، به زودی تکمیل و بارگذاری می‌شود. به همین علت زمان مسابقه 4 روز تمدید شد. 00.07.24
4-طراحان گرامی می‌توانید به منظور طراحی بهتر، تمامی پنجره‌های مربوط به اتاق جلسات واقع در طبقه فوقانی سردر را حذف کنید و کل سطح دیوار اتاق جلسات در ضلع جنوب را به طراحی سردر اختصاص دهید. (در این حالت نور لازم برای اتاق جلسات از شرق و غرب تامین خواهد شد.) 00.07.24
3-هم‌چنین در طراحی نما سمت خیابان هفت لنگ می‌توانند از کنسول ۸ سانتی‌متری به طول حداکثر ۴ متر در دو طرف سردر ورودی استفاده نمایید. 00.07.24
2-ارتفاع طبقه فوقانی سردر ورودی به 3.50 افزایش پیدا کرد. 00.07.24

1- ویدئوهای مجتع مسکونی رهیار به فایل ‌های راهنما اضافه شد.00.07.24


 

نکات مهم 

این مسابقه یک برنده خواهد داشت.
مبلغ 5 میلیون تومان درصورت صلاحدید کارفرما به طراح منتخب جهت ارائه‌ی جزئیات اجرایی نما تعلق می‌گیرد. 

طراحی نما 
ضلع جنوب و ضلع شمال


سبک نما 
 اولویت با سبک نما مدرن و همخوانی با معماری ایرانی است.  


متریال مورد استفاده و درصد استفاده در نما به انتخاب طراح 

شیشه، سنگ، آجر، فلز، سیمان

 نورپردازی نما

نورپردازی در سردر، تابلوی ورودی و ستون‌های طراحی شده نما تعداد درهای ورودی، یک درب پارکینگ و سه درب عابر می‌باشد که برای هر کدام از آن ها نورپردازی لحاظ شود.

طراحی پنجره‌ها
مستطیل شکل و از جنس UPVC هستند.
برای طراحی نما و درهای مجتمع به انتخاب طراح می توان از لوگوی مجتمع استفاده شود.


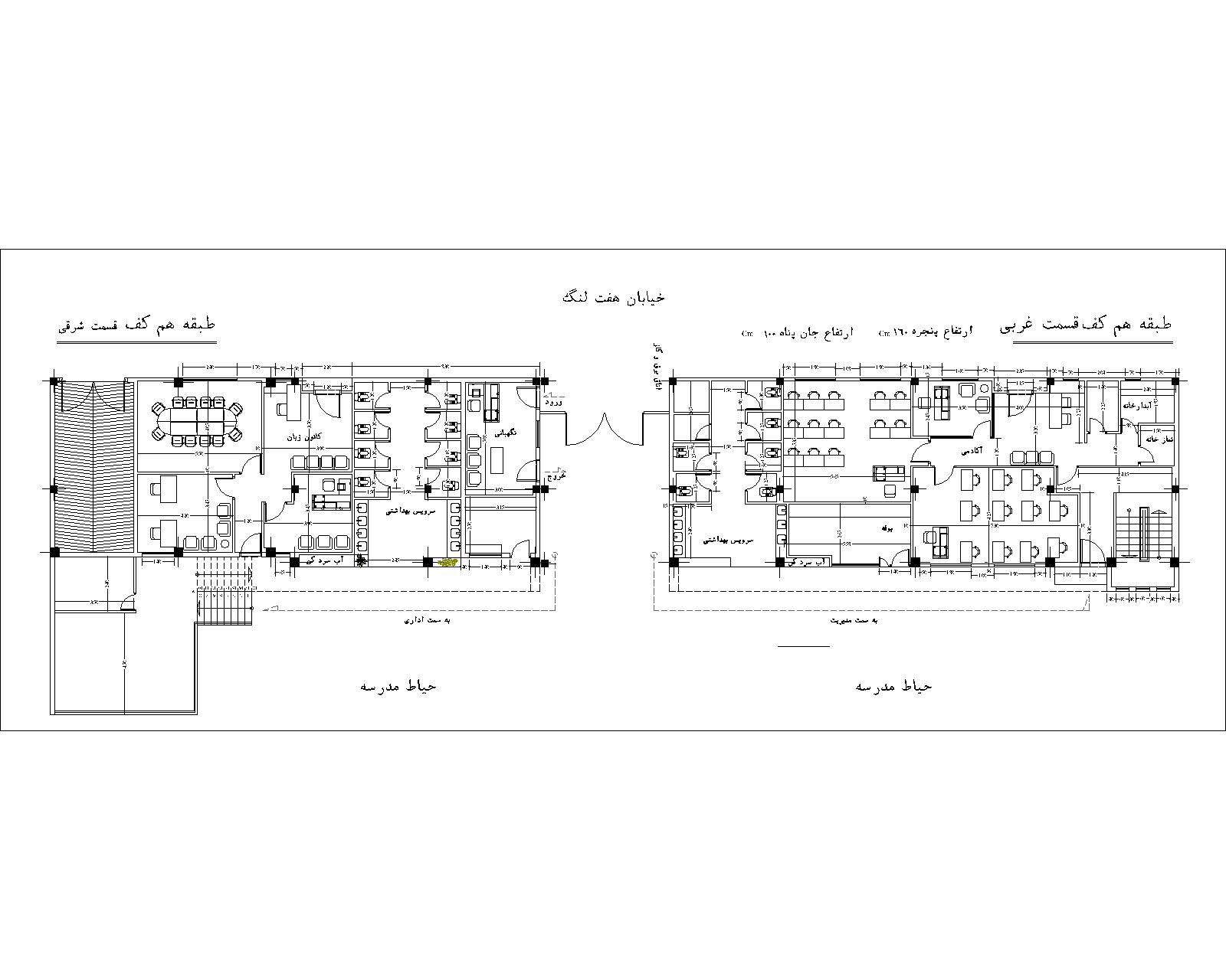
توضیحات سایت داخلی مدرسه

سمت شرق: حیاط مرتبط با دوره متوسطه اول
سمت غرب: حیاط مرتبط با دوره متوسطه دوم 
ضخامت سازه ای سقف ها: 30 سانتی متر

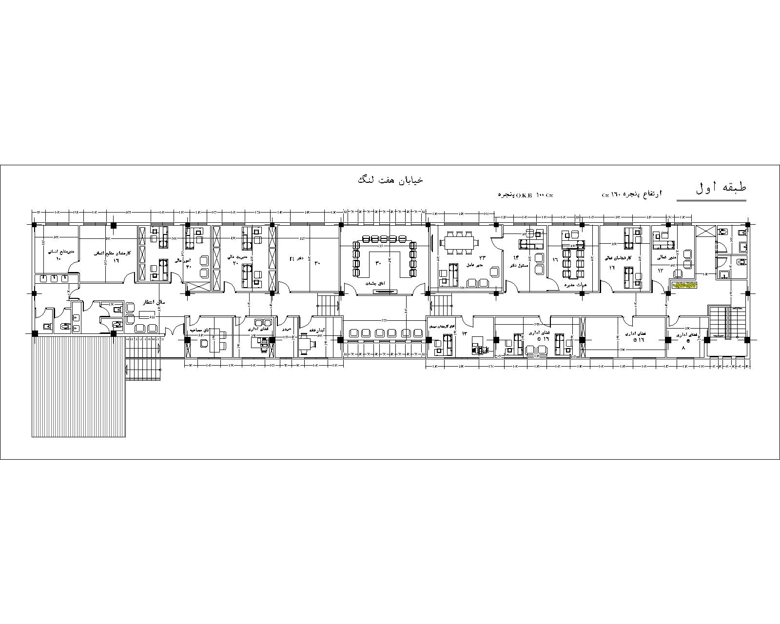
سردر ورودی:
در ابتدای ورودی مجموعه سردری با عرض 5.30 متر و ارتفاع 4 متر در طبقه همکف قرار گرفته است. اضافه می شود که با توجه به پلان ارائه شده، با تعدادی پله از دو سمت شرق و غرب، به فضای فوقانی سردر دسترسی داده شده است. این فضا برای اتاق جلسات و راهرو ارتباطی طراحی شده است. ارتفاع کف تا کف این بخش از بنا 3.50 متر درنظر گرفته می‌شود. 
برای طراحی سردر ورودی براساس نظر طراح می‌توان سازه مجزایی با حداکثر عمق (عرض) 80 سانتی متر طراحی و اجرا کرد. توجه شود که این 80 سانتی متر خارج از محدوده ملک و در فضای پیاده رو ورودی قابل اجراست.
ارتفاع جان پناه را 1.2 متر می‌توان درنظر گرفت.  
تعداد پنجره‌های اتاق جلسه به نحوی درنظر گرفته شود که صرفا نور موردنیاز اتاق تامین شود و لزومی به حفظ هر 5 پنجره که در پلان تعبیه شده نیست.
در بنای فوقانی سردر ورودی و در نمای شمالی رو به حیاط، در طراحی ایوان رو به باغ ایرانی، فضایی برای استراحت کارکنان درنظر گرفته شود که برای بهره برداری از نور محیط از شیشه در طراحی نما بیشتر می‌توان استفاده کرد. 
در طراحی نمای شمالی، با توجه به این که ایوان رو به حیاط قرار دارد میتوانید در ایوان شکستگی ایجاد کرده و متراژ آن را بسته به طراحی خود کمتر یا کمی بیشتر کنید. (بیرون زدگی از نما تا 20 سانتی متر)


ضلع جنوب شرقی:
ورودی کانون زبان این مجموعه است.
در طبقه همکف تعداد پنجره‌ها کم بوده و سرویس بهداشتی در این قسمت مجموعه قرار دارد.
در قسمت جنوب شرقی ارتفاع کف تا کف طبقه همکف 3.10 متر و ارتفاع کف تا کف طبقه اول 3.30 متر احداث شده است.

ضلع جنوب غربی:
ورودی آکادمی تربیت معلم در ضلع جنوب غربی بوده و به صورت متقارن با ضلع جنوب شرقی و با عرض یکسان قرار گرفته است.
توجه شود که برای ورودی کانون زبان و آکادمی تربیت معلم، 80 سانتی متر عقب نشینی درنظر گرفته شده است.
در سمت چپ سردر ورودی و در نمای ضلع جنوب غربی، مجموعه لوله ی گازی قرار گرفته است (عکس های بخش اطلاعات پایه). اولویت با پوشش این بخش و عدم قرارگرفتن این لوله ها در معرض دید است.
با توجه به شیب طبیعی زمین، در قسمت جنوب غربی ارتفاع طبقه همکف 3.20 متر (10 سانتی متر بیشتر از ضلع جنوب شرقی) و ارتفاع طبقه اول 3.30 می باشد.

نکته
با توجه به شیب حدود 15 درصدی در گذر اصلی سایت، اختلافی حدود 10 سانتی متر مابین قسمت غربی و شرقی سایت را داریم.


لطفا موارد زیر را حتما مطالعه فرمایید:
این مسابقه دفاعیه ندارد.
فایل اتوکد و ویدئوهای پروژه در قسمت فایل‌های راهنما برای دانلود موجود است.
نفر برتر ملزم به ارائه فایل اتوکد دو بعدی نما به همراه اندازه گذاری و فایل سه بعدی نما می باشد.
  درصورت داشتن هر گونه سوال در مورد روند مسابقات ما و یا نحوه ی پرداخت جوایز به قسمت سوالات متداول مراجعه فرمایید.
• هر گونه لوگو و اسم خود در طرح های ارسالی ممنوع می باشد و درصورت مشاهده باعث حذف طرح های شما می گردد.
  لطفا فایل های خود را تا جایی که مقدور هست با گوشی آپلود نکنید.
 محدودیتی در ارائه چند طرح توسط یک گروه یا شرکت‌کننده نخواهد بود و لازم است به ازای هر طرح ثبت‌نام مستقلی صورت گیرد.
  در طول مسابقه حتما پرسش وپاسخ ها را مطالعه کنید و قبل از مطرح کردن پرسشی، سوالات دیگر طراحان را مطالعه فرمایید.
 اگر مطلبی به مسابقه اضافه شود، در طول مسابقه با رنگ آبی در بین مطالب خواهیم نوشت،لطفا در طول مسابقه اطلاعات پایه را مطالعه کنید.


رندر شما باید خصوصیات زیر را داشته باشند:
•  ابعاد عکس عرض حداکثر تا PIX ۲۵۰۰
•  ابعاد عکس طول حداکثر  تا PIX ۲۵۰۰
•  رزولوشن حداکثر 150
•  فرمت عکس شما
JPG
•  حجم عکس شما ماکسیمم ۳MB
•  اتوکد با ورژن 2010 به پایین آپلود شود.

امتیازات این مسابقه

انصراف از مسابقه شرکت در مسابقه فینالیست تقدیر شونده نفر سوم نفر دوم نفر اول
-20 10 50 50 100 300 600
پیشنهاد و بازخورد