فراخوان پیشنهاد دکوراسیون  واحد مسکونی روژه

فراخوان پیشنهاد دکوراسیون واحد مسکونی روژه

تهران -نیاوران

شروع مسابقه :

پایان ثبت‌نام : پایان یافته

پایان مسابقه : 22 خرداد 1401

جایزه نقدی : پیشنهاد طراح
تعداد شرکت کنندگان: 39 نفر

اطلاعات پایه

  • نوع مسابقه:

    طراحی مسکونی

  • متراژ زیربنا:

    180 متر مربع

  • وضعیت مسابقه:

    پایان یافته

  • موقعیت:

    تهران -نیاوران

نمودار زمانی مسابقه

  1. پایان مسابقه

    22_خرداد

مواردی که شما باید ارسال کنید

  • پیشنهاد شما در قالب فایل PDF

توضیحات تکمیلی

اطلاعات پایه
فراخوان پیشنهاد بهینه: پیشنهاد دکوراسیون (مبلمان و اکسسوری) یک واحد مسکونی
مبلغ جایزه: پیشنهاد طراح
متراژ: 180 مترمربع


وضعیت مسابقه
موقعیت: تهران-نیاوران


مواردی که شما باید ارسال کنید
یک فایل PDF شامل
•    مبلغ پیشنهادی شما برای انجام پروژه 
•    شرح خدمات طراح در طول پروژه
•    لینک رزومه خود در سایت طرح تو طرح 
مهم : لطفا نمونه کارهای طراحی داخلی خود را در رزومه ایجاد شده در طرح تو طرح آپلود کرده تا کارفرمای پروژه با سبک کاری، تجربه و مهارت‌های شما بیشتر آشنا شود. 

لازم به ذکر است در این مرحله نیازی به طراحی دکوراسیون واحد نیست.


موارد طراحی
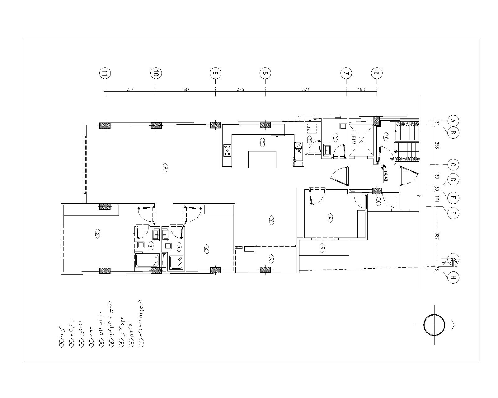
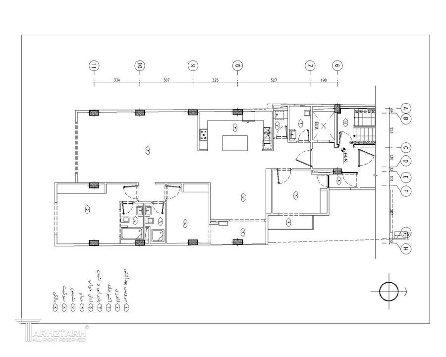
تجهیز واحد مسکونی (دکوراسیون مبلمان و اکسسوری) یک واحد 180 متری مسکونی در منطقه نیاوران تهران.


توضیحات کلی پروژه
•    ساختمان مسکونی روژه، در منطقه نیاوران تهران واقع شده است. 
•    دکوراسیون این واحد، در سبکی غیر از کلاسیک باشد.
•    برای همکاری با برنده فراخوان، معرفی شرکت سازنده مبلمان و اکسسوری و موجود بودن محصولات جهت خرید فوری الزامی می‌باشد. 
•    طراحی و ساخت مبلمان در این پروژه مد نظر نیست. 
•    خرید مبلمان و چینش آن تحت نظر طراح برنده انجام خواهد شد. 


وضعیت واحد
 ساخته شده و آشپزخانه و سرویس‌ها تجهیز شده است.
 

امتیازات این مسابقه

انصراف از مسابقه شرکت در مسابقه فینالیست تقدیر شونده نفر سوم نفر دوم نفر اول
-20 10 50 50 100 300 600
پیشنهاد و بازخورد