2.طراحان عزیز دقت داشته باشین که الزامات حتما باید رعایت شود در غیر اینصورت باعث حذف طرح از روند مسابقه میباشد.01.02.28
1.جدول امتیازدهی شاخصهای طراحی پلان در قسمت گالری عکس ها آپلود شد.01.02.28
موارد طراحی
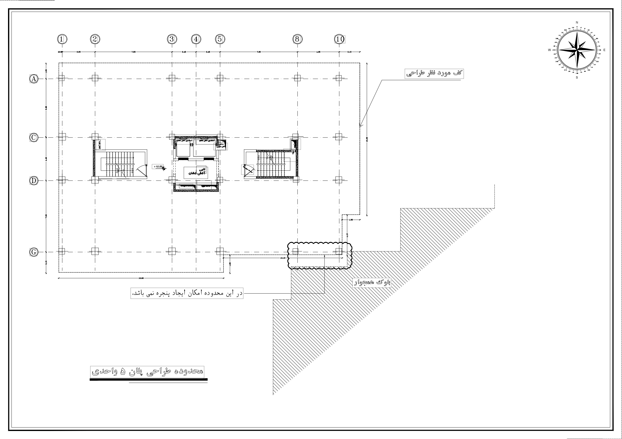
طراحی پلان 5 واحد در یک طبقه
طراحی پلان 6 واحد در یک طبقه
مبلغ جایزه
بنا به درخواست کارفرمای این پروژه مبلغ 120 میلیون تومان به شرح زیر بین نفرات برتر تقسیم میشود.
نفر اول 60 میلیون تومان
نفر دوم 40 میلیون تومان
نفر سوم 20 میلیون تومان
کارفرما در صورت صلاحدید با نفر منتخب ایشان، قراردادی به صورت جداگانه، بابت طراحی سایر طبقات این ساختمان به صورت 2 واحدی و 4 واحدی با مبلغ 50 میلیون تومان منعقد خواهد کرد.
طراحان عزیز در نظر داشته باشید که موارد طراحی پلان در این مسابقه مربوط به دو طبقه از یک بلوک 12 طبقه میباشد.
در نظر است یک تیپ پلان به صورت 5 واحدی و یک تیپ پلان به صورت 6 واحدی طراحی شود.
در این پروژه اسکلت ساختمان، جانمایی راهپله، آسانسور و دیوارهای برشی از نقاط ثابت پروژه میباشد و غیرقابل تغییر است.
محدوده طبقات در فایل اتوکد پیوست مشخص شده است.
به جز محل مشخص شده در فایل اتوکد از تمام جهات میتوان پنجره جهت نورگیری داشت.
تقسیم بندی واحدها با حداقل فضای مشاعات طراحی شود.
الزاما تمامی واحدها به هر دو راه پله دسترسی مستقیم داشته باشند.
حداقل عرض اتاق خواب 2/90 متر در نظر گرفته شود.
سرویسها به نحوی طراحی شود که داکت تاسیساتی هر دو طبقه کمترین میزان جابه جایی را داشته باشند.(مدیریت داکت ها)
جانمایی داکت ها در نقشه مشخص شده باشد.
درج مساحت واحد ها در نقشه ها الزامی است.
الزاما کلیه فضاها نور مستقیم داشته باشند.
برای مشاهده موقعیت پروژه کلیک کنید.

مشخصات تیپ پلان 5 واحدی
واحدها الزاما با متراژ بین 70 تا 150 متر مربع (یک، دو و سه خوابه) طراحی شود. ( متراژ واحدها حداکثر با تلورانس 3 مترمربع قابل قبول است.)
در واحدهای سه خوابه حتماً یک خواب مستر به همراه کلوزت طراحی شود.
الزاما در هر واحد تراس طراحی شود.
مساحت ایده آل برای تراس 3 مترمربع می باشد.
در واحدهای بزرگتر از 100 متر مربع در صورت امکان لاندری طراحی شود.
در اتاق خوابها حتماً کمد دیواری مطلوب طراحی شود.
مشخصات تیپ پلان 6 واحدی
واحدها الزاما با متراژ 60 تا 120 متر مربع (یک و دو دوخوابه) طراحی شود.( متراژ واحدها حداکثر با تلورانس 3 مترمربع قابل قبول است.)
الزاما در هر واحد تراس طراحی شود.
مساحت ایده آل برای تراس 3 مترمربع می باشد.
در واحدهای بزرگتر از 100 متر مربع در صورت امکان لاندری طراحی شود.
در اتاق خوابها حتماً کمد دیواری مطلوب طراحی شود.
طراحان عزیز لطفا موارد زیر را حتما مطالعه فرمایید.
• فایل اتوکد و ویدئوهای پروژه در قسمت فایلهای راهنما برای دانلود موجود است.
• درصورت داشتن هر گونه سوال در مورد روند مسابقات ما و یا نحوه ی پرداخت جوایز به قسمت سوالات متداول مراجعه فرمایید.
• هر گونه لوگو و اسم خود در طرح های ارسالی ممنوع می باشد و درصورت مشاهده باعث حذف طرح های شما می گردد.
• لطفا فایل های خود را تا جایی که مقدور هست با گوشی آپلود نکنید.
• محدودیتی در ارائه چند طرح توسط یک گروه یا شرکتکننده نخواهد بود و لازم است به ازای هر طرح ثبتنام مستقلی صورت گیرد.
• در طول مسابقه حتما پرسش وپاسخ ها را مطالعه کنید و قبل از مطرح کردن پرسشی، سوالات دیگر طراحان را مطالعه فرمایید.
• اگر مطلبی به مسابقه اضافه شود، در طول مسابقه با رنگ آبی به همراه تاریخ اضافه شدن در بین مطالب خواهیم نوشت،لطفا در طول مسابقه اطلاعات پایه را مطالعه کنید.
تصاویر شما باید خصوصیات زیر را داشته باشند.
• ابعاد عکس عرض حداکثر تا PIX ۲۵۰۰
• ابعاد عکس طول حداکثر تا PIX ۲۵۰۰
• رزولوشن حداکثر 150
• فرمت عکس شما JPG
• حجم عکس شما ماکسیمم ۳MB
• اتوکد با ورژن 2010 به پایین آپلود شود.