0
طراحان
طراحان برتر
رزومه طراحان
پرسشهای متداول طراحان
آرشیو مسابقات
خدمات منتورینگ
متقاضیان طراحی
خدمات ما
درخواست مشاوره
پرسش های متقاضیان طراحی
خدمات منتورینگ
قیمت طراحی
طراحی مسکونی/ اداری/ تجاری
طراحی ویلا
خدمات طراحی
نوع خدمات
قیمت طراحی نما
قیمت طراحی پلان
کاربری ساختمان
قیمت طراحی ویلا
قیمت طراحی مسکونی
قیمت طراحی اداری/تجاری
مجله طرح تو طرح
پیشنهادها و بازخورد
ورود | ثبت نام
ورود/ثبت نام
مجله
کاربران
مسابقات
خانه
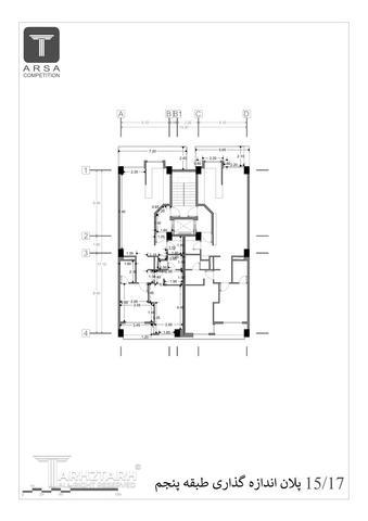
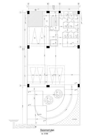
طراحی ساختمان مسکونی آرسا (مطهری)
مسابقه عمومی
2,000,000,000
ریال
جایزه نقدی
تعداد شرکت کنندگان: 56 نفر
اطلاعات پایه
فایلهای راهنما
اخبار مسابقه
پرسش و پاسخ
نتایج
برای دیدن اطلاعات پایه و توضیحات مسابقه، صفحه اصلی پروژه را مرور کنید.
مشاهده اطلاعات پایه
نفر 1 - سماء نادری
نفر 2 - نیلوفر مقدسی
نفر 3 - گروه معماری و شهرسازی گام
فینالیست ها
ALINEJAD STUDIO
مسنا
سماء نادری
نیلوفر مقدسی
گروه معماری و شهرسازی گام
طرح های ارسالی
استودیو کالیبین Calibene Studio
شرکت اسکیوتک
SERE OFFICE
سحر سنایی
hooma architects
آرش یوسفی آورزمان
مونا محتاج
فرزاد رحمانیان
امیرعلی ماهوتچیان اصل
هادی بیگلری (گروه معماری ایدری)
یاسین محمودی
PARISA FAIZI
یوسف مرادی
حسام شکیب نیا
اعظم کاظمی
پورکریمی
گروه مهندسین پویش
saman soleymaniha
معماران مرز سیال
محمد ایرانپور
نیما آخوندی
حمید ترابی
شکوفه رحمان زاده
الناز کمره ای
Mahdi Sharif
مات افیس
ویلتا
۸۸۷۱
تیم پرهون
NN STUDIO
پریسا چیوایی_محمدرضا جوادی
ندا و احسان
BauformLab
نوآ
پیشنهاد و بازخورد