طراحی داخلی لابی برج مانیا

طراحی داخلی لابی برج مانیا

شروع مسابقه : 31 شهریور 1404

پایان ثبت‌نام : پایان یافته

پایان مسابقه : 11 آبان 1404

مبلغ ورودی : 250,000 تومان

2,000,000,000 ریال جایزه نقدی
تعداد شرکت کنندگان: 61 نفر

اطلاعات پایه

  • نوع مسابقه:

    طراحی مسکونی

  • مبلغ جایزه:

    2,000,000,000 ریال

  • متراژ زیربنا:

    800 متر مربع

  • وضعیت مسابقه:

    پایان یافته

  • موقعیت:

    منطقه 22-بلوار کرمانشاه

  • نام شهر:

    تهران

نمودار زمانی مسابقه

  1. شروع

    31_شهریور

  2. پایان ثبت‌نام

    20_مهر

  3. پایان مسابقه

    11_آبان

اطلاعات بیشتر

دکتر مجید مقدم

کارفرما

دکتر مجید مقدم

  • مدیر عامل گروه ساختمانی ساحل
  • سازنده مجموعه برجهای ساحل و مانیا در منطقه ۲۲ تهران
  • سازنده شهرک سبز پارادایس در ضلع شرقی دریاچه چیتگر
  • گروه ساختمانی ساحل که شامل شرکتهای پیشگام ابنیه ساحل، انبوه سازان ساحل پردیس، گروه طراحی مانیا هوم، گروه مدیریت زنجیره تامین مانیا سازه، شرکت دانش بنیان اینوسنس تکنولوژی و گروه مشاورین مانیا است
  • دکترای حرفه ای مدیریت کسب و کار از دانشگاه تهران مولف کتابهای ارزش آفرینی در بانکداری اختصاصی و انتخاب استراتژی های بازاریابی و رفتار چاپلوسان سازمانی
محمد مشیری

مشاور کارفرما

محمد مشیری

مهندس ژیلا نوروزی

منتور

مهندس ژیلا نوروزی

  • مهندس ژیلا نوروزی، معمار برجسته با مدرک کارشناسی ارشد معماری از دانشکده هنرهای زیبا دانشگاه تهران، با بیش از سه دهه تجربه حرفه ای در طراحی، نظارت و مدیریت پروژه های شاخص معماری در ایران و خارج از کشور، به عنوان منتور در کنار طرح تو طرح حضور دارند. ایشان دارنده پروانه اشتغال پایه یک وزارت مسکن و شهرسازی و عضو سازمان نظام مهندسی استان تهران هستند و سابقه همکاری با نامآورترین مهندسان مشاور کشور را دارند.
  • دستاورد ها:کسب رتبه نخست در مسابقه ملی باغ موزه دفاع مقدس در سال ،1384 رتبه اول مسابقه مجتمع مسکونی اقدسیه – تهران در سال-1390 رتبه اول مسابقه دانشکده عمران دانشگاه تهران- 1397 رتبه دوم مسابقه مدرسه سبز بوشهر- 1389 رتبه سوم مسابقه موزه دفاع مقدس خرمشهر 1391
  • پروژه های بین المللی مانند: طراحی مجتمع های مسکونی و تجاری در استرالیا – Street Riseley پرت 1385 – Road Forbesپرت -1385 طراحی داخلی واحد مسکونی در امارات-دبی1401
  • پروژه های فرهنگی و شهری مانند:طراحی خانه فرهنگ خاتمی – ساختمان گفتوگوی تمدنها- -1383 طراحی طرح توسعه گردشگری و احیای زندگی شبانه منطقه 1۲ تهران 1385 طراحی مرکز فرهنگی دفاع مقدس – اراک 1385 طراحی خانه فرهنگ هریس – یادمان زلزله ورزقان 1391
  • پروژه های درمانی و آموزشی مانند:طراحی نمای بیمارستان ۲00 تختخوابی یاسوج -1390، طراحی مرکز جامع تشخیص و درمان سرطان قزوین -1404 طراحی مرکز رادیولوژی و تصویربرداری هانا سالمت – پردیس 1404

توضیحات تکمیلی


موارد ارسالی توسط طراحان 

• رندراز فضای لانژ با فرمت JPG
• رندر از سالن اجتماعات و سرویس بهداشتی با فرمت JPG
• رندر از سالن از تمامی فضاهای چند منظوره ورزشی با فرمت JPG
• رندر از سالن بازی با فرمت JPG
رندر از اتاق مدیریت با فرمت JPG
• رندر از فضاهای باز کتابخانه با فرمت JPG
• رندر از کانتر لابی من با فرمت JPG
• رندر از تراس گاردن با فرمت JPG
• جدول مشخصات متریال به تفکیک فضاها با  فرمت JPG
• فایل اتوکد شامل مبلمان و اندازه گذاری فضاها با فرمت dwg  فایل اتوکد الزاما با ورژن ۲۰۱۰یا پایین تر ذخیره و ارسال شود.

یک عدد فایل شامل تمامی رندرهای داخلی با توضیحات (تمامی مدارک ) جهت ارائه طرح با فرمت pdf توجه داشته باشید که از این فایل PDF و فایل اتوکد برای بررسی طرح ها (توسط کارفرما، منتور و مشاور معماری) و ارائه طرح در روز دفاعیه استفاده خواهد شد و هیچ فایلی از طراح در روز دفاعیه پذیرفته نخواهد شد. پس لطفا تمامی مدارک در این فایل کامل باشد.


نکات مهم 
• طراحانی که در مسابقه شرکت می کنند ملزم به طراحی داخلی تمام فضاهایی که ذکر شد هستند و در صورتی که کمبود مدارک داشته باشند از روند مسابقه حذف خواهند شد.
• توجه داشته باشید ساعت اتمام ثبت نام و ارسال طرح ها برای تمامی مسابقات تا ساعت ۱۴ تاریخ اعلام شده می‌باشد.




• فایل اتوکد پروژه در فایل‌های راهنما قابل دانلود است.

موارد طراحی 
طراحی فضای لانژ 
سالن اجتماعات 
سالن چند منظوره ورزشی 
سالن بازی 
اتاق مدیریت 
فضاهای باز کتابخانه 
کانتر لابی من
تراس گاردن


جایزه مسابقه 
• مبلغ کل مسابقه : 2.000.000.000 ریال ( به حروف دو میلیارد ریال ) می‌باشد.
•  نفر اول : مبلغ 1.200.000.000 ریال ( به حروف یک میلیارد و دویست میلیون ریال ) : این مبلغ پس از تایید اصلاحات نهایی توسط کارفرما پرداخت خواهد شد.
• نفر دوم : مبلغ 600.000.000 ریال ( به حروف ششصد میلیون ریال )  :  این مبلغ پس از تایید اصلاحات نهایی توسط کارفرما پرداخت خواهد شد.
• نفر سوم  مبلغ 200.000.000 ریال ( به حروف دویست میلیون ریال ) : این مبلغ پس از تایید اصلاحات نهایی توسط کارفرما پرداخت خواهد شد.
• مبالغ جایزه مسابقات عمومی بعد از کسر 12 درصد هزینه برگزاری مسابقه به نفرات برتر پرداخت خواهد شد.

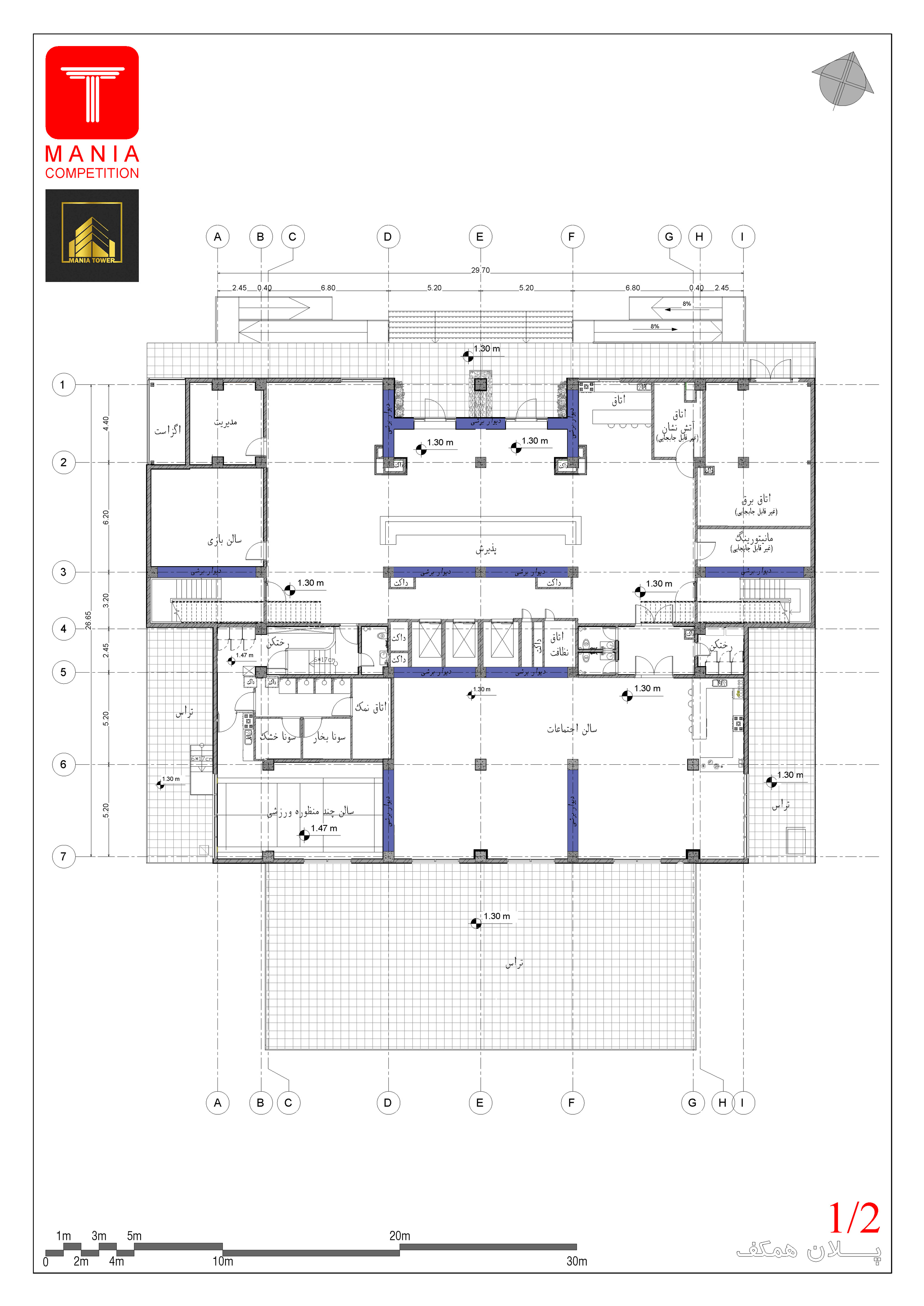
توضیحات کلی پروژه
• برج مانیا واقع در بلوار همدانی غرب - بلوار کرمانشاه 
• وضعیت ملک در مرحله سفت کاری می باشد.
• امکان ایجاد تغییرات جزئی در پلان است.
• محل درها و پنجره های نما ،‌ثابت و غیر قابل تغییر است
• نقشه تیرریزی سازه سقف طبقه همکف در فایل های راهنما آپلود شده است.
• نقشه تاسیسات مکانیک در فایل های راهنما آپلود شده است. (محل فن کوئل ها و دریچه ها ،‌ثابت و غیر قابل تغییر هستد)
• کد ارتفاعی بالای پنجره های لابی 5.30+ می باشد.OKB پنجره ها صفر است.  1404/07/12

 

سبک طراحی
مدرن

نوع سازه
فلزی

نوع  سقف
• عرشه فولادی(متال دک)

کد مجاز همکف و کد صفر‌– صفر در سایت پلان
• کد صفر طبق فایل اتوکد
• کد ارتفاعی کف طبقه همکف مطابق فایل اتوکد

فضای لانژ
• عملکرد این فضا به سلیقه طراح است و پیشنهاد فضای کافی شاپ به صورت فضای بار مد نظر است.
• رسمیت در این فضا مد نظر نیست.
• انتخاب مبلمان و رنگ ... به سلیقه و اختیار طراح  است 
• کفپوش لابی از نوع اسلب در ابعاد 300*120 به رنگ طوسی روشن تهیه شده است.
• پوشش دیوار : ترکیبی از سنگ و کاغذ دیواری و متریال خاص در بعضی فضاها
• انتخاب رنگ در فضا به سلیقه طراح می باشد.
• طرحی سقف : طراحی های مینیمال در سقف و استفاده از نورپردازی
(محل فن کوئل ها و دریچه ها ،‌ثابت و غیر قابل تغییر هستد)


طراحی سالن اجتماعات 
• طراحی مدرن برای استفاده از مهمانی ها و برگزاری جلسات رسمی 
• ظرفیت سالن اجتماعات بین 60 تا 80 نفر 
• چیدمان صندلی ها ارائه شود.
• نیازی به تجهیزات سیستم صوتی یا ویدئو پروژکتور نیست.
• کف سالن اسلب ابعاد 300*120 به رنگ طوسی روشن در نظر گرفته شود.
• جنس و نوع دیوار به سلیقه طراح 
• انتخاب رنگ در فضا به سلیقه و اختیار طراح می باشد.
• محل سرویس بهداشتی و رختکن به عهده طراح می باشد.
(محل فن کوئل ها و دریچه ها ،‌ثابت و غیر قابل تغییر هستد)

سالن ورزشی
• دو فضای ورزشی مد نظر است، یک فضای ورزشی برای مینی والیبال و بسکتبال و یک فضا برای ورزش های هوازی که می تواند با فضای بازی ادغام شود.
• کف پوش و جنس دیوار به نظر طراح با در نظر گرفتن صرفه اقتصادی
• نورپردازی نور مصنوعی قابل کنترل
• ظرفیت سونا و جکوزی بر اساس فضای موجود
• فضای سونا و جکوزی از نظر متریال به نظر طراح با در نظر گرفتن صرفه اقتصادی 
• فضای سونا و جکوزی ترجیحا متصل به فضای سالن ورزشی باشد.
• انتخاب رنگ در فضا به سلیقه و اختیار طراح می باشد.
(محل فن کوئل ها و دریچه ها ،‌ثابت و غیر قابل تغییر هستد)

سالن بازی 
• طراحی فضایی برای میز بیلیارد و فوتبال دستی
• تعداد میز بازی با توجه به فضا در نظر گرفته شود.
• طراحی فضایی خودمانی و سرگرم کننده 
• پوشش دیوار و کفپوش و طراحی سقف، به سلیقه و اختیار طراح 
• نورپردازی مستقیم بر روی میزها مناسب با سالن‌های بازی
• رنگ بندی فضا گرم و پرانرژی
(محل فن کوئل ها و دریچه ها ،‌ثابت و غیر قابل تغییر هستد)

اتاق مدیر
• فضای اتاق مدیر نیاز به برگزاری جلسه ندارد فضا برای شخص مدیر و مراجعه کننده طراحی شود.
• نوع مبلمان مدرن و مینیمال 
• کفپوش از نوع اسلب در ابعاد 300*120 به رنگ طوسی روشن تهیه شده است.
• طراحی دیوارها ساده در نظر گرفته شود.
• رنگ غالب فضای مدیریت و طراحی سقف به سلیقه طراح باشد.
• نورپردازی ترکیب نور مصنوعی و طبیعی
(محل فن کوئل ها و دریچه ها ،‌ثابت و غیر قابل تغییر هستد)

کتابخانه باز
• فضای کتابخانه باز متناسب با سلیقه طراح در لابی طراحی شود.
• هدف از ایجاد فضای کتابخانه ، نمودی از فرهنگ کتابخوانی به همراه فضایی محدود برای نشستن است.
• کتابخانه برای تمام سنین طراحی شود
•طراحی کتابخانه به صورت مدرن و نامتقارن باشد.
• متریال پیشنهادی و پالت رنگی به سلیقه و اختیار طراح  
• پیشنهاد کارفرما طراحی المان با سلیقه طراح می باشد. (به طور مثال میز مطالعه کوچک-مجسمه-تابلو-گیاهان سبز و ...)
(محل فن کوئل ها و دریچه ها ،‌ثابت و غیر قابل تغییر هستد)

کانتر لابی من
• طراحی فضای و رنگ  کانتر به سلیقه طراح 
• فضای پشت کانتر طراحی با متریال خاص و لوگوی برج هم در این طراحی لحاظ شود.
•دید مستقیم  کانتر لابی من به سمت درب ورودی و مسیر تردد به سمت آسانسورها و فضای لانژ باشد.
• طراحی نورپردازی ویژه مورد پسند است.

تراس گاردن 
• صمیمی با استفاده از المان‌های طبیعی
• پوشش کف : به سلیقه طراح ولی از چوب استفاده نشود.
• طراحی آلاچیق سایه بان و آب نما مورد نیاز است.
• طراحی نورپردازی و رنگبندی کلی و پوشش گیاهی به نظر طراح است.

توجه داشته باشید ساعت اتمام ثبت نام و ارسال طرح ها برای تمامی مسابقات تا ساعت ۱۴ تاریخ اعلام شده می‌باشد.

امتیازات این مسابقه

انصراف از مسابقه شرکت در مسابقه فینالیست تقدیر شونده نفر سوم نفر دوم نفر اول
-65 10 19 26 39 78 156

توجه!

هرگونه ارتباط مستقیم توسط شرکت کنندگان مسابقه با کارفرما و منتور، منجر به حذف شرکت کننده از مسابقه می‌گردد.
توجه داشته باشید ساعت اتمام ثبت نام و ارسال طرح ها برای تمامی مسابقات تا ساعت ۱۴ تاریخ اعلام شده می‌باشد.

طراحان عزیز اگر در مسابقه نیاز به ارسال فایل اتوکد باشد، برای سهولت بررسی طرح‌های ارسالی، رعایت موارد زیر ضروری است.
• Polyline مساحت کل طبقات و واحدهای مسکونی بر روی خود نقشه و در لایه جداگانه ترسیم شود.
• مساحت واحدهای مسکونی داخل واحدها درج شود.
• کادر دور پارکینگ‌ها ترسیم شود.
• پارکینگ‌ها اندازه‌گذاری شود.
• فایل اتوکد در محیط Model ارسال شود (در محیط Layout نباشد)
• واحد اتوکد بر روی Meters تنظیم شود.
• تمام فضاها نام‌گذاری شود.
• پارکینگ‌ها و انبار‌ها شماره‌گذاری شود.
• کدهای ارتفاعی در تمامی پلان‌ها، نماها و مقاطع درج شود.
• از تغییر اندازه بلوک‌های مبلمان اتوکد در پلان‌ها به شدت پرهیز شود.
• فایل اتوکد حتما با Save as ۲۰۱۰  آپلود شود.

لطفا موارد زیر را حتما مطالعه فرمایید.
• مطابق قوانین و مقررات طرح تو طرح تمامی مبالغ پرداختی به شرکت کنندگان مسابقه (جایزه مسابقه، هزینه شرکت در مسابقه lifecost و ...) بعد از تایید اصلاحات انجام شده توسط کارفرما و پس از کسر پانزده درصد در مسابقات محدود و دوازده درصد در مسابقات عمومی از آن به‌ عنوان هزینه‌ی برگزاری به منتخبین پرداخت خواهد شد.
• نوتیفیکشین و اعلانات و اخبار مسابقه تنها برای شرکت کنندگان مسابقه ارسال می‌شود بنابراین برای اینکه از تغییرات و تصمیمات گرفته شده در طی مسابقه اطلاع پیدا کنید حتما ثبت نام خود را در اسرع وقت انجام دهید.
• زمان تقریبی روند ادامه مسابقه پس از آنکه معماران طرح‌‌های خود را ارسال کردند ۵ روز کاری جهت بررسی تکمیل بودن فایل‌ها توسط طرح تو طرح و ارسال طرح‌ها برای کارفرما، منتور و مشاور زمان خواهد برد. همچنین مدت زمان بررسی طرح‌ها توسط این افراد دو هفته کاری خواهد بود که پس از اتمام این مدت فینالیست‌ها معرفی شده و جلسه دفاعیه برگزار خواهد شد. در نهایت اعلام نفرات برتر مسابقه، یک هفته کاری پس از جلسه دفاعیه صورت می‌گیرد، توجه داشته باشید زمان پرداخت جوایز تا ۶۰ روز پس از تایید کتبی کارفرما توسط طرح تو طرح می‌باشد.
• در تمام مدت برگزاری مسابقه شرکت‌کنندگان اجازه برقراری ارتباط با کارفرما و منتورهای مسابقه را چه از طریق تماس تلفنی، چه مراجعه حضوری و چه ارتباط از طریق شبکه‌های مجازی ندارند و در صورت اطلاع از این موضوع طرح تو طرح این فرد را از مسابقه حذف خواهد کرد.
• شرکت‌کنندگان مسابقه تا زمان اعلام نفرات برتر مسابقه اجازه انتشار طرح خود را در شبکه‌های اجتماعی ندارند و در صورت اطلاع از این موضوع از روند مسابقه حذف خواهید شد.
• فایل اتوکد و ویدیوها و اطلاعات تکمیلی پروژه در قسمت فایل‌های راهنما برای دانلود موجود است.
• در صورت داشتن هرگونه سوال در مورد روند مسابقات ما و یا نحوه پرداخت جوایز به قسمت سوالات متداول مراجعه فرمایید و یا از طریق تیکت با تیم پشتیبانی طرح تو طرح، با ما در ارتباط باشید.
• هرگونه لوگو و اسم خود در طرح‌های ارسالی ممنوع می‌باشد و در صورت مشاهده باعث حذف طرح‌ شما از مسابقه می‌گردد.
• در صورتی‌که هر طراح یا دفتر طراحی، در مسابقه شرکت کند و پس از اتمام مسابقه، فایل‌های ارسالی خود را تکمیل ننماید، از روند مسابقه حذف خواهد شد.
• لطفا فایل‌های خود را تا جایی که مقدور هست با گوشی آپلود نکنید.
• محدودیتی در ارائه چند طرح توسط یک گروه یا شرکت‌کننده نخواهد بود اما لازم است به ازای ارسال هر طرح ثبت‌نام مجدد و پرداخت مجزا انجام شود و یا ارسال به صورت تیم صورت پذیرد که در این صورت نیز نیاز به افزودن تیم در پنل کاربری و پرداخت ورودی مسابقه می‌باشد. (برای اطلاعات بیشتر در مورد تیم کلیک نمایید.)
• در طول مسابقه حتما پرسش و پاسخ‌ها را مطالعه کنید و قبل از ثبت سوال خود، سوالات دیگر طراحان را  که به آنها پاسخ داده شده مطالعه فرمایید.
• اگر مطلبی به مسابقه اضافه شود، در طول مسابقه با رنگ آبی به همراه تاریخ در قسمت توضیحات تکمیلی نوشته خواهد شد، لطفا در طول مسابقه اطلاعات پایه را مطالعه کنید.
• در طول مسابقه حتما وارد بخش اخبار مسابقه شوید و از آخرین اطلاعات مربوطه (حتی پس از پایان مسابقه) مطلع شوید.
• توجه داشته باشید ساعت اتمام ثبت نام و ارسال طرح ها برای تمامی مسابقات تا ساعت ۱۴ تاریخ اعلام شده می‌باشد.

رندر شما باید خصوصیات زیر را داشته باشند.

• ابعاد JPG عرض حداکثر تا ۱۴۰۰ پیکسل
• ابعاد JPG طول حداکثر  تا ۱۴۰۰ پیکسل
• رزولوشن JPG حداکثر ۱۰۰
• فرمت عکس شما JPG
• حجم JPG شما ماکسیمم ۳ مگابایت

فایل های شما باید خصوصیت زیر را داشته باشند.

pdf : حداکثر 100 مگابایت حداقل 10 کیلوبایت
png : حداکثر 5 مگابایت حداقل 10 کیلوبایت
jpeg : حداکثر 5 مگابایت حداقل 10 کیلوبایت
jpg : حداکثر 5 مگابایت حداقل 10 کیلوبایت
dwg : حداکثر 20 مگابایت حداقل 10 کیلوبایت
mp۳ : حداکثر 50 مگابایت حداقل 10 کیلوبایت
wma : حداکثر 50 مگابایت حداقل 10 کیلوبایت
mp۴ : حداکثر 100 مگابایت حداقل 100 کیلوبایت

 

پیشنهاد و بازخورد