پروژه طراحی پلان سیدخندان

مسابقه عمومی
120,000,000 ریال جایزه نقدی

تعداد ثبت نام کنندگان: 437 نفر

اطلاعات پایه

نوع مسابقه
طراحی مسکونی
مبلغ جایزه
120,000,000 ریال
وضعیت مسابقه
پایان یافته
پایان مسابقه
23 مهر 1399

اطلاعات پروژه

موقعیت تهران-سیدخندان
نام شهر تهران
متراژ زیربنا 348 متر مربع

تصاویر پروژه

نمودار زمانی مسابقه

  1. پایان مسابقه

    23_مهر

مواردی که شما باید ارسال کنید

  • پلان اندازه گذاری و مبلمان با فرمت DWG
  • پلان اندازه گذاری با فرمت JPG
  • پلان مبلمان با فرمت JPG

توضیحات تکمیلی

سوالات متداول طراحان

موارد طراحی  :
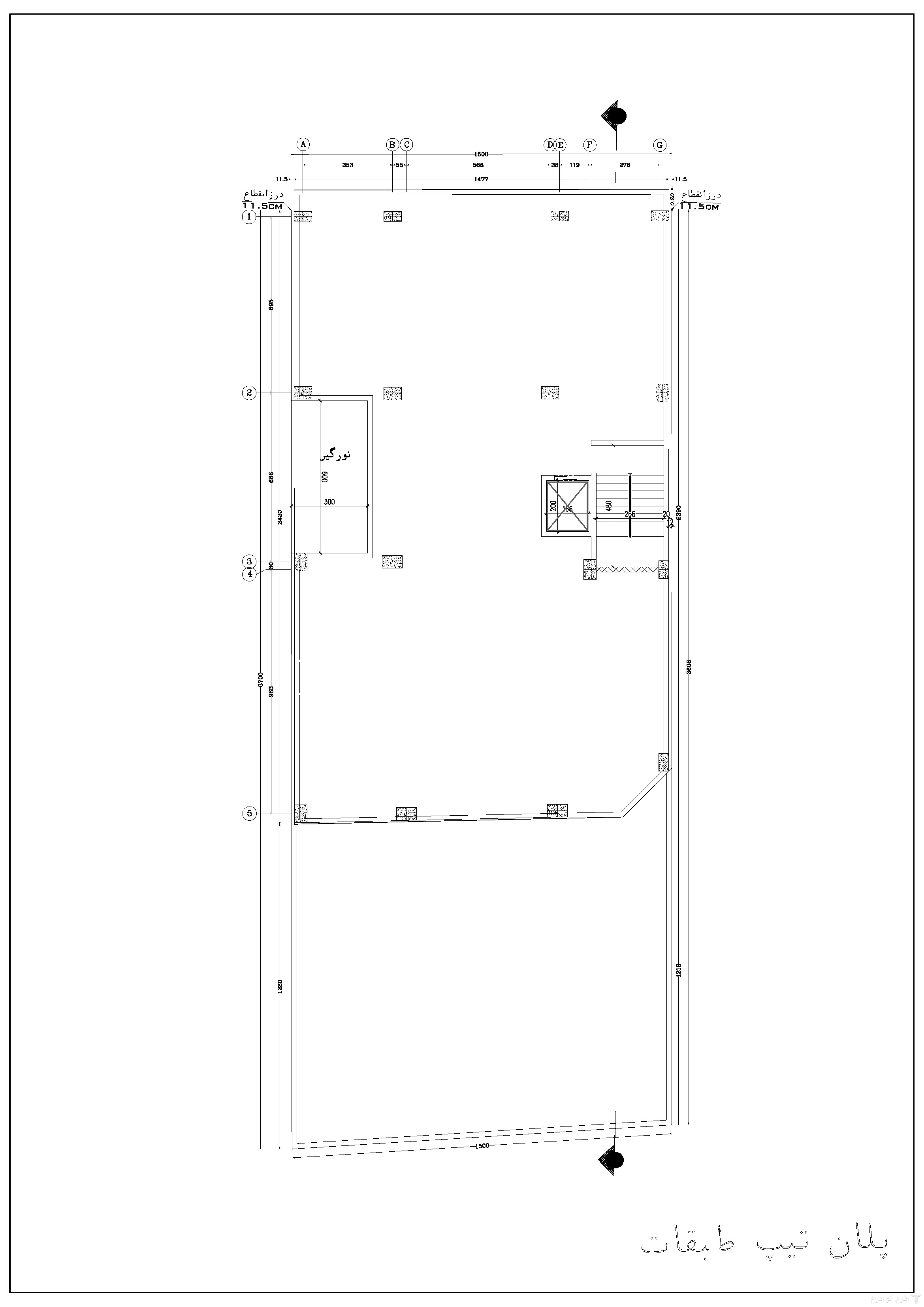
•    طراحی پلان تیپ طبقات مسکونی 


وضعیت پروژه : 

•    پنج طبقه روی همکف
•    اسکلت ساختمان اجرا شده است و موقعیت راه پله، آسانسور و نورگیر مطابق با فایل اتوکد پیوست می باشد.


نوع سازه : 
•    اسکلت بتنی


متراژ طبقه :

•    هر طبقه 348 مترمربع می باشد.


تعداد واحد در هر طبقه :
•    هر طبقه چهار واحد 
•    دو واحد تقریبا 95 متری دو خواب
•    دو واحد تقریبا 60 متری یک خواب


هدف از طراحی:  

•    طراحی پلان های کاربردی و با کیفیت


سبک طراحی:

•    طراحی مدرن


توضیحات پروژه:

•    طراحی واحد ها و لابی بین واحد ها مد نظر است.
•    نیازی به طراحی لابی، پارکینگ و مشاعات نیست.
•    چیدمان واحدها بسته به سلیقه طراح می باشد.
•    محدوده طبقات، ستون گذاری،  پیش امدگی ها، باکس راه پله، آسانسور و نورگیر غیرقابل تغییر است.
•    درب آسانسور قابلیت جابه جایی دارد.
•    ترجیحا تراس داشته باشد.(بسته به سلیقه طراح)
•    ارتفاع کف تا کف طبقات 3/60 متر می باشد.


لطفا موارد زیر را حتما مطالعه فرمایید:
•  طراحانی که به عنوان فینالیست توسط کارفرما مشخص می شوند، می توانند در صورت دلخواه، اصلاحات مد نظر کارفرما را انجام دهند، در اینصورت برای انتخاب نفرات برتر، طرح ایشان در فینال بازنگری دوباره خواهد شد.
• پس از اتمام مسابقه کارفرما می تواند تا %۱۵ طرح پلان و نما  را تغییر دهد که نفرات برتر موظف هستند این تغییرات را اعمال کند.
• درصورت داشتن هر گونه سوال در مورد روند مسابقات ما و یا نحوه ی پرداخت جوایز به قسمت سوالات متداول  مراجعه فرمایید.
•  ضوابط طراحی به زودی در قسمت فایل ها قرار خواهد گرفت.
•  هر گونه لوگو و اسم خود در طرح های ارسالی ممنوع می باشد و درصورت مشاهده باعث حذف طرح های شما می گردد.
•  در طول مسابقه حتما پرسش وپاسخ ها را مطالعه کنید و قبل از فرستادن پرسشی، سوالات دیگر طراحان را مطالعه فرمایید.
•  اگر مطلبی به مسابقه اضافه شود، در طول مسابقه با رنگ آبی در بین مطالب خواهیم نوشت،لطفا در طول مسابقه اطلاعات پایه را مطالعه کنید.


مدارک ارسالی شما باید خصوصیات زیر را داشته باشند:
•  ابعاد عکس عرض حداکثر تا PIX ۲۵۰۰
•  ابعاد عکس طول حداکثر  تا PIX ۲۵۰۰
• رزولوشن حداکثر 150
•  فرمت عکس شما JPG
•  حجم عکس شما ماکسیمم ۳MB
•  اتوکد با ورژن 2010 به پایین آپلود شود.
• تمامی نقشه های ارسالی در یک فایل اتوکد باشد.

دستورالعمل ارسال فایل‌ها و قوانین مسابقه

امتیازات این مسابقه

انصراف از مسابقه شرکت در مسابقه فینالیست تقدیر شونده نفر سوم نفر دوم نفر اول
-20 10 50 50 100 300 600
پیشنهاد و بازخورد