طراحی ساختمان مسکونی امپریال رزیدنس کامرانیه ( با امتیاز دو برابر)

طراحی ساختمان مسکونی امپریال رزیدنس کامرانیه ( با امتیاز دو برابر)

شروع مسابقه : 04 خرداد 1404

پایان ثبت‌نام : پایان یافته

پایان مسابقه : 08 مرداد 1404

مبلغ ورودی : 600,000 تومان

4,200,000,000 ریال جایزه نقدی
تعداد شرکت کنندگان: 33 نفر

اطلاعات پایه

  • نوع مسابقه:

    طراحی مسکونی

  • مبلغ جایزه:

    4,200,000,000 ریال

  • متراژ زیربنا:

    7200 متر مربع

  • وضعیت مسابقه:

    پایان یافته

  • موقعیت:

    کامرانیه

  • نام شهر:

    تهران

  • مساحت زمین:

    1278 متر مربع

نمودار زمانی مسابقه

  1. شروع

    04_خرداد

  2. پایان ثبت‌نام

    29_تیر

  3. پایان مسابقه

    08_مرداد

اطلاعات بیشتر

سید جلال موسوی

کارفرما

سید جلال موسوی

  • بیش از ۲۰ سال فعالیت در زمینه صنعت ساختمان
سعید مومنی

مشاور کارفرما

سعید مومنی

  • بیش از 10 سال سابقه طراحی، اجرا و مدیریت پروژه های مسکونی، اداری و تجاری

توضیحات تکمیلی

فایل ضوابط پارکینگ به مسابقه اضافه شد 28-04-1404

نکته مهم : طراحان باید تمامی فایل های درخواستی را تامین کنند، در صورت کمبود مدارک از روند مسابقه حذف خواهند شد.

موارد ارسالی توسط طراحان 

رندر از نمای شمالی با فرمت JPG
رندر از نمای شرقی با فرمت JPG

رندر از نمای جنوبی با فرمت JPG
رندر از نورپردازی نمای شمالی با فرمت JPG
رندر از نورپردازی نمای شرقی با فرمت JPG

رندر از نورپردازی نمای جنوبی با فرمت JPG
• رندر از داخلی لابی با فرمت JPG
• رندر از داخلی GYM با فرمت JPG
• رندر از داخلی اتاق بیلیارد و فوتبال دستی با فرمت JPG
• رندر از داخلی اتاق بازی دیجیتال با فرمت JPG
• رندر از داخلی سالن اجتماعات با فرمت JPG
• رندر از داخلی سالن سینما با فرمت JPG

• رندر از روف گاردن با فرمت JPG
• رندر از محوطه با فرمت JPG
پلان مبلمان بام (روف گاردن)  با فرمت JPG
پلان اندازه گذاری بام (روف گاردن) با فرمت JPG
پلان مبلمان محوطه  با فرمت JPG
پلان اندازه گذاری محوطه با فرمت JPG

• جدول متریال برای نما‌‌‌‌‌‌‌‎‌‎‌‌، روف‌گاردن‌، لابی و محوطه با فرمت JPG
فایل DWG شامل پلان روف گاردن، محوطه
یک عدد فایل شامل تمام پلان ها، رندرهای نمای شمالی، شرقی و جنوبی، داخلی لابی،داخلی GYM، داخلی اتاق بیلیارد و فوتبال دستی، داخلی اتاق بازی دیجیتال،‌ داخلی سالن اجتماعات،‌ داخلی سالن سینما،‌ روف گاردن، محوطه و جدول متریال (تمامی مدارک ) جهت ارائه طرح با فرمت pdf

توجه داشته باشید ساعت اتمام ثبت نام و ارسال طرح ها برای تمامی مسابقات تا ساعت ۱۴ تاریخ اعلام شده می‌باشد.

توضیحات مهم پروژه 
 وضعیت کنونی پروژه ساختمان در حال ساخت ( در مرحله سفت کاری ) 
 • محل ستون ها، محل پنجره ها، ابعاد پنجره ها، بالکن ها ثابت و غیر قابل تغییر است ( ابعاد پنجره ها از پلان ها و نماها قابل برداشت است)
• تمامی طرح ها اجرایی و با رعایت کامل ضوابط شهرسازی و آتش نشانی باشد.


فایل اتوکد پروژه در فایل های راهنما قابل دانلود است.

موارد طراحی
• طراحی نمای شمالی 
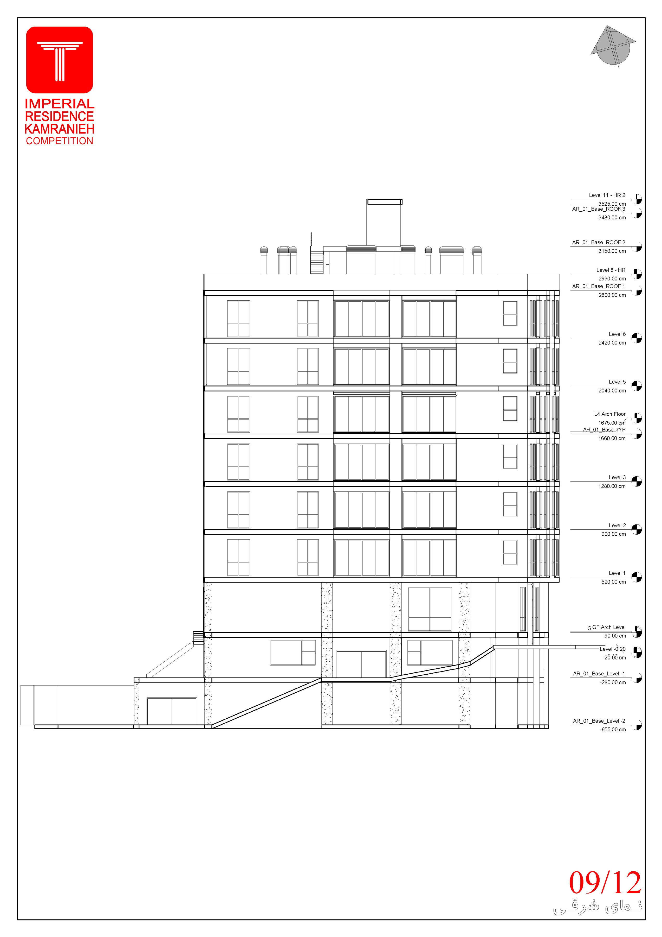
• طراحی نمای شرقی 

• طراحی نمای جنوبی
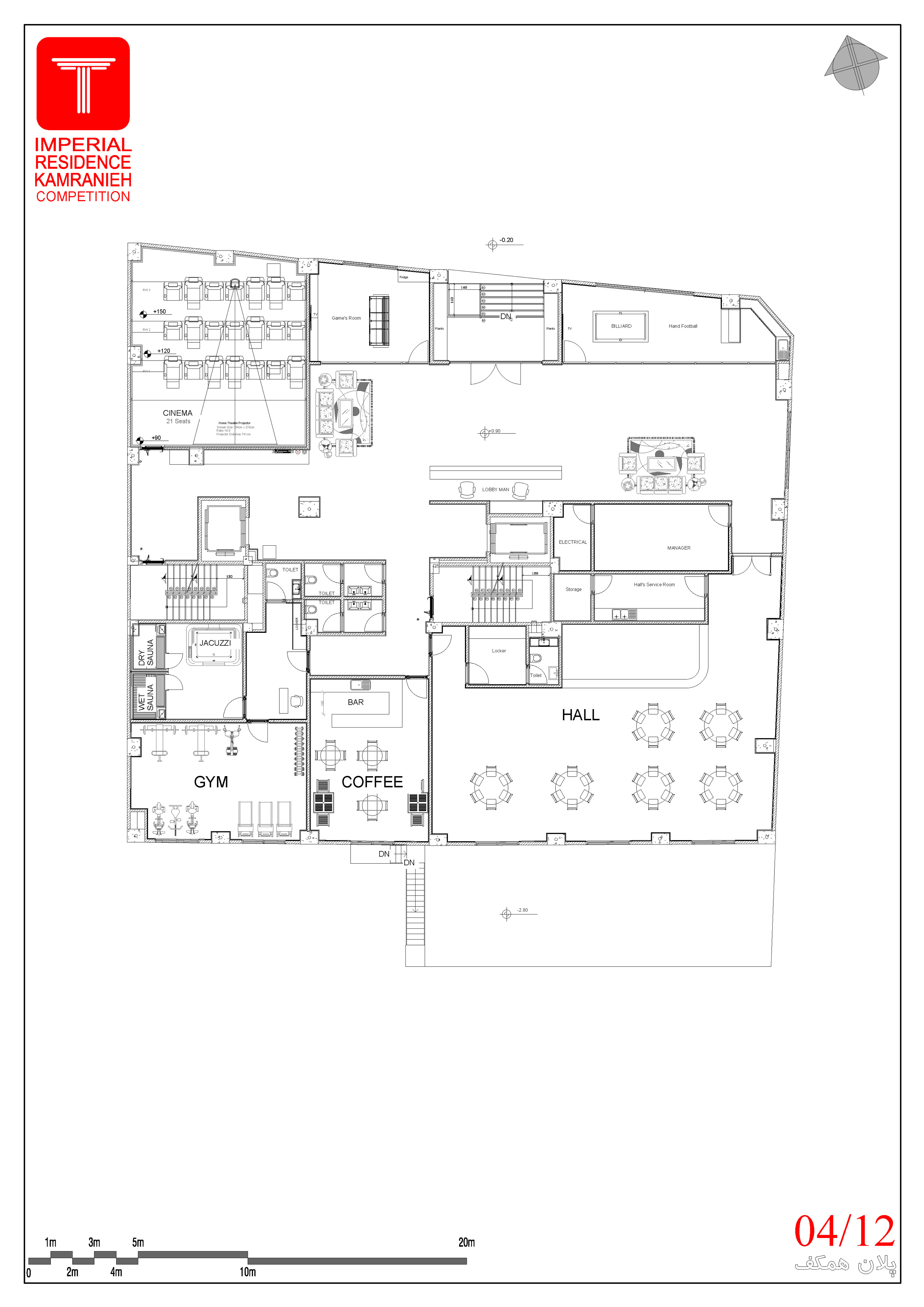
• طراحی داخلی لابی و فضاهای مشاعی همکف
• طراحی روف گاردن
• طراحی محوطه

جایزه مسابقه 
• مبلغ کل مسابقه : 4.200.000.000 ریال ( به حروف چهار میلیارد و دویست میلیون ریال) می باشد.
•  نفر اول : مبلغ 2.300.000.000 ریال ( به حروف دو میلیارد و سیصد میلیون ریال ) : پس از تایید اصلاحات نهایی توسط کارفرما پرداخت خواهد شد. ( اخذ تاییدیه کمیته نما به عهده ی طراح منتخب می باشد و مجموعه طرح تو طرح مبلغ   1.400.000.000  ریال از جایزه طراح را تا زمان اخذ تاییدیه کمیته نما و ارائه ی فاز 2 نما (جهت ارائه به شهرداری ) نزد خود نگه میدارد )
• نفر دوم : مبلغ 900.000.000 ریال ( به حروف نهصد میلیون ریال )  : پس از تایید اصلاحات نهایی توسط کارفرما پرداخت خواهد شد.
• نفر سوم  : مبلغ 300.000.000 ریال ( به حروف سیصد میلیون ریال ) : پس از تایید اصلاحات نهایی توسط کارفرما پرداخت خواهد شد.
• تقدیر شونده : مبلغ 700.000.000 ( به حروف  هفتصد میلیون ریال ) : همچنین جایزه ای ویژه جهت نفر منتخب کارفرما برای طراحی روف گاردن، لابی و محوطه و طراحی های داخلی اختصاص خواهد یافت . پس از تایید اصلاحات نهایی توسط کارفرما پرداخت خواهد شد.
مبالغ جایزه بعد از کسر 12 درصد هزینه برگزاری مسابقه به نفرات پرداخت خواهد شد.

توضیحات کلی پروژه
ساختمان مسکونی با متراژ زمین 1278 مترمربع (پس از اصلاح)  و زیربنای تقریبی 7200 مترمربع می‌باشد.

سبک طراحی
•مدرن

نوع سازه
• اسکلت بتنی


نوع سازه سقف
• وافل 

سیستم سرمایش و گرمایش
• فن کوئل سقفی 

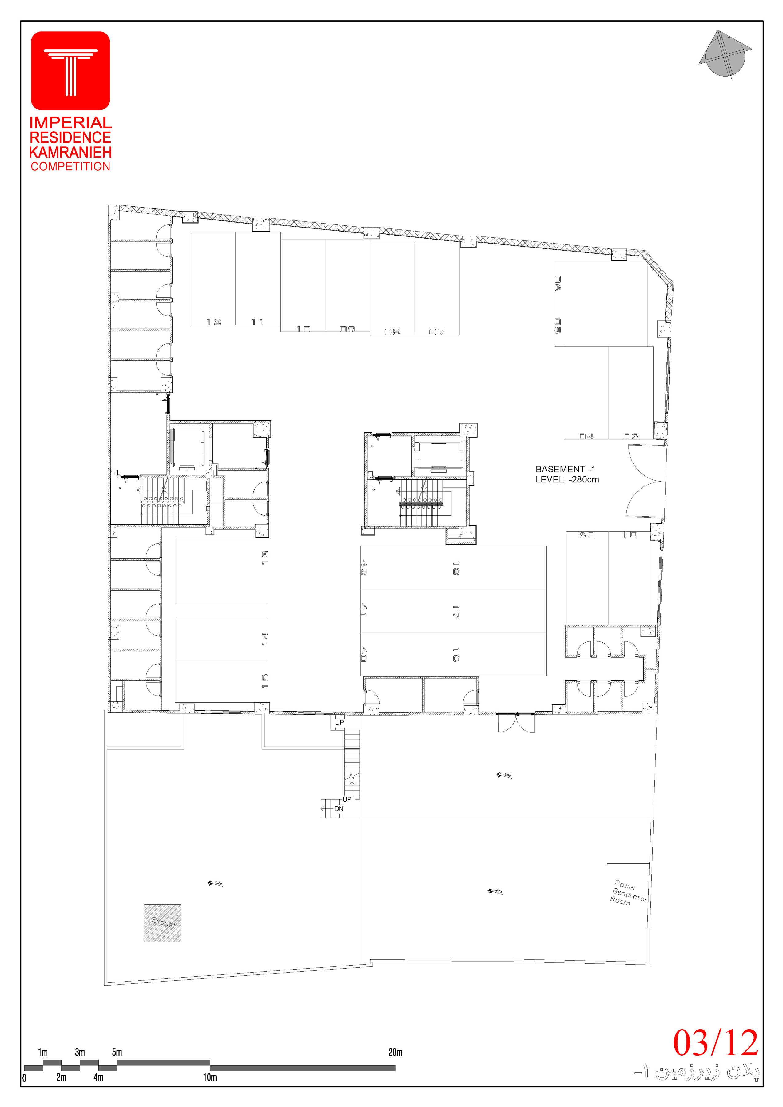
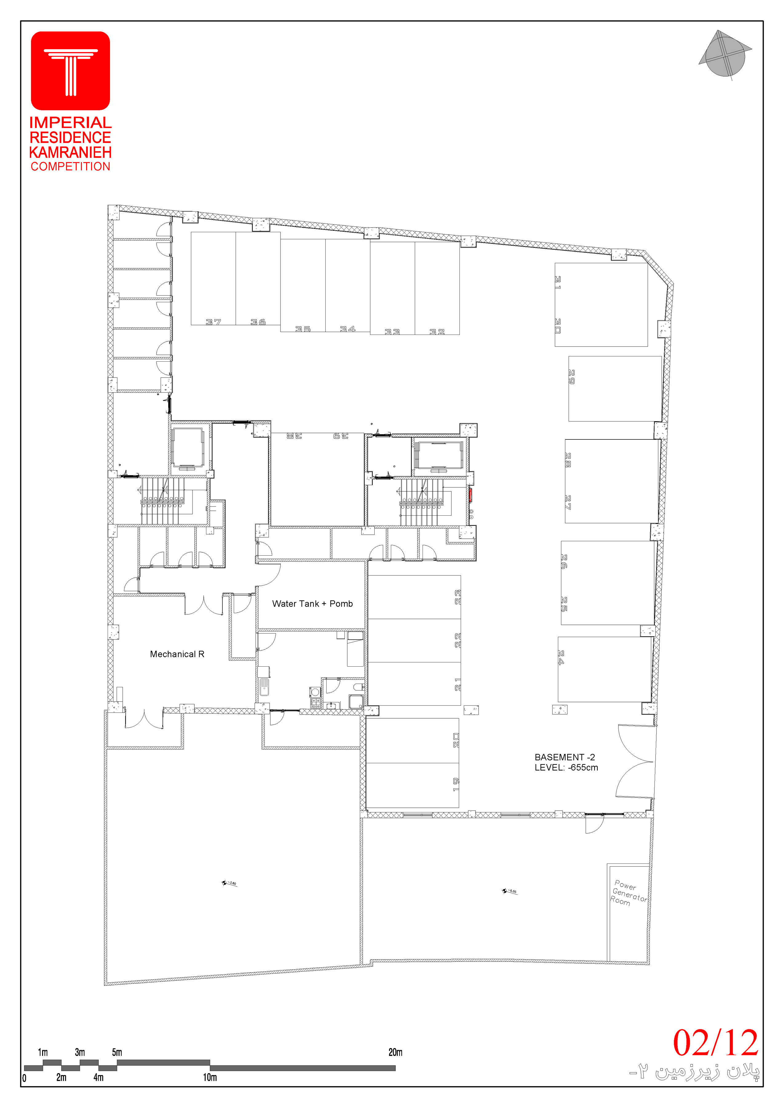
کد مجاز همکف و کد صفر‌– صفر در سایت پلان
• کد صفر طبق فایل اتوکد(روی خط 60 درصد)
• کد ارتفاعی کف طبقه همکف 1/20+(مطابق فایل اتوکد)


ارتفاع مجاز طبقات و کدهای ارتفاعی 
• کدهای ارتفاعی تمامی طبقات مطابق برش ارائه شده در فایل اتوکد

طراحی نما
فایل سه بعدی حجم ساختمان در قسمت فایل های راهنمای آپلود شده است.
طراحی نمای شمالی، شرقی و جنوبی (قابل دفاع در کمیته نمای منطقه 1 شهرداری تهران )
•طراحی نما بدون تغییر در  محل ستون ها ، پلان ها ، جانمایی بالکن ها و پنجره ها و ابعاد آنها (مطابق پلان ها و نماها و فایل سه بعدی آپلود شده ) انجام گیرد 
حجم سازی کاذب در نما به صورت موضعی تا 30 سانتی متر مجاز است .
• طراحی نما به سبک مدرن 
• نمای هر سه وجه یکپارچه طراحی شود.
• نما ترجیحا تمام سنگ
• از استفاده ی فلز مثل ورق، نبشی و ناودانی در نما خودداری شود.
ابعاد و محل پنجره ها مطابق پلان ها و نما ها و فایل سه بعدی ارائه شده  به صورت قدی و بدون تغییر باشد.
• استفاده از چوب مجاز نمی باشد.
• هند ریل بالکن ها شیشه ای باشد.
• در طراحی بالکن ها از گل و گیاه و مواردمشابه استفاده گردد.
• در نورپردازی نما به تعمیر و نگهداری تجهیزات نورپردازی توجه شود به نحوی که در دسترس و قابل تعمیر باشد.

طراحی لابی 
• طراحی داخلی لابی  هماهنگ با طراحی نما 
• انتخاب متریال مورد استفاده از متریال های به روز و موجود در بازار و  هماهنگ با نما

 طراحی فضاهای مشاعی همکف
• طراحی داخلی GYM 
• طراحی داخلی اتاق بیلیارد و فوتبال دستی 
• طراحی داخلی اتاق بازی دیجیتال
• طراحی داخلی سالن اجتماعات
• طراحی داخلی سالن سینما

طراحی روف گاردن
• فضاها و المان های مورد نیاز برای طراحی روف گاردن عبارتند از : آبنما، باربیکیو، شومینه، نشیمن و فضای تجمع سرپوشیده،نشیمن و فضای تجمع روباز، مسیر پیاده روی، فضایی برای مایکروویو و شستشوی ظروف ، فضای سبز و استفاده از درختچه های خاص
• در طراحی روف گاردن از ترکیب آب، گیاه و درخت استفاده شود.
• برای تامین فضای ریشه ی درخت ها از فلاور باکس استفاده شود (از قراردادن درخت بر روی کد کف بام خودداری شود )
• جهت جلوگیری از ایستادن ساکنین، در اطراف پاسیو ها از باغچه استفاده شود.
• انتخاب متریال مورد استفاده از متریال های به روز و موجود در بازار 
• طراحی باربیکیو، نشیمن و فضای تجمع سرپوشیده، نشیمن و فضای تجمع رو باز، فضای سبز به صورت فلاور باکس های پرتابل 

طراحی محوطه 
• فضاها و المان های مورد نیاز برای طراحی محوطه عبارتند از : دیوار محوطه، ورودی مجموعه ، فضای سبز، آبنما، کف سازی محوطه،نورپردازی، فضای نشیمن روباز و فضای نشیمن سرپوشیده
• استفاده از آب به عنوان رودخانه ی مصنوعی در اتصال کد ارتفاعی 3/80- به 6/55- یا ایده های مشابه 


توجه داشته باشید ساعت اتمام ثبت نام و ارسال طرح ها برای تمامی مسابقات تا ساعت ۱۴ تاریخ اعلام شده می‌باشد.

 

 

امتیازات این مسابقه

انصراف از مسابقه شرکت در مسابقه فینالیست تقدیر شونده نفر سوم نفر دوم نفر اول
-40 20 100 100 200 600 1200

توجه!

هرگونه ارتباط مستقیم توسط شرکت کنندگان مسابقه با کارفرما و منتور، منجر به حذف شرکت کننده از مسابقه می‌گردد.

توجه داشته باشید ساعت اتمام ثبت نام و ارسال طرح ها برای تمامی مسابقات تا ساعت ۱۴ تاریخ اعلام شده می‌باشد.

طراحان عزیز اگر در مسابقه نیاز به ارسال فایل اتوکد باشد، برای سهولت بررسی طرح‌های ارسالی، رعایت موارد زیر ضروری است.
• Polyline مساحت کل طبقات و واحدهای مسکونی بر روی خود نقشه و در لایه جداگانه ترسیم شود.
• مساحت واحدهای مسکونی داخل واحدها درج شود.
• کادر دور پارکینگ‌ها ترسیم شود.
• پارکینگ‌ها اندازه‌گذاری شود.
• فایل اتوکد در محیط Model ارسال شود (در محیط Layout نباشد)
• واحد اتوکد بر روی Meters تنظیم شود.
• تمام فضاها نام‌گذاری شود.
• پارکینگ‌ها و انبار‌ها شماره‌گذاری شود.
• کدهای ارتفاعی در تمامی پلان‌ها، نماها و مقاطع درج شود.
• از تغییر اندازه بلوک‌های مبلمان اتوکد در پلان‌ها به شدت پرهیز شود.
• فایل اتوکد حتما با Save as ۲۰۱۰  آپلود شود.

لطفا موارد زیر را حتما مطالعه فرمایید
• مطابق قوانین و مقررات طرح تو طرح تمامی مبالغ پرداختی به شرکت کنندگان مسابقه (جایزه مسابقه، هزینه شرکت در مسابقه lifecost و ...) بعد از تایید اصلاحات انجام شده توسط کارفرما و پس از کسر هفت درصد برای مسابقه عمومی و ده درصد برای مسابقات محدود از آن به‌ عنوان هزینه‌ی برگزاری به منتخبین پرداخت خواهد شد.
• نوتیفیکشین و اعلانات و اخبار مسابقه تنها برای شرکت کنندگان مسابقه ارسال می‌شود بنابراین برای اینکه از تغییرات و تصمیمات گرفته شده در طی مسابقه اطلاع پیدا کنید حتما ثبت نام خود را در اسرع وقت انجام دهید.
• زمان تقریبی روند ادامه مسابقه پس از آنکه معماران طرح‌‌های خود را ارسال کردند ۵ روز کاری جهت بررسی تکمیل بودن فایل‌ها توسط طرح تو طرح و ارسال طرح‌ها برای کارفرما، منتور و مشاور زمان خواهد برد. همچنین  مدت زمان بررسی طرح‌ها  توسط این افراد دو هفته کاری خواهد بود که پس از اتمام این مدت فینالیست‌ها معرفی شده و جلسه دفاعیه برگزار خواهد شد. در نهایت اعلام نفرات برتر مسابقه، یک هفته کاری پس از جلسه دفاعیه صورت می‌گیرد، توجه داشته باشید زمان پرداخت جوایز تا ۶۰ روز پس از تایید کتبی کارفرما توسط طرح تو طرح می‌باشد.
• در تمام مدت برگزاری مسابقه شرکت‌کنندگان اجازه برقراری ارتباط با کارفرما و منتورهای مسابقه را چه از طریق تماس تلفنی، چه مراجعه حضوری و چه ارتباط از طریق شبکه‌های مجازی ندارند و در صورت اطلاع از این موضوع طرح تو طرح این فرد را از مسابقه حذف خواهد کرد.
• شرکت‌کنندگان مسابقه تا زمان اعلام نفرات برتر مسابقه اجازه انتشار طرح خود را در شبکه‌های اجتماعی ندارند و در صورت اطلاع از این موضوع از روند مسابقه حذف خواهید شد.
• فایل اتوکد و ویدیوها و اطلاعات تکمیلی پروژه در قسمت فایل‌های راهنما برای دانلود موجود است.
• در صورت داشتن هرگونه سوال در مورد روند مسابقات ما و یا نحوه پرداخت جوایز به قسمت سوالات متداول مراجعه فرمایید و یا از طریق تیکت با تیم پشتیبانی طرح تو طرح، با ما در ارتباط باشید.
• هرگونه لوگو و اسم خود در طرح‌های ارسالی ممنوع می‌باشد و در صورت مشاهده باعث حذف طرح‌ شما از مسابقه می‌گردد.
• در صورتی‌که هر طراح یا دفتر طراحی، در مسابقه شرکت کند و پس از اتمام مسابقه، فایل‌های ارسالی خود را تکمیل ننماید، از روند مسابقه حذف خواهد شد.
• لطفا فایل‌های خود را تا جایی که مقدور هست با گوشی آپلود نکنید.
• محدودیتی در ارائه چند طرح توسط یک گروه یا شرکت‌کننده نخواهد بود اما لازم است به ازای ارسال هر طرح ثبت‌نام مجدد و پرداخت مجزا انجام شود و یا ارسال به صورت تیم صورت پذیرد که در این صورت نیز نیاز به افزودن تیم در پنل کاربری و پرداخت ورودی مسابقه می‌باشد. (برای اطلاعات بیشتر در مورد تیم کلیک نمایید.)
• در طول مسابقه حتما پرسش و پاسخ‌ها را مطالعه کنید و قبل از ثبت سوال خود، سوالات دیگر طراحان را  که به آنها پاسخ داده شده مطالعه فرمایید.
• اگر مطلبی به مسابقه اضافه شود، در طول مسابقه با رنگ آبی به همراه تاریخ در قسمت توضیحات تکمیلی نوشته خواهد شد، لطفا در طول مسابقه اطلاعات پایه را مطالعه کنید.
• در طول مسابقه حتما وارد بخش اخبار مسابقه شوید و از آخرین اطلاعات مربوطه (حتی پس از پایان مسابقه) مطلع شوید.
• توجه داشته باشید ساعت اتمام ثبت نام و ارسال طرح ها برای تمامی مسابقات تا ساعت ۱۴ تاریخ اعلام شده می‌باشد.

رندر شما باید خصوصیات زیر را داشته باشند
• ابعاد JPG عرض حداکثر تا ۱۴۰۰ پیکسل
• ابعاد JPG طول حداکثر  تا ۱۴۰۰ پیکسل
• رزولوشن JPG حداکثر ۱۰۰
• فرمت عکس شما JPG
• حجم JPG شما ماکسیمم ۳ مگابایت

پیشنهاد و بازخورد