طراحی نما ساختمان تجاری لنا

طراحی نما ساختمان تجاری لنا

شروع مسابقه : 24 مهر 1402

پایان ثبت‌نام : پایان یافته

پایان مسابقه : 25 آذر 1402

مبلغ ورودی : 450,000 تومان

1,500,000,000 ریال جایزه نقدی
تعداد شرکت کنندگان: 66 نفر

اطلاعات پایه

  • نوع مسابقه:

    طراحی تجاری/ اداری

  • مبلغ جایزه:

    1,500,000,000 ریال

  • متراژ زیربنا:

    1100 متر مربع

  • وضعیت مسابقه:

    پایان یافته

  • موقعیت:

    پردیس- فاز 11

  • نام شهر:

    پردیس

  • مساحت زمین:

    300 متر مربع

نمودار زمانی مسابقه

  1. شروع

    24_مهر

  2. پایان ثبت‌نام

    06_آذر

  3. پایان مسابقه

    25_آذر

  4. اعلام نتایج

    06_بهمن

مواردی که شما باید ارسال کنید

  • یک آلبوم از نما‌ها،معرفی متریال پیشنهادی، لیست قیمت و توجیه طرح با فرمت PDF
  • تصاویر سه بعدی دو وجه نما با فرمت JPG
  • تصاویر سه بعدی نورپردازی دو وجه نما با فرمت JPG

اطلاعات بیشتر

دکتر شهاب میرزاییان

منتور

دکتر شهاب میرزاییان

  • موسس شرکت مهندسین مشاور منظر بوم نقش
  • برنده سه دوره جایزه معمار
  • برنده چهار دوره جایزه معماری داخلی
  • برنده جایزه معمار آسیا ۲۰۱۹
  • تقدیر شده فستیوال جهانی سیتی اسکیپ

توضیحات تکمیلی

میزان پیشروی برای نماسازی از بر ستون 50 سانتی متر است. 1402.09.18

نقشه سازه پروژه لنا به در قسمت فایل‌های راهنما آپلود شد.1402.09.07


موارد طراحی
• طراحی نما تجاری


جایزه مسابقه 
جایزه این مسابقه مبلغ 150 میلیون تومان در نظر گرفته شده است که به سه نفر منتخب به شرح زیر پرداخت خواهد شد.
نفر اول: مبلغ 70 میلیون تومان پس از تایید اصلاحات نهایی توسط کارفرما پرداخت خواهد شد + ۲۰ میلیون  تومان که این مبلغ پس ارائه جزئیات اجرایی نما و اخذ تاییدیه کمیته نما پرداخت خواهد شد.
• به درخواست کارفرما مبلغ 20 میلیون تومان مازاد بر جایزه مسابقه به نفر اول بابت طراحی فاز 2 معماری که شامل: فاز 2 معماری اجرایی پلان‌ها ، فاز 2 نما و برش دیوارها، هماهنگی معماری و سازه و برق و مکانیک و جلسات در حین اجرا در دفتر مشاور است تعلق می‌گیرد.
نفر دوم: مبلغ 45 میلیون تومان پس از تایید اصلاحات نهایی توسط کارفرما پرداخت خواهد شد.
نفر سوم: مبلغ 15 میلیون تومان پس از تایید اصلاحات نهایی توسط کارفرما پرداخت خواهد شد.
• جوایز نفر اول تا سوم پس از کسر هفت درصد از آن به‌ عنوان هزینه‌ی برگزاری به نفرات برتر پرداخت خواهد شد.


سبک نما

• مدرن

 

توضیحات کلی پروژه 
• سازه ساختمان بتنی است.
• تمامی پلاک‌های مجاور سایت مسابقه نیز کاربری تجاری دارد و توجه به خاص بودن و المان بودن حائز اهمیت است.
• پلان طبقات فلت است و توجه به اینکه طرح ارائه شده اجرایی باشد حائز اهمیت است.
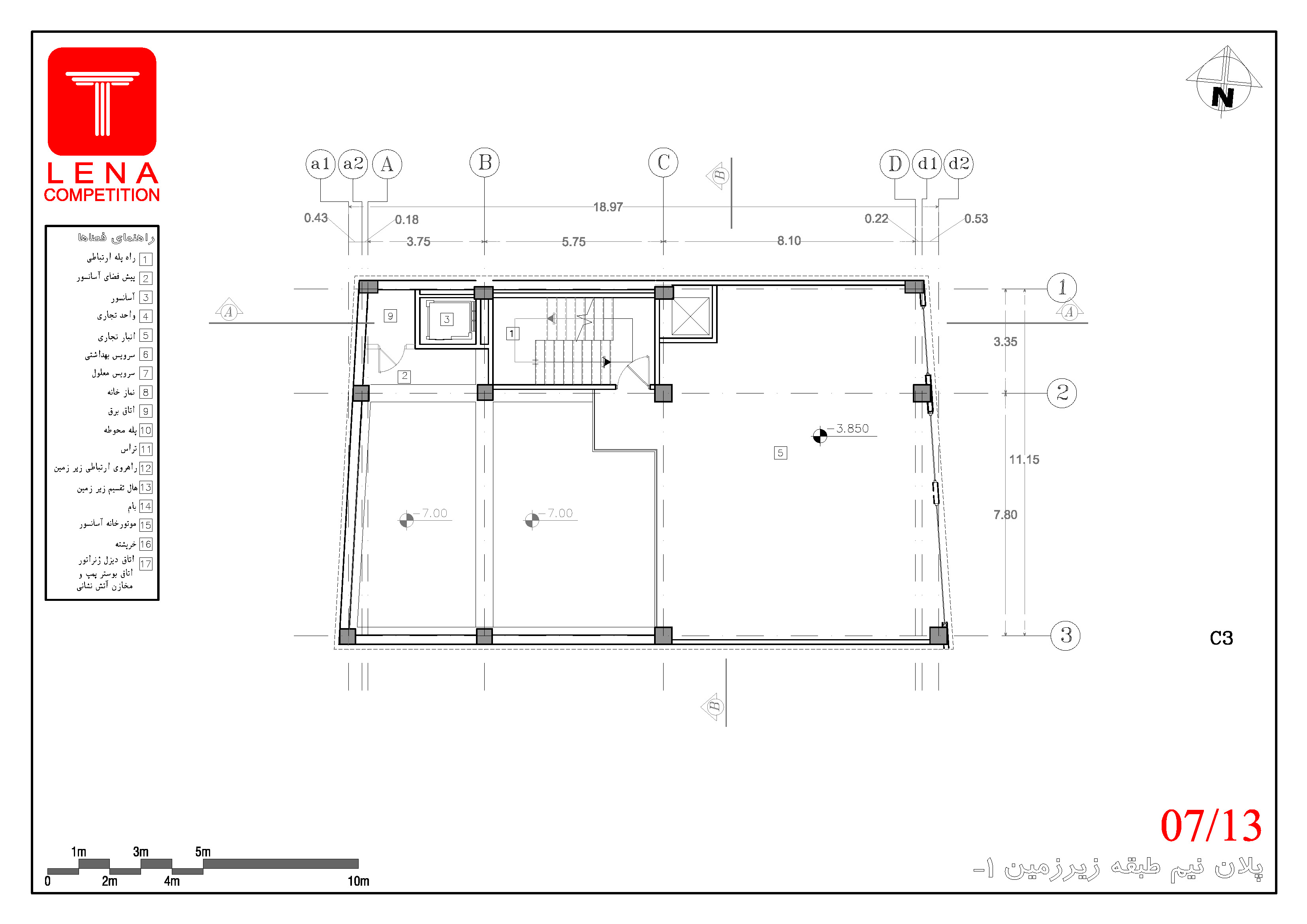
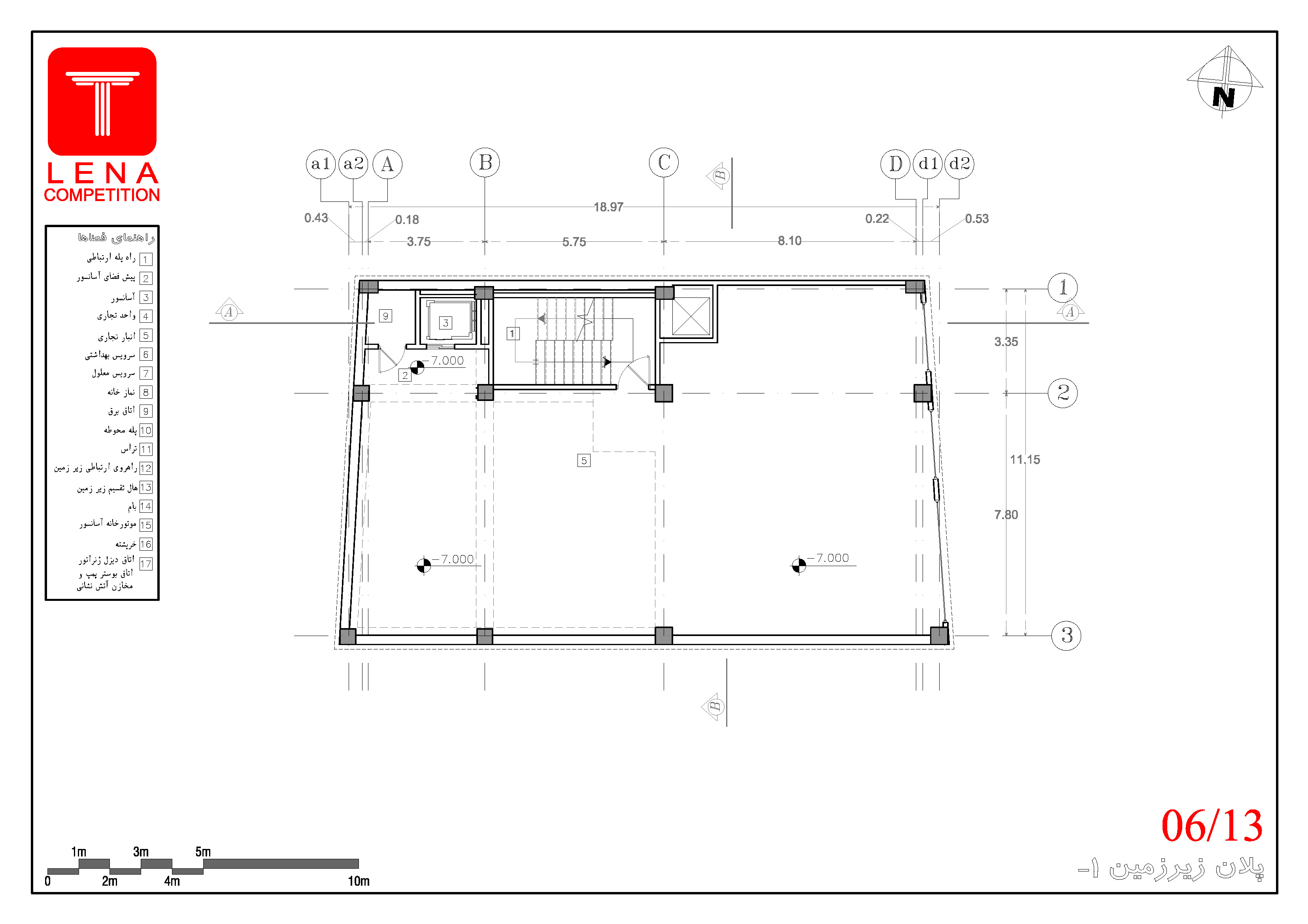
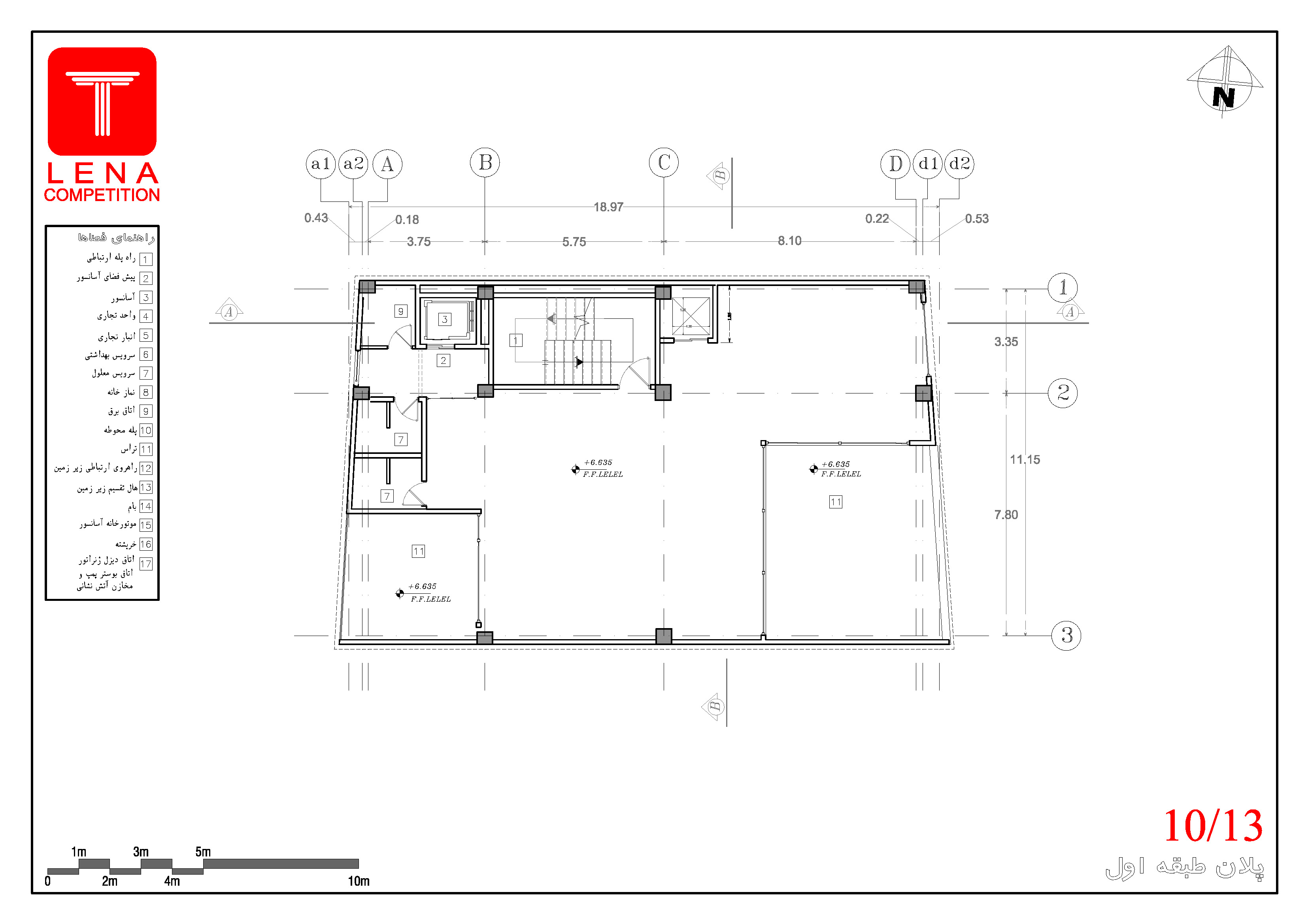
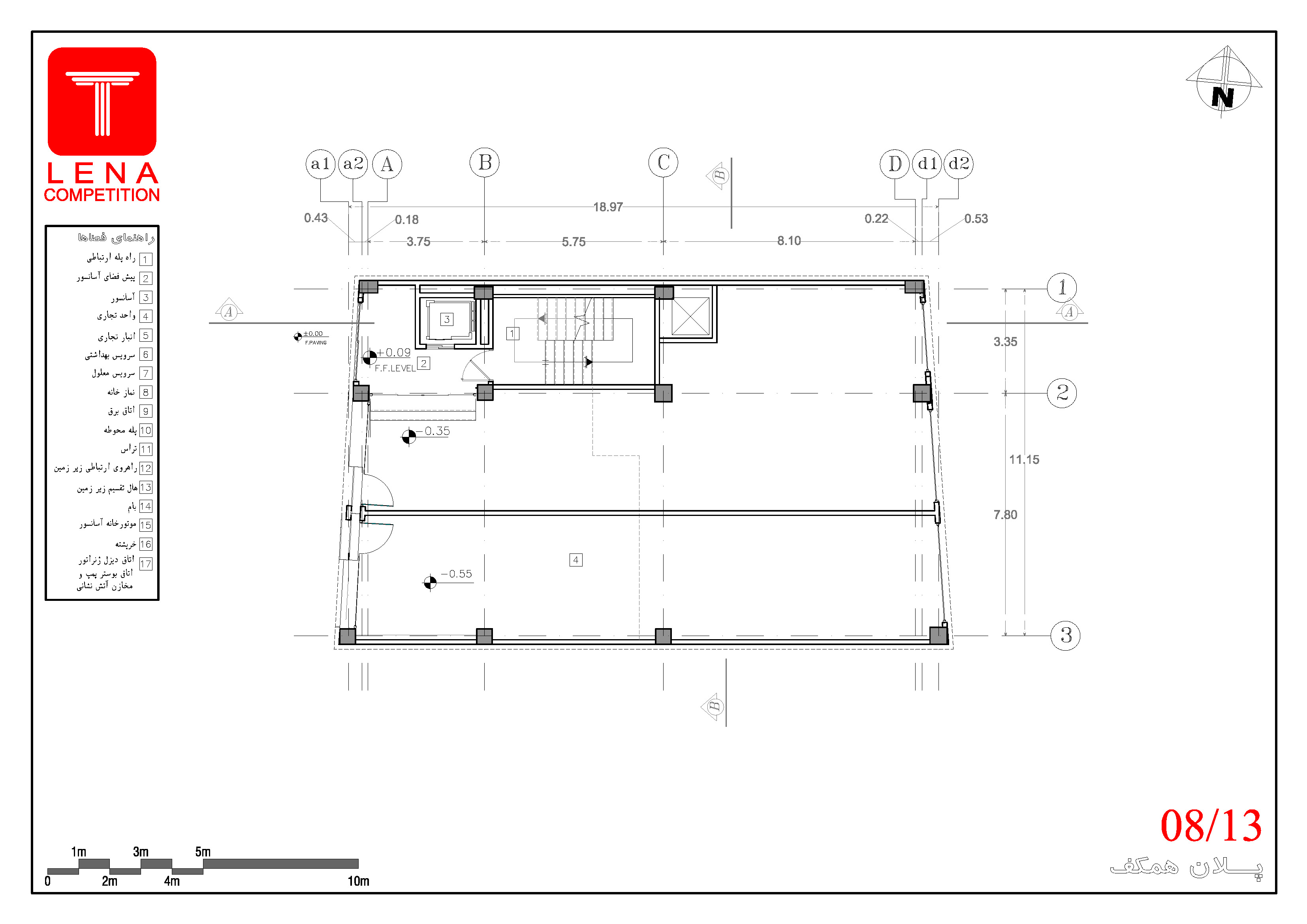
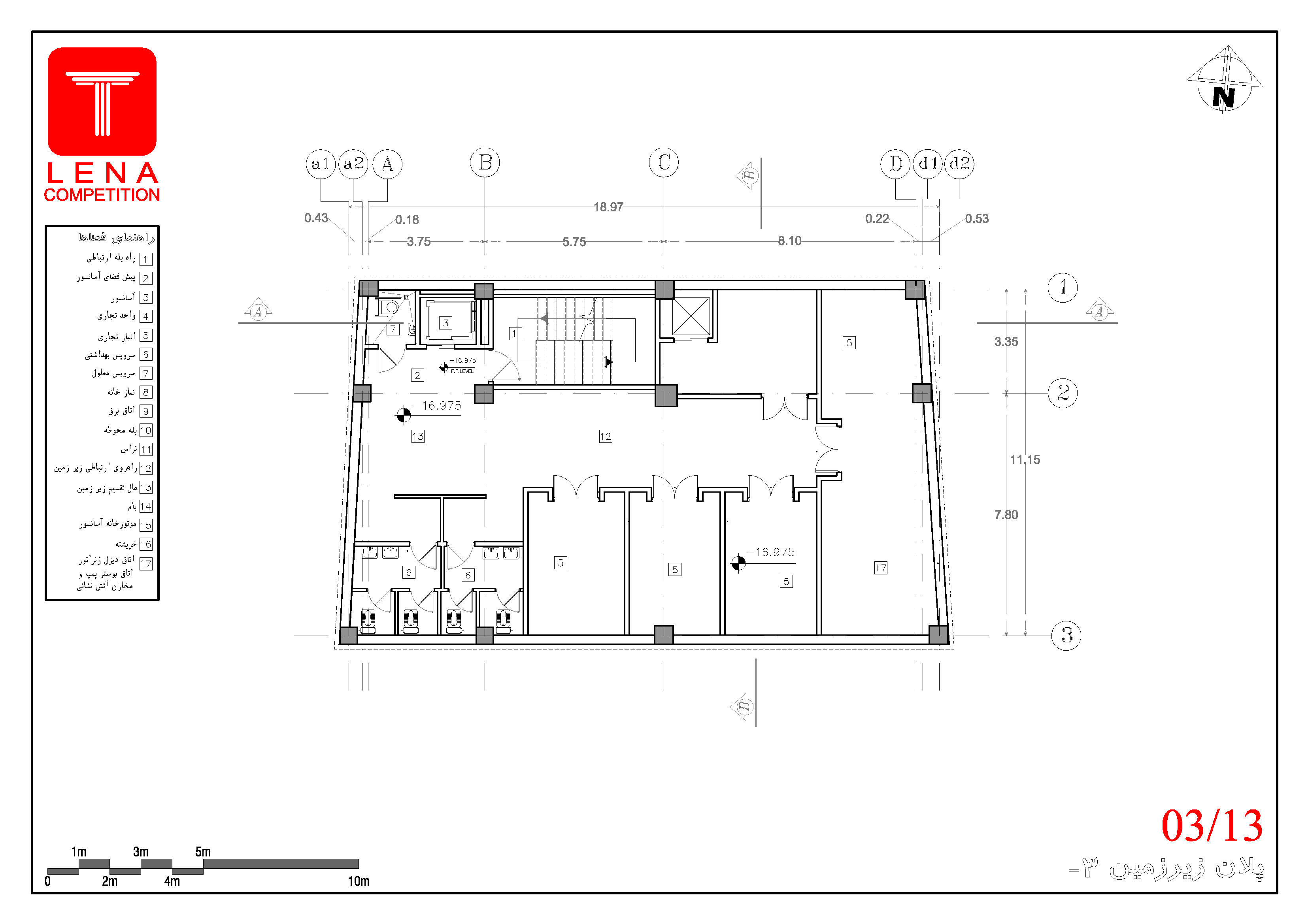
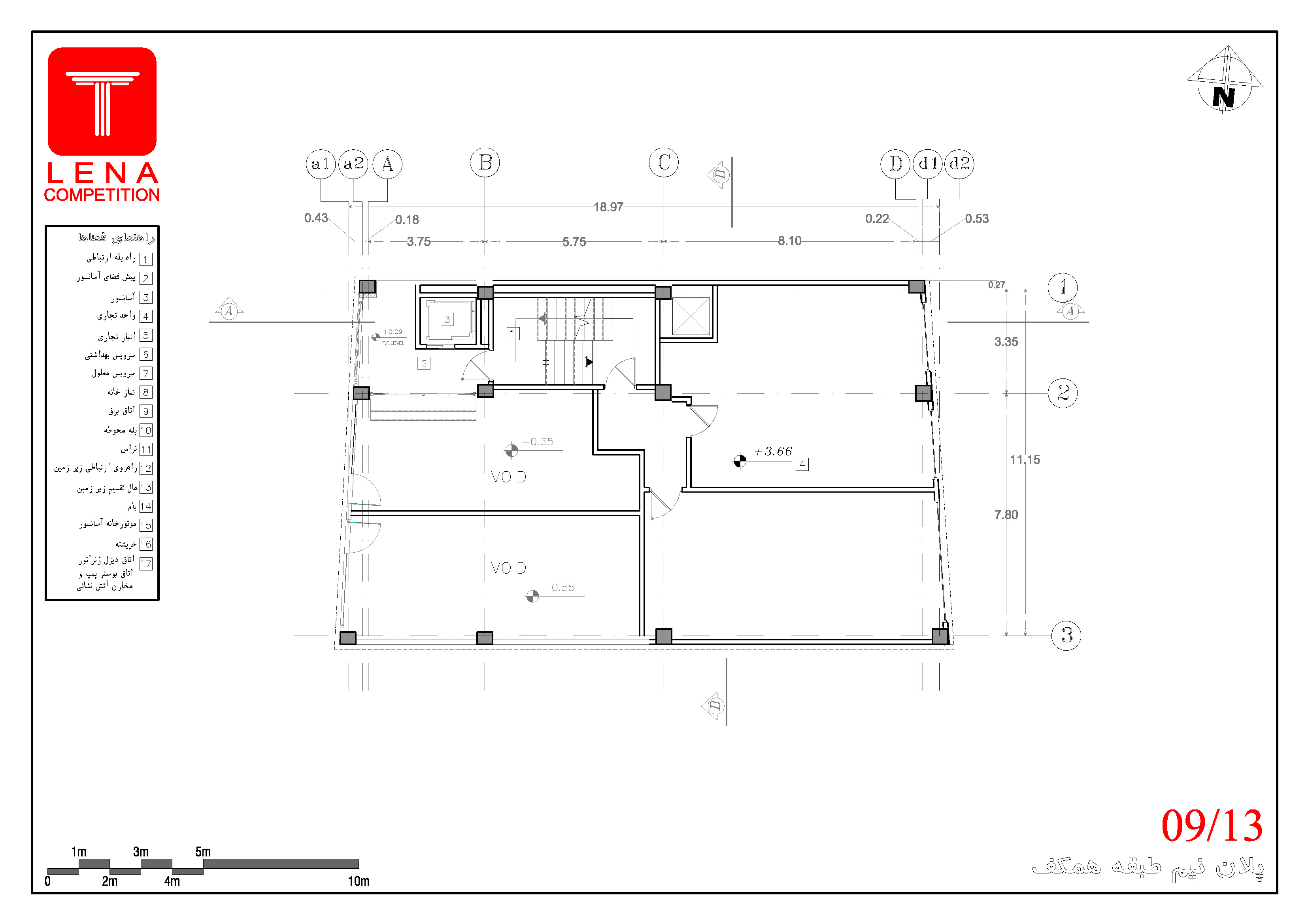
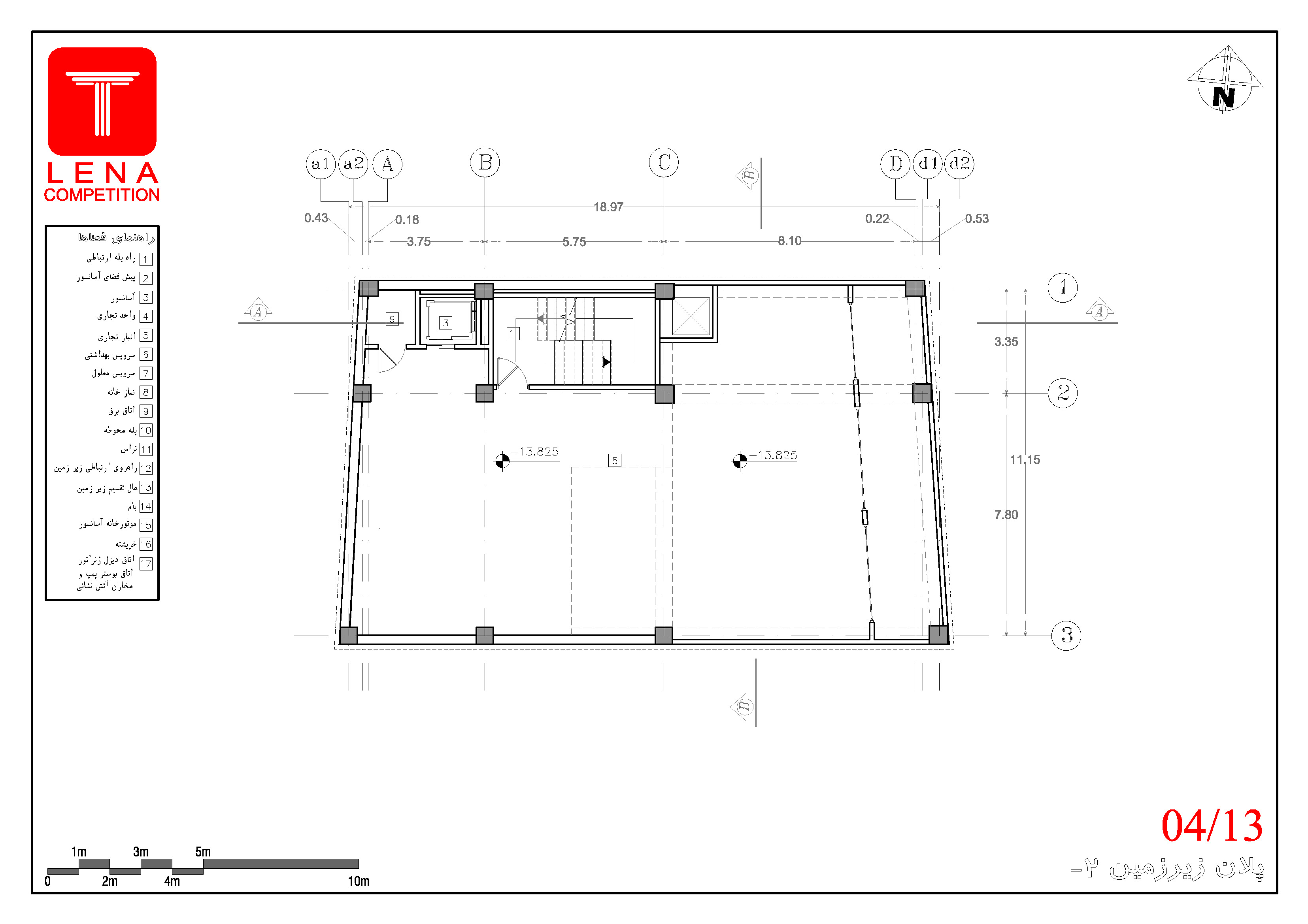
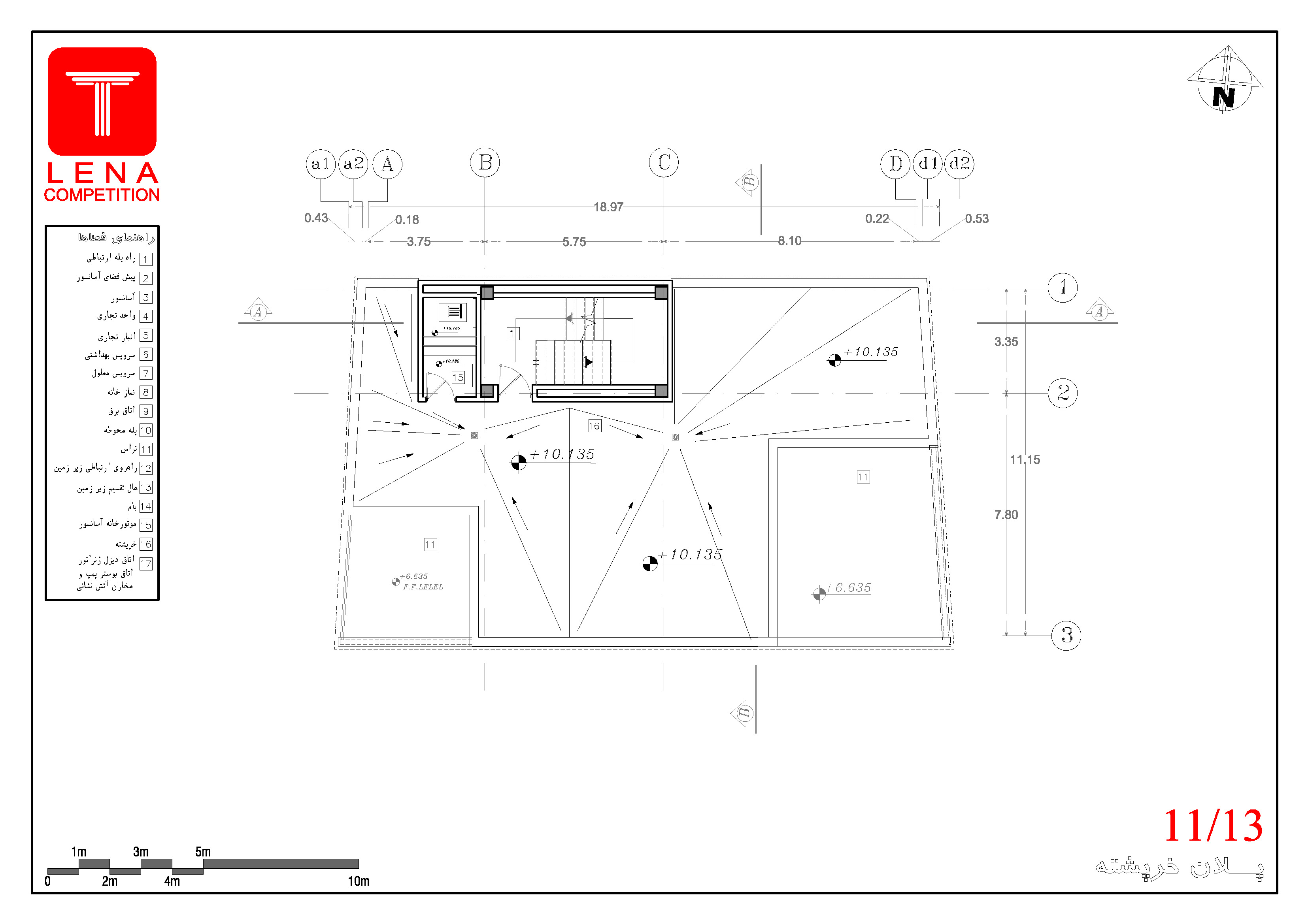
• ساختمان شامل همکف و یک طبقه روی همکف و سه طبقه زیرزمین می‌باشد.

 

طراحی نما
• طراحی نمای شرقی و غربی 
• طراحی نما به سبک مدرن است.
• در طراحی نما از متریال شیشه، سنگ و آجر استفاده شود.
• انتخاب رنگ و درصد استفاده از مصالح در سطح نما به سلیقه طراح است.
• طراحی پنجره‌ها به سلیقه طراح است. 
• در طراحی تراس‌های شرقی و غربی از فضای سبز استفاده شود.
• در طراحی نما توجه به تاثیر شرایط جوی مختلف اهمیت دارد.

امتیازات این مسابقه

انصراف از مسابقه شرکت در مسابقه فینالیست تقدیر شونده نفر سوم نفر دوم نفر اول
-20 10 50 50 100 300 600

توجه!

طراحان عزیز برای سهولت بررسی طرح‌های ارسالی، الزاما موارد زیر را در فایل اتوکد لحاظ فرمایید.
• Polyline مساحت کل طبقات و واحدهای مسکونی بر روی خود نقشه و در لایه جداگانه ترسیم شود.
• مساحت واحدهای مسکونی داخل واحدها درج شود.
• کادر دور پارکینگ‌ها ترسیم شود.
• پارکینگ‌ها اندازه‌گذاری شود.
• فایل اتوکد در محیط Model ارسال شود (در محیط Layout نباشد)
• واحد اتوکد بر روی Meters تنظیم شود.
• تمام فضاها نام‌گذاری شود.
• پارکینگ‌ها و انبار‌ها شماره‌گذاری شود.
• کدهای ارتفاعی در تمامی پلان‌ها، نماها و مقاطع درج شود.
• از تغییر اندازه بلوک‌های مبلمان اتوکد در پلان‌ها به شدت پرهیز شود.
• فایل اتوکد حتما با Save as ۲۰۱۰  آپلود شود.


لطفا موارد زیر را حتما مطالعه فرمایید
• مطابق قوانین و مقررات طرح تو طرح تمامی مبالغ پرداختی به شرکت کنندگان مسابقه (جایزه مسابقه، هزینه شرکت در مسابقه lifecost و ...) بعد از تایید اصلاحات انجام شده توسط کارفرما و پس از کسر هفت درصد از آن به‌ عنوان هزینه‌ی برگزاری به منتخبین پرداخت خواهد شد.
• زمان تقریبی روند ادامه مسابقه پس از آنکه معماران طرح‌‌های خود را ارسال کردند  5 روز کاری جهت بررسی تکمیل بودن فایل‌ها توسط طرح تو طرح و ارسال طرح‌ها برای کارفرما، منتور و مشاور زمان خواهد برد. همچنین  مدت زمان بررسی طرح‌ها  توسط این افراد دو هفته کاری خواهد بود که پس از اتمام این مدت فینالیست‌ها معرفی شده و جلسه دفاعیه برگزار خواهد شد. در نهایت اعلام نفرات برتر مسابقه، یک هفته کاری پس از جلسه دفاعیه صورت می‌گیرد.
• در تمام مدت برگزاری مسابقه شرکت‌کنندگان اجازه برقراری ارتباط با کارفرما و منتورهای مسابقه را چه از طریق تماس تلفنی، چه مراجعه حضوری و چه ارتباط از طریق شبکه‌های مجازی ندارند و در صورت اطلاع از این موضوع طرح تو طرح این فرد را از مسابقه حذف خواهد کرد.
• شرکت‌کنندگان مسابقه تا زمان اعلام نفرات برتر مسابقه اجازه انتشار طرح خود را در شبکه‌های اجتماعی ندارند و در صورت اطلاع از این موضوع از روند مسابقه حذف خواهید شد.
• فایل اتوکد و ویدیوها و اطلاعات تکمیلی پروژه در قسمت فایل‌های راهنما برای دانلود موجود است.
• در صورت داشتن هرگونه سوال در مورد روند مسابقات ما و یا نحوه پرداخت جوایز به قسمت سوالات متداول مراجعه فرمایید و یا از طریق تیکت با تیم پشتیبانی طرح تو طرح، با ما در ارتباط باشید.
• هرگونه لوگو و اسم خود در طرح‌های ارسالی ممنوع می‌باشد و در صورت مشاهده باعث حذف طرح‌ شما از مسابقه می‌گردد.
• در صورتی‌که هر طراح یا دفتر طراحی، در مسابقه شرکت کند و پس از اتمام مسابقه، فایل‌های ارسالی خود را تکمیل ننماید، از روند مسابقه حذف خواهد شد.
• لطفا فایل‌های خود را تا جایی که مقدور هست با گوشی آپلود نکنید.
• محدودیتی در ارائه چند طرح توسط یک گروه یا شرکت‌کننده نخواهد بود اما لازم است به ازای ارسال هر طرح ثبت‌نام مجدد و پرداخت مجزا انجام شود و یا ارسال به صورت تیم صورت پذیرد که در این صورت نیز نیاز به افزودن تیم در پنل کاربری و پرداخت ورودی مسابقه می‌باشد. (برای اطلاعات بیشتر در مورد تیم کلیک نمایید.)
• در طول مسابقه حتما پرسش و پاسخ‌ها را مطالعه کنید و قبل از ثبت سوال خود، سوالات دیگر طراحان را  که به آنها پاسخ داده شده مطالعه فرمایید.
• اگر مطلبی به مسابقه اضافه شود، در طول مسابقه با رنگ آبی به همراه تاریخ در قسمت توضیحات تکمیلی نوشته خواهد شد، لطفا در طول مسابقه اطلاعات پایه را مطالعه کنید.
• در طول مسابقه حتما وارد بخش اخبار مسابقه شوید و از آخرین اطلاعات مربوطه (حتی پس از پایان مسابقه) مطلع شوید.


رندر شما باید خصوصیات زیر را داشته باشند
• ابعاد عکس عرض حداکثر تا ۲۵۰۰ پیکسل
• ابعاد عکس طول حداکثر  تا ۲۵۰۰ پیکسل
• رزولوشن حداکثر ۱۵۰
• فرمت عکس شما JPG
• حجم عکس شما ماکسیمم ۳ مگابایت
• اتوکد با ورژن ۲۰۱۰ به پایین آپلود شود.

پیشنهاد و بازخورد