طراحی نما پروژه نیکان

طراحی نما پروژه نیکان

شروع مسابقه : 05 اسفند 1402

پایان ثبت‌نام : پایان یافته

پایان مسابقه : 29 فروردین 1403

مبلغ ورودی : 240,000 تومان

1,600,000,000 ریال جایزه نقدی
تعداد شرکت کنندگان: 53 نفر

اطلاعات پایه

  • نوع مسابقه:

    طراحی تجاری/ اداری

  • مبلغ جایزه:

    1,600,000,000 ریال

  • متراژ زیربنا:

    11378 متر مربع

  • وضعیت مسابقه:

    پایان یافته

  • موقعیت:

    تهران- سه راه افسریه

  • نام شهر:

    تهران

  • مساحت زمین:

    1000 متر مربع

نمودار زمانی مسابقه

  1. شروع

    05_اسفند

  2. پایان ثبت‌نام

    18_فروردین

  3. پایان مسابقه

    29_فروردین

  4. اعلام نتایج

    16_خرداد

مواردی که شما باید ارسال کنید

  • تصاویر سه بعدی دو وجه نما شمال و جنوب هر یک از بلوک‌ها با فرمت JPG
  • تصاویر سه بعدی نورپردازی دو وجه نما شمال وجنوب هر یک از بلوک‌ها با فرمت JPG
  • یک آلبوم از نما‌ها،معرفی متریال پیشنهادی، لیست قیمت و توجیه طرح با فرمت PDF

توضیحات تکمیلی

موارد طراحی
• طراحی نما دو وجه شمالی و جنوبی هر دو بلوک (چهار نما)

جایزه مسابقه 
بنا به درخواست کارفرما در این مسابقه مبلغ 160 میلیون تومان برای 3 شرکت‌کننده به شرح ذیل در نظر گرفته شده است.
• نفر اول: مبلغ 100 میلیون تومان: مبلغ 20 میلیون تومان که این عدد پس ارائه آلبوم نما و اخذ تاییدیه کمیته نما پرداخت خواهد شد + 80 میلیون تومان جایزه طراحی که پس از تایید اصلاحات نهایی توسط کارفرما پرداخت خواهد شد.
• نفر دوم: مبلغ 45 میلیون تومان: که پس از تایید اصلاحات نهایی توسط کارفرما پرداخت خواهد شد.
• نفر سوم: مبلغ 15 میلیون تومان: که پس از تایید اصلاحات نهایی توسط کارفرما پرداخت خواهد شد.
• مبلع 
• تمامی مبالغ (جوایز نفر اول تا سوم) پس از کسر هفت درصد از آن به‌ عنوان هزینه‌ی برگزاری به شرکت کنندگان پرداخت خواهد شد.
• مبلغ بیست میلیون تومان از جایزه نفر اول مسابقه بابت تهیه آلبوم نما و اخذ تاییدیه کمیته نماست , درصورتیکه که نفر اول موفق به اخذ تاییدیه کمیته نما نشود، این عدد از جایزه نفر اول کسر شده و پس از اخذ تایید کمیته نما توسط نفر دوم به ایشان پرداخت خواهد شد.

سبک طراحی
• مدرن

نوع سازه
• بتنی


توضیحات کلی پروژه
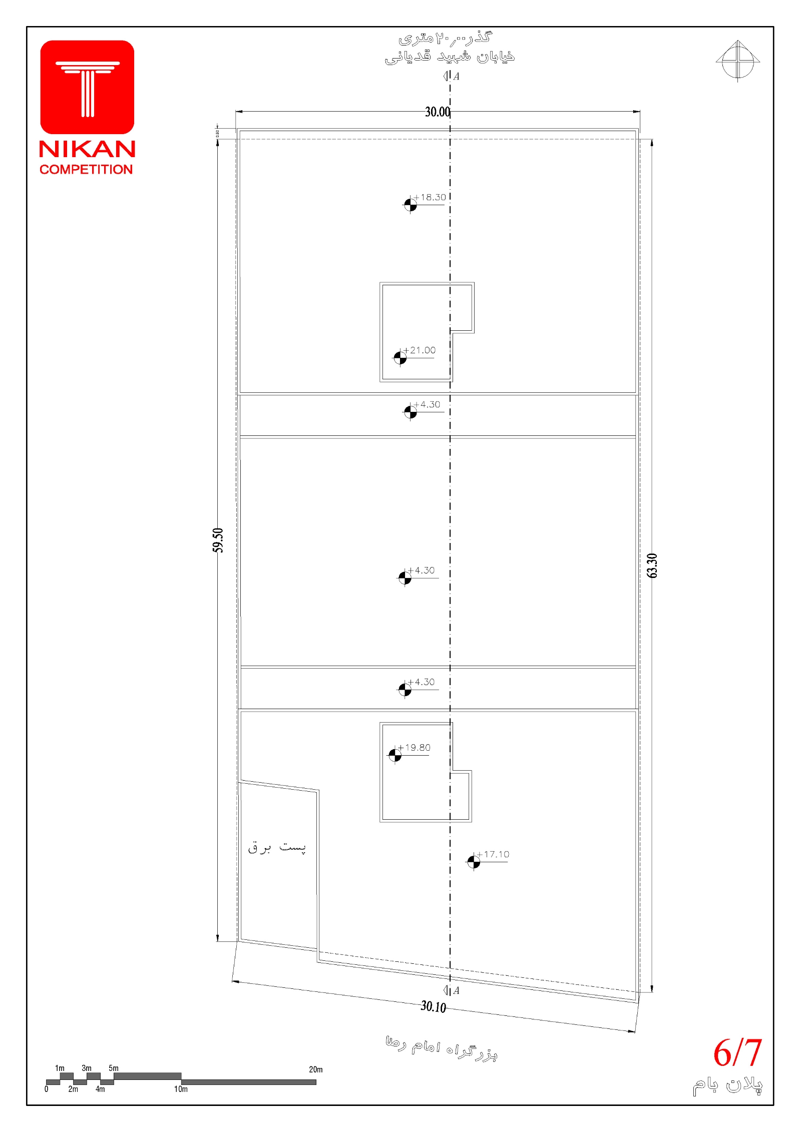
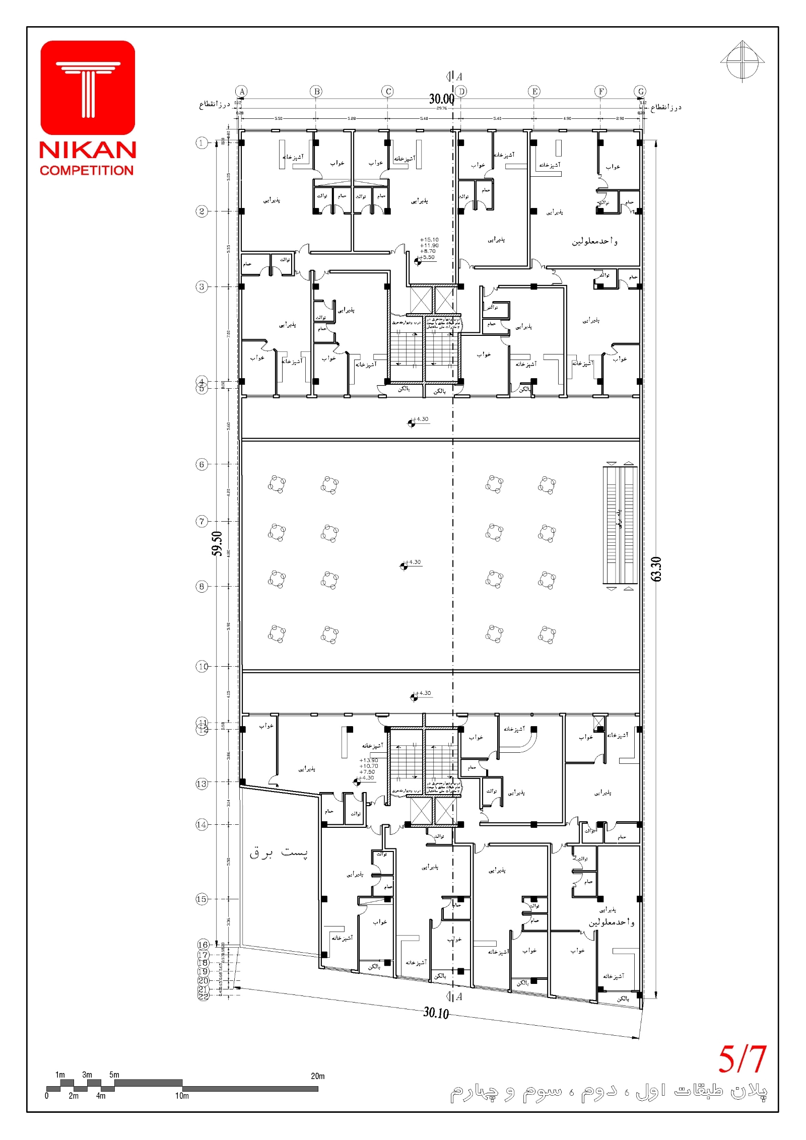
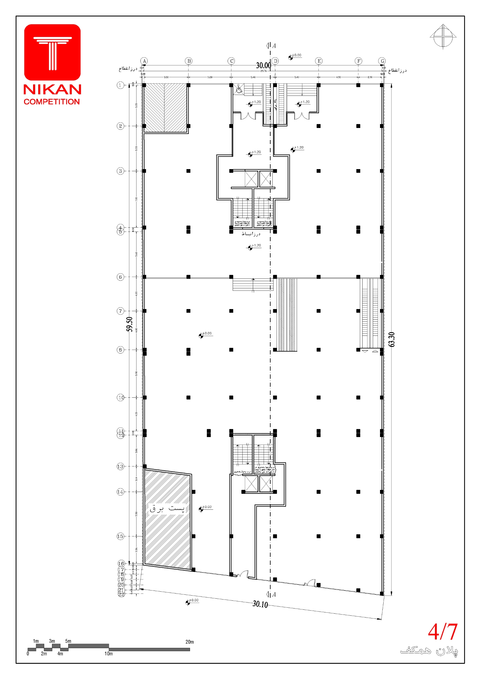
• ساختمان اداری تجاری نیکان در زمینی به مساحت 1840 مترمربع شامل: طبقه همکف با کاربری تجاری، 4 طبقه اداری روی همکف و ۳ طبقه زیرزمین می‌باشد. 
• در طراحی، به ضوابط کمیته نما منطقه 15 دقت شود.
• طبقه همکف به صورت یک واحد یکپارچه با کاربری تجاری است.
• وضع موجود پروژه در حال ساخت و تا مرحله سفت کاری پیشرفت داشته است
• نمای ساخته شده تخریب و براساس طرح منتخب نمای جدید اجرا خواهد شد.
• امکان تغییر در پلان وجود ندارد.
• رعایت ضوابط شهرداری و ضوابط آتش‌نشانی الزامی است.
• توجه به اجرایی بودن طرح ارائه شده حائز اهمیت است.
• باتوجه به موقعیت قرارگیری پروژه طراحی باید به صورت مدرن و اقتصادی باشد.


طراحی نما
• متریال مورد استفاده در طبقه تجاری، سنگ و شیشه و در طبقات اداری، سنگ مصنوعی است.
• درصد استفاده و انتخاب رنگ مصالح به سلیقه طراح می‌باشد.
• طراحی پنجره‌ها در نمای طبقات اداری به صورت قدی و با حداقل OKB و با رعایت مقررات ملی ساختمان 
• نورپردازی در نما با قابلیت تعمیر و نگهداری بهینه در حین بهره برداری باشد
• استفاده از المان‌های خاص در نما به سلیقه طراح مجاز می‌باشد.

امتیازات این مسابقه

انصراف از مسابقه شرکت در مسابقه فینالیست تقدیر شونده نفر سوم نفر دوم نفر اول
-20 10 50 50 100 300 600

توجه!

طراحان عزیز اگر در مسابقه نیاز به ارسال فایل اتوکد باشد، برای سهولت بررسی طرح‌های ارسالی، رعایت موارد زیر ضروری است.
• Polyline مساحت کل طبقات و واحدهای مسکونی بر روی خود نقشه و در لایه جداگانه ترسیم شود.
• مساحت واحدهای مسکونی داخل واحدها درج شود.
• کادر دور پارکینگ‌ها ترسیم شود.
• پارکینگ‌ها اندازه‌گذاری شود.
• فایل اتوکد در محیط Model ارسال شود (در محیط Layout نباشد)
• واحد اتوکد بر روی Meters تنظیم شود.
• تمام فضاها نام‌گذاری شود.
• پارکینگ‌ها و انبار‌ها شماره‌گذاری شود.
• کدهای ارتفاعی در تمامی پلان‌ها، نماها و مقاطع درج شود.
• از تغییر اندازه بلوک‌های مبلمان اتوکد در پلان‌ها به شدت پرهیز شود.
• فایل اتوکد حتما با Save as ۲۰۱۰  آپلود شود.

لطفا موارد زیر را حتما مطالعه فرمایید
• مطابق قوانین و مقررات طرح تو طرح تمامی مبالغ پرداختی به شرکت کنندگان مسابقه (جایزه مسابقه، هزینه شرکت در مسابقه lifecost و ...) بعد از تایید اصلاحات انجام شده توسط کارفرما و پس از کسر هفت درصد از آن به‌ عنوان هزینه‌ی برگزاری به منتخبین پرداخت خواهد شد.
•  نوتیفیکشین و اعلانات و اخبار مسابقه تنها برای شرکت کنندگان مسابقه ارسال می‌شود بنابراین برای اینکه از تغییرات و تصمیمات گرفته شده در طی مسابقه اطلاع پیدا کنید حتما ثبت نام خود را در اسرع وقت انجام دهید.
• زمان تقریبی روند ادامه مسابقه پس از آنکه معماران طرح‌‌های خود را ارسال کردند  ۵ روز کاری جهت بررسی تکمیل بودن فایل‌ها توسط طرح تو طرح و ارسال طرح‌ها برای کارفرما، منتور و مشاور زمان خواهد برد. همچنین مدت زمان بررسی طرح‌ها  توسط این افراد دو هفته کاری خواهد بود که پس از اتمام این مدت فینالیست‌ها معرفی شده و جلسه دفاعیه برگزار خواهد شد. در نهایت اعلام نفرات برتر مسابقه، یک هفته کاری پس از جلسه دفاعیه صورت می‌گیرد.
• در تمام مدت برگزاری مسابقه شرکت‌کنندگان اجازه برقراری ارتباط با کارفرما و منتورهای مسابقه را چه از طریق تماس تلفنی، چه مراجعه حضوری و چه ارتباط از طریق شبکه‌های مجازی ندارند و در صورت اطلاع از این موضوع طرح تو طرح این فرد را از مسابقه حذف خواهد کرد.
• شرکت‌کنندگان مسابقه تا زمان اعلام نفرات برتر مسابقه اجازه انتشار طرح خود را در شبکه‌های اجتماعی ندارند و در صورت اطلاع از این موضوع از روند مسابقه حذف خواهید شد.
• فایل اتوکد و ویدیوها و اطلاعات تکمیلی پروژه در قسمت فایل‌های راهنما برای دانلود موجود است.
• در صورت داشتن هرگونه سوال در مورد روند مسابقات ما و یا نحوه پرداخت جوایز به قسمت سوالات متداول مراجعه فرمایید و یا از طریق تیکت با تیم پشتیبانی طرح تو طرح، با ما در ارتباط باشید.
• هرگونه لوگو و اسم خود در طرح‌های ارسالی ممنوع می‌باشد و در صورت مشاهده باعث حذف طرح‌ شما از مسابقه می‌گردد.
• در صورتی‌که هر طراح یا دفتر طراحی، در مسابقه شرکت کند و پس از اتمام مسابقه، فایل‌های ارسالی خود را تکمیل ننماید، از روند مسابقه حذف خواهد شد.
• لطفا فایل‌های خود را تا جایی که مقدور هست با گوشی آپلود نکنید.
• محدودیتی در ارائه چند طرح توسط یک گروه یا شرکت‌کننده نخواهد بود اما لازم است به ازای ارسال هر طرح ثبت‌نام مجدد و پرداخت مجزا انجام شود و یا ارسال به صورت تیم صورت پذیرد که در این صورت نیز نیاز به افزودن تیم در پنل کاربری و پرداخت ورودی مسابقه می‌باشد. (برای اطلاعات بیشتر در مورد تیم کلیک نمایید.)
• در طول مسابقه حتما پرسش و پاسخ‌ها را مطالعه کنید و قبل از ثبت سوال خود، سوالات دیگر طراحان را  که به آنها پاسخ داده شده مطالعه فرمایید.
• اگر مطلبی به مسابقه اضافه شود، در طول مسابقه با رنگ آبی به همراه تاریخ در قسمت توضیحات تکمیلی نوشته خواهد شد، لطفا در طول مسابقه اطلاعات پایه را مطالعه کنید.
• در طول مسابقه حتما وارد بخش اخبار مسابقه شوید و از آخرین اطلاعات مربوطه (حتی پس از پایان مسابقه) مطلع شوید.

رندر شما باید خصوصیات زیر را داشته باشند
• ابعاد JPG عرض حداکثر تا ۲۵۰۰ پیکسل
• ابعاد JPG طول حداکثر  تا ۲۵۰۰ پیکسل
• رزولوشن JPG حداکثر ۱۵۰
• فرمت عکس شما JPG
• حجم JPG شما ماکسیمم ۳ مگابایت

پیشنهاد و بازخورد