طراحی نما ، پلان پارکینگ و پلان طبقات اداری پطروس

طراحی نما ، پلان پارکینگ و پلان طبقات اداری پطروس

شروع مسابقه : 11 تیر 1404

پایان ثبت‌نام : پایان یافته

پایان مسابقه : 12 مرداد 1404

مبلغ ورودی : 300,000 تومان

2,000,000,000 ریال جایزه نقدی
تعداد شرکت کنندگان: 53 نفر

اطلاعات پایه

  • نوع مسابقه:

    طراحی تجاری/ اداری

  • مبلغ جایزه:

    2,000,000,000 ریال

  • متراژ زیربنا:

    3225 متر مربع

  • وضعیت مسابقه:

    پایان یافته

  • موقعیت:

    گلستان-گرگان

  • نام شهر:

    گرگان

  • مساحت زمین:

    495 متر مربع

نمودار زمانی مسابقه

  1. شروع

    11_تیر

  2. پایان ثبت‌نام

    01_مرداد

  3. پایان مسابقه

    12_مرداد

اطلاعات بیشتر

دکتر ایوب علی‌نیا

منتور

دکتر ایوب علی‌نیا

  • مدرس گروه معماری در آتلیه مسکن پردیس هنرهای زیبا، دانشگاه تهران
  • مشاور و طراح ارشد معماری و معماری‌داخلی گروه هتل‌های هما کشور
  • بازسازی و طراحی داخلی هتل‌های هما 1 و 2 مشهد
  • دریافت لوح تقدیر از سازمان یونسکو با عنوان گروه برتر در سومین دوره مسابقات ملی معماری (یادواره استاد پیرنیا: طراحی و اجرای سنگ فرش پیشخوان باغ دولت آباد یزد)
  • رتبه سوم یازدهمین دوره مسابقه مفهومی بنیاد میرمیران، با عنوان «معماری پاسخگو»

توضیحات تکمیلی

عکس از نمای شمالی و جنوبی سایت در قسمت فایل ها بارگذاری شد 01-05-1404

طبق گفته کارفرما حداقل 24 واحد پارکینگ مورد نیاز است 31-04-1404 

فایل ضوابط پارکینگ به مسابقه اضافه شد  21-04-1404

موارد ارسالی توسط طراحان 
از نوشتن نام طراح بر وی آثار جدا خودداری کنید، طرح های دارای نام از روند مسابقه حذف می گردند.
رندر از نمای شمالی با فرمت JPG
رندر از نمای جنوبی با فرمت JPG
رندر از نورپردازی نمای شمالی با فرمت JPG
رندر از نورپردازی نمای جنوبی با فرمت JPG
• پلان مبلمان و اندازه گذاری زیزرمین 2- (چیدمان پارکینگ) با فرمت JPG
• پلان مبلمان و اندازه گذاری زیزرمین 1- (چیدمان پارکینگ) با فرمت JPG
• پلان مبلمان طبقات اول تا سوم اداری (2 واحدی) با فرمت JPG
• پلان اندازه گذاری طبقات اول تا سوم اداری (2 واحدی) با فرمت JPG
• پلان مبلمان طبقات چهارم تا ششم اداری (3 واحدی) با فرمت JPG
• پلان اندازه گذاری طبقات چهارم تا ششم اداری (3 واحدی) با فرمت JPG
• جدول متریال برای نما‌‌‌‌‌‌‌‎‌‎‌‌
• توجیه طرح به لحاظ کانسپت و مفهوم و دلایل طراحی (اختیاری) با فرمت JPG
• انیمیشن (اختیاری) با فرمت MP4

فایل DWG شامل تمام پلان ها (فایل اتوکد الزاما با ورژن 2010یا پایین تر ذخیره و ارسال شود.)
یک عدد فایل شامل تمام پلان ها، رندرهای نمای شمالی، رندرهای نمای جنوبی، جدول متریال و توجیه طرح (تمامی مدارک ) جهت ارائه طرح با فرمت pdf

توجه داشته باشید ساعت اتمام ثبت نام و ارسال طرح ها برای تمامی مسابقات تا ساعت ۱۴ تاریخ اعلام شده می‌باشد.

توضیحات مهم پروژه 
 وضعیت کنونی ساختمان در مرحله اتمام اجرای اسکلت بتنی
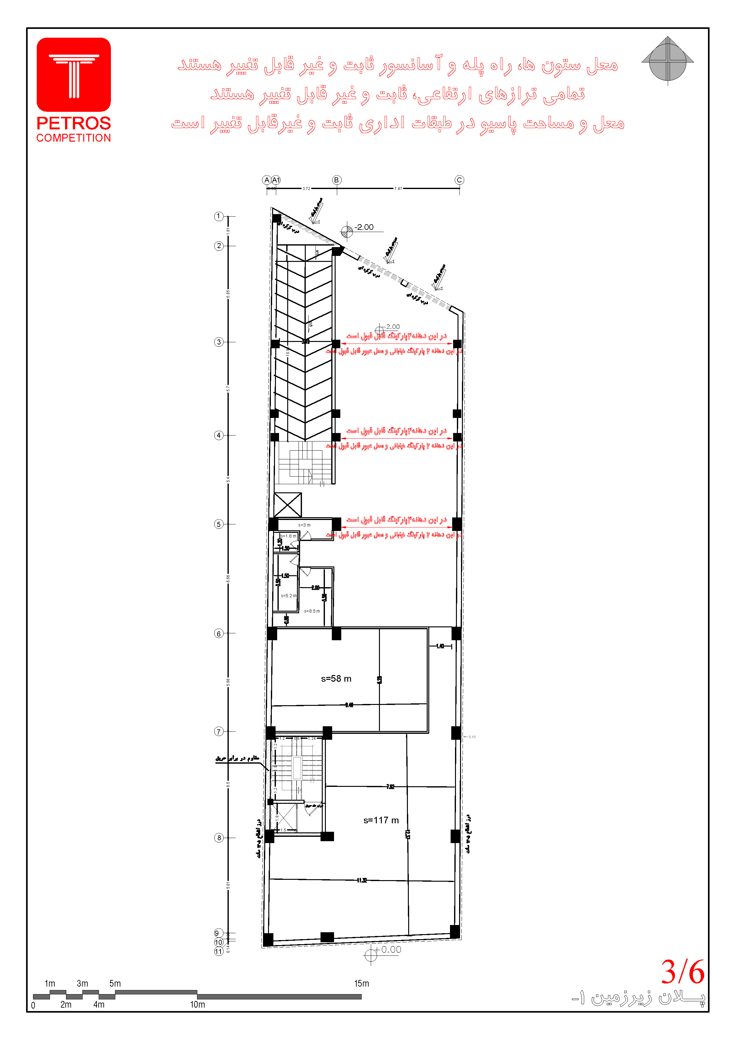
 • محل ستون ها، راه پله، آسانسور و رمپ ها ثابت و غیر قابل تغییر هستند.
 • محل و مساحت پاسیو در طبقات اداری، ثابت و غیر قابل تغییر است.
 • تمامی تراز های ارتفاعی، ثابت و غیر قابل تغییر هستند.

• تمامی طرح ها اجرایی و با رعایت کامل ضوابط شهرسازی و آتش نشانی باشد.


فایل اتوکد پروژه در فایل های راهنما قابل دانلود است.

موارد طراحی
• طراحی نمای شمالی 
• طراحی نمای جنوبی
• طراحی پلان طبقات اول تا سوم (اداری) 2 واحدی
• طراحی پلان طبقات چهارم تا ششم (اداری) 3 واحدی

جایزه مسابقه 
• مبلغ کل مسابقه : 2.000.000.000 ریال ( به حروف دو میلیارد ریال) می باشد.
•  نفر اول : مبلغ 1.400.000.000 ریال ( به حروف یک میلیارد و چهارصد میلیون ریال ) : پس از تایید اصلاحات نهایی توسط کارفرما پرداخت خواهد شد.
• نفر دوم : مبلغ 600.000.000 ریال ( به حروف ششصد میلیون ریال )  : پس از تایید اصلاحات نهایی توسط کارفرما پرداخت خواهد شد.

توضیحات کلی پروژه
ساختمان تجاری _ اداری با متراژ زمین 500 مترمربع  و زیربنای تقریبی 3450 مترمربع می‌باشد.

سبک طراحی
•مدرن

نوع سازه
• اسکلت بتنی

نوع سازه سقف
• وافل 

سیستم سرمایش و گرمایش
• اسپلیت و پکیج

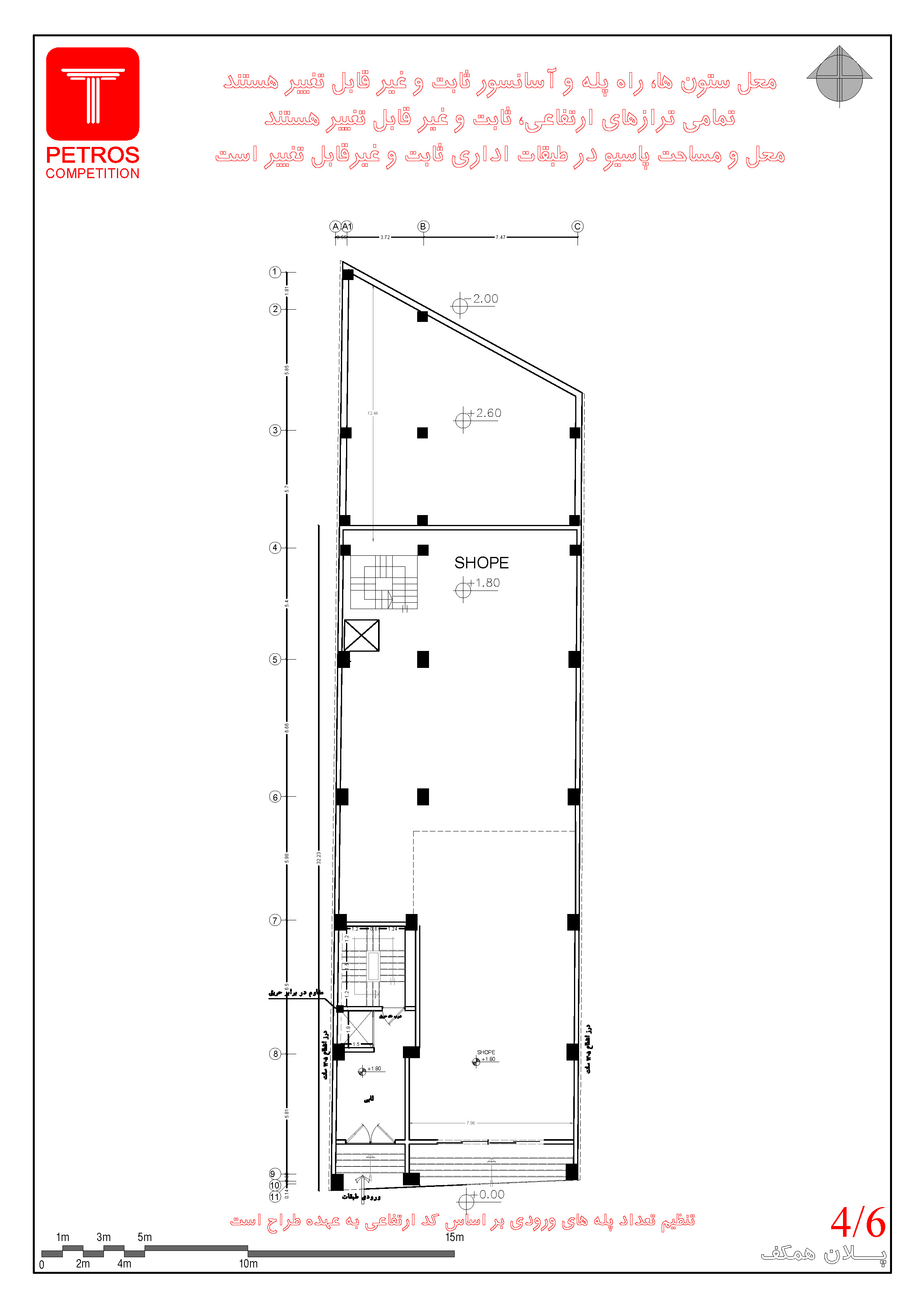
کد مجاز همکف و کد صفر‌– صفر در سایت پلان
• کد صفر طبق فایل اتوکد
• کد ارتفاعی کف طبقه همکف مطابق فایل اتوکد


ارتفاع مجاز طبقات و کدهای ارتفاعی 
• کدهای ارتفاعی تمامی طبقات مطابق کدهای ارتفاعی درج شده در پلان ها

 

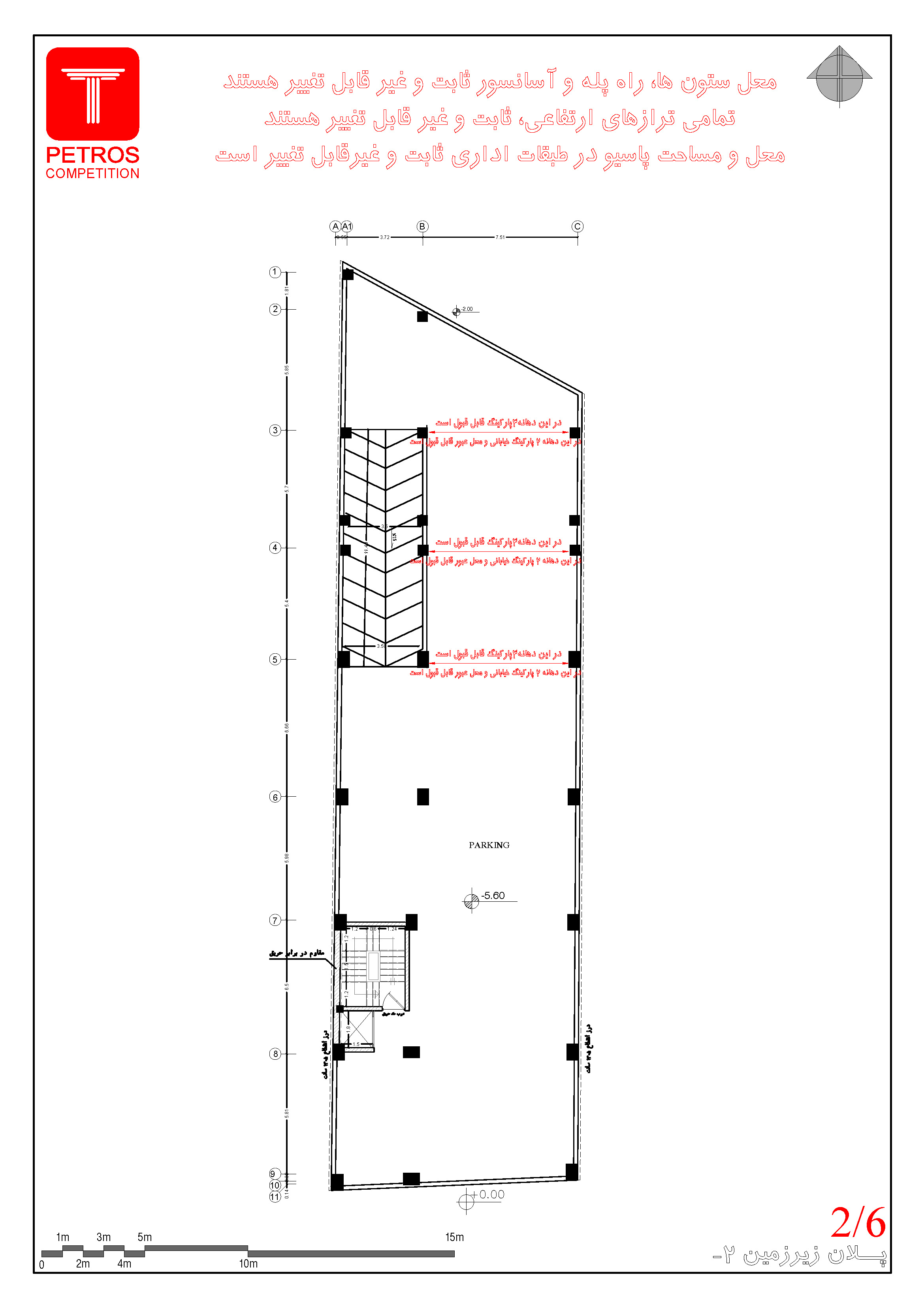
طراحی پلان طبقات زیرزمین 1- و 2- (طراحی پارکینگ)
• تامین حداکثر تعداد واحد پارکینگ در طبقات زیرزمین1- و زیرزمین 2- در محل های مشخص شده (انبارها و فضاهای جانمایی شده در زیرزمین 1- ثابت و غیر قابل تغییر هستند)
• ضوابط پارکینگ در قسمت فایل‌های راهنما مطالعه شود.

 

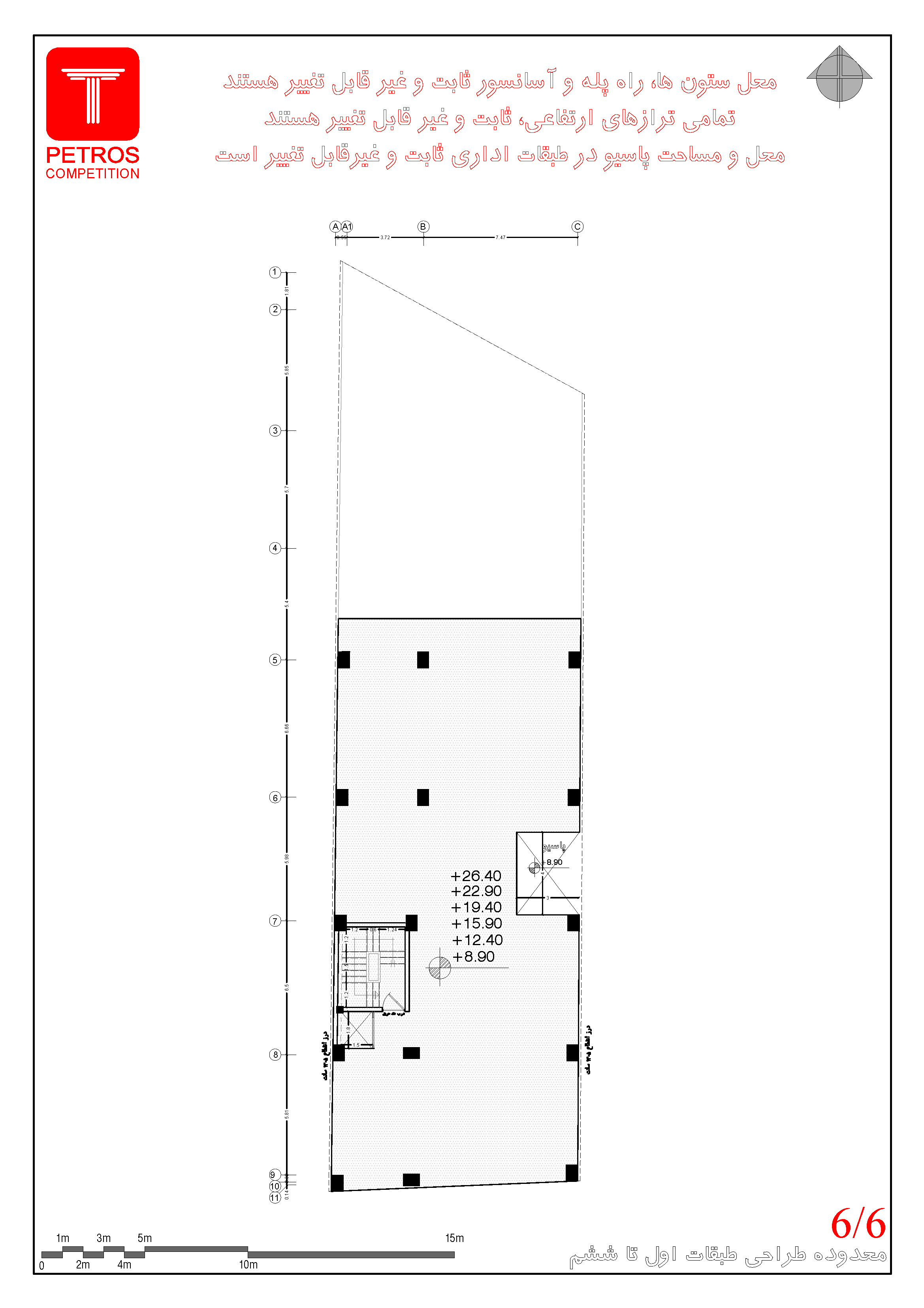
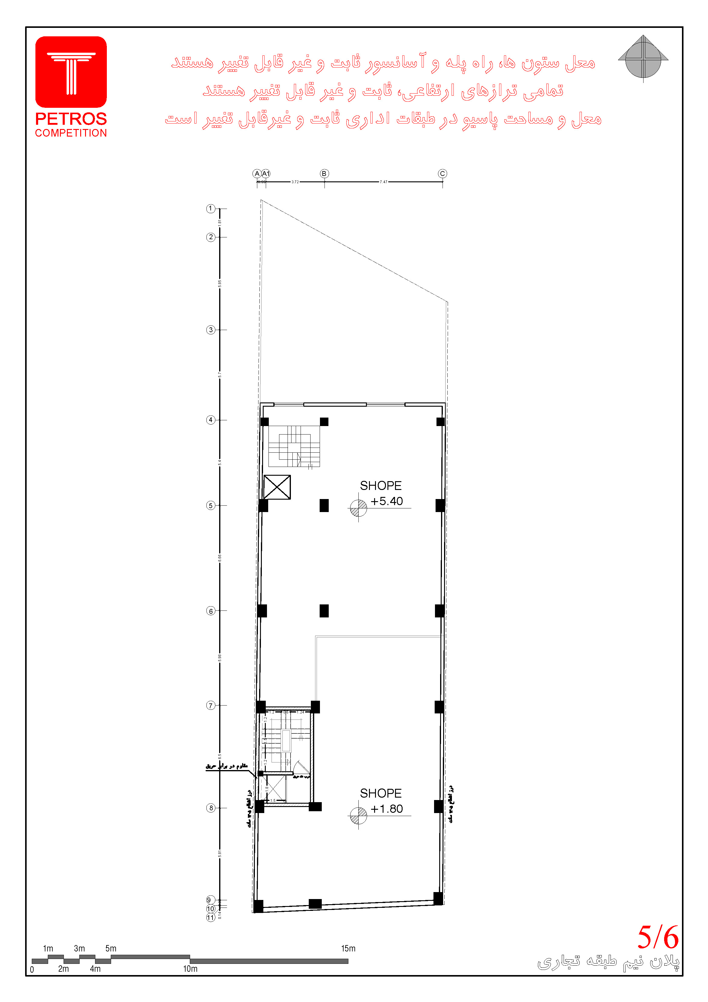
طراحی پلان طبقات اول تا ششم (اداری)
• محل ستون ها، راه پله، آسانسور و رمپ ها ثابت و غیر قابل تغییر هستند.
• محل و مساحت پاسیو در طبقات اداری، ثابت و غیر قابل تغییر است.
• طبقات اول تا سوم 2 واحد اداری 3 اتاقه
• طبقات چهارم تا ششم  3 واحد اداری 2 اتاقه
• واحدها به صورت فلت با تعیین محل سرویس و آشپزخانه با رعایت همپوشانی محل سرویس ها و داکت ها در طبقات 
• طراحی و جداسازی اتاق ها با پارتیشن سبک انجام شود.
• در واحد های اداری اتاقی کوچک تحت عنوان اتاق شبکه در نظر گرفته شود. 
• مساحت هر واحد اداری در همان واحد درج شود و مجموع مساحت اداری هر طبقه در زیر پلان هر طبقه درج شود.


طراحی نما
طراحی نمای شمالی و جنوبی 
• سبک طراحی نما مدرن و در سطح اکونومی
حجم سازی کاذب در نما به صورت موضعی تا 30 سانتی متر مجاز است .
• متریال های مورد استفاده از متریال های به روز و موجود دربازار در سطح اکونومی (شیشه،‌ سنگ،‌ آجر، سیمان و ...) به پیشنهاد طراح
استفاده از پنجره های بزرگ و قدی
• نورپردازی نما به صورت ملایم با قابلیت دسترسی و نگهداری




توجه داشته باشید ساعت اتمام ثبت نام و ارسال طرح ها برای تمامی مسابقات تا ساعت ۱۴ تاریخ اعلام شده می‌باشد.

 

 

امتیازات این مسابقه

انصراف از مسابقه شرکت در مسابقه فینالیست تقدیر شونده نفر سوم نفر دوم نفر اول
-20 10 50 50 100 300 600

توجه!

هرگونه ارتباط مستقیم توسط شرکت کنندگان مسابقه با کارفرما و منتور، منجر به حذف شرکت کننده از مسابقه می‌گردد.

توجه داشته باشید ساعت اتمام ثبت نام و ارسال طرح ها برای تمامی مسابقات تا ساعت ۱۴ تاریخ اعلام شده می‌باشد.

طراحان عزیز اگر در مسابقه نیاز به ارسال فایل اتوکد باشد، برای سهولت بررسی طرح‌های ارسالی، رعایت موارد زیر ضروری است.
• Polyline مساحت کل طبقات و واحدهای مسکونی بر روی خود نقشه و در لایه جداگانه ترسیم شود.
• مساحت واحدهای مسکونی داخل واحدها درج شود.
• کادر دور پارکینگ‌ها ترسیم شود.
• پارکینگ‌ها اندازه‌گذاری شود.
• فایل اتوکد در محیط Model ارسال شود (در محیط Layout نباشد)
• واحد اتوکد بر روی Meters تنظیم شود.
• تمام فضاها نام‌گذاری شود.
• پارکینگ‌ها و انبار‌ها شماره‌گذاری شود.
• کدهای ارتفاعی در تمامی پلان‌ها، نماها و مقاطع درج شود.
• از تغییر اندازه بلوک‌های مبلمان اتوکد در پلان‌ها به شدت پرهیز شود.
• فایل اتوکد حتما با Save as ۲۰۱۰  آپلود شود.

لطفا موارد زیر را حتما مطالعه فرمایید
• مطابق قوانین و مقررات طرح تو طرح تمامی مبالغ پرداختی به شرکت کنندگان مسابقه (جایزه مسابقه، هزینه شرکت در مسابقه lifecost و ...) بعد از تایید اصلاحات انجام شده توسط کارفرما و پس از کسر هفت درصد برای مسابقه عمومی و ده درصد برای مسابقات محدود از آن به‌ عنوان هزینه‌ی برگزاری به منتخبین پرداخت خواهد شد.
• نوتیفیکشین و اعلانات و اخبار مسابقه تنها برای شرکت کنندگان مسابقه ارسال می‌شود بنابراین برای اینکه از تغییرات و تصمیمات گرفته شده در طی مسابقه اطلاع پیدا کنید حتما ثبت نام خود را در اسرع وقت انجام دهید.
• زمان تقریبی روند ادامه مسابقه پس از آنکه معماران طرح‌‌های خود را ارسال کردند ۵ روز کاری جهت بررسی تکمیل بودن فایل‌ها توسط طرح تو طرح و ارسال طرح‌ها برای کارفرما، منتور و مشاور زمان خواهد برد. همچنین  مدت زمان بررسی طرح‌ها  توسط این افراد دو هفته کاری خواهد بود که پس از اتمام این مدت فینالیست‌ها معرفی شده و جلسه دفاعیه برگزار خواهد شد. در نهایت اعلام نفرات برتر مسابقه، یک هفته کاری پس از جلسه دفاعیه صورت می‌گیرد، توجه داشته باشید زمان پرداخت جوایز تا ۶۰ روز پس از تایید کتبی کارفرما توسط طرح تو طرح می‌باشد.
• در تمام مدت برگزاری مسابقه شرکت‌کنندگان اجازه برقراری ارتباط با کارفرما و منتورهای مسابقه را چه از طریق تماس تلفنی، چه مراجعه حضوری و چه ارتباط از طریق شبکه‌های مجازی ندارند و در صورت اطلاع از این موضوع طرح تو طرح این فرد را از مسابقه حذف خواهد کرد.
• شرکت‌کنندگان مسابقه تا زمان اعلام نفرات برتر مسابقه اجازه انتشار طرح خود را در شبکه‌های اجتماعی ندارند و در صورت اطلاع از این موضوع از روند مسابقه حذف خواهید شد.
• فایل اتوکد و ویدیوها و اطلاعات تکمیلی پروژه در قسمت فایل‌های راهنما برای دانلود موجود است.
• در صورت داشتن هرگونه سوال در مورد روند مسابقات ما و یا نحوه پرداخت جوایز به قسمت سوالات متداول مراجعه فرمایید و یا از طریق تیکت با تیم پشتیبانی طرح تو طرح، با ما در ارتباط باشید.
• هرگونه لوگو و اسم خود در طرح‌های ارسالی ممنوع می‌باشد و در صورت مشاهده باعث حذف طرح‌ شما از مسابقه می‌گردد.
• در صورتی‌که هر طراح یا دفتر طراحی، در مسابقه شرکت کند و پس از اتمام مسابقه، فایل‌های ارسالی خود را تکمیل ننماید، از روند مسابقه حذف خواهد شد.
• لطفا فایل‌های خود را تا جایی که مقدور هست با گوشی آپلود نکنید.
• محدودیتی در ارائه چند طرح توسط یک گروه یا شرکت‌کننده نخواهد بود اما لازم است به ازای ارسال هر طرح ثبت‌نام مجدد و پرداخت مجزا انجام شود و یا ارسال به صورت تیم صورت پذیرد که در این صورت نیز نیاز به افزودن تیم در پنل کاربری و پرداخت ورودی مسابقه می‌باشد. (برای اطلاعات بیشتر در مورد تیم کلیک نمایید.)
• در طول مسابقه حتما پرسش و پاسخ‌ها را مطالعه کنید و قبل از ثبت سوال خود، سوالات دیگر طراحان را  که به آنها پاسخ داده شده مطالعه فرمایید.
• اگر مطلبی به مسابقه اضافه شود، در طول مسابقه با رنگ آبی به همراه تاریخ در قسمت توضیحات تکمیلی نوشته خواهد شد، لطفا در طول مسابقه اطلاعات پایه را مطالعه کنید.
• در طول مسابقه حتما وارد بخش اخبار مسابقه شوید و از آخرین اطلاعات مربوطه (حتی پس از پایان مسابقه) مطلع شوید.
• توجه داشته باشید ساعت اتمام ثبت نام و ارسال طرح ها برای تمامی مسابقات تا ساعت ۱۴ تاریخ اعلام شده می‌باشد.

رندر شما باید خصوصیات زیر را داشته باشند
• ابعاد JPG عرض حداکثر تا ۱۴۰۰ پیکسل
• ابعاد JPG طول حداکثر  تا ۱۴۰۰ پیکسل
• رزولوشن JPG حداکثر ۱۰۰
• فرمت عکس شما JPG
• حجم JPG شما ماکسیمم ۳ مگابایت

پیشنهاد و بازخورد