اطلاعات پروژه

نقش : طراح ارشد
کارفرما : دکتر کریمی و مهندس عبادی
نوع پروژه : طرح اجرایی
وضعیت : در حال اجرا
کاربری : ساختمان مسکونی
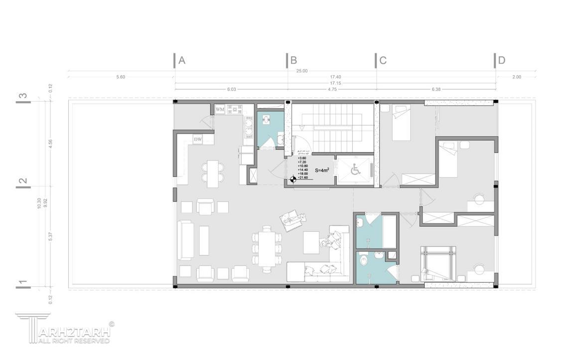
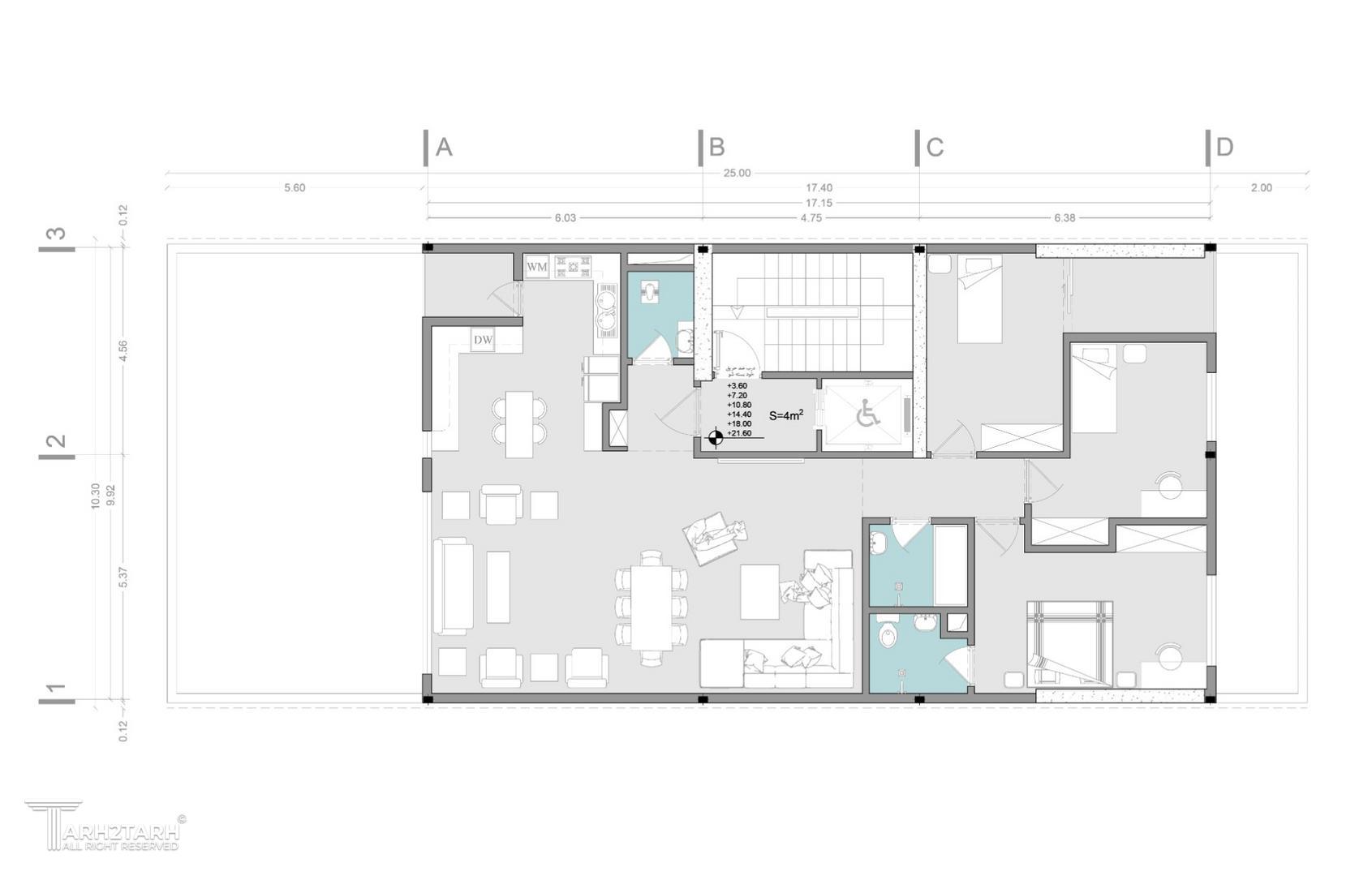
متراژ زمین : 250
متراژ زیربنا : 1200
سبک‌های طراحی: مدرن

خدمات ارائه شده توسط طراح

خدمات طراحی و کانسپت
مدلسازی
دکوراسیون داخلی
طراحی منظر، فضای سبز، لند اسکیپ، روف گاردن و محوطه
طراحی کابینت
طراحی سردرب
طراحی کانسپت (معماری)
طراحی نقشه فاز دو معماری
طراحی پلان (نقشه معماری) فاز 1
طراحی نما
طراحی داخلی
خدمات مشاوره و امکانسنجی
مشاوره تحلیل سایت پروژه
خدمات اجرایی و نظارتی
نظارت عالیه بر اجرا
خدمات فنی و مهندسی
اخذ تاییدیه نقشه پلان
اخذ تاییدیه نما
تهیه آلبوم نمای شهرداری
تهیه نقشه فاز دو شهرداری
تهیه نقشه فاز دو نظام مهندسی
مدل سازی
انجام تغییرات نقشه معماری
تهیه نقشه معماری فاز دو اجرایی
تهیه نقشه سازه فاز دو اجرایی
خدمات دیگر
رندرینگ

توضیحات پروژه

«پروژه همسایه ۲، واقع در بلوار دانش‌آموز شهر مشهد، تلاشی است برای بازتعریف مقیاس نما از طریق قاب‌بندی‌های متنوع. این قاب‌ها با ایجاد سایه‌بان‌های افقی و عمودی، نقش مؤثری در کنترل نور ورودی به ساختمان ایفا می‌کنند و هم‌زمان، از درون فضاها، چشم‌اندازها را به‌دقت قاب می‌گیرند. بدین‌گونه، نما نه‌تنها به مقیاس انسانی نزدیک می‌شود، بلکه به واسطه‌ی تعامل نور و دید، کیفیت فضایی تازه‌ای می‌یابد.

موقعیت مکانی پروژه

نظرات
پیشنهاد و بازخورد