اطلاعات پروژه

نقش : طراح ارشد
کارفرما : دکتر کریمی و مهندس عبادی
نوع پروژه : طرح اجرایی
وضعیت : در حال اجرا
کاربری : ساختمان مسکونی
متراژ زمین : 250
متراژ زیربنا : 1200
سبک‌های طراحی: مدرن

خدمات ارائه شده توسط طراح

خدمات طراحی و کانسپت
مدل‌سازی سه‌بعدی معماری
دکوراسیون داخلی
طراحی نورپردازی
طراحی نقشه سازه فولادی
طراحی کابینت
طراحی کانسپت (معماری)
طراحی نقشه فاز دو معماری
طراحی پلان (نقشه معماری) فاز 1
طراحی نما
طراحی داخلی
خدمات مشاوره و امکانسنجی
مشاوره تحلیل سایت پروژه
خدمات اجرایی و نظارتی
نظارت عالیه بر اجرا
خدمات فنی و مهندسی
اخذ تاییدیه نقشه پلان
اخذ تاییدیه نما
تهیه آلبوم نمای شهرداری
تهیه نقشه فاز دو شهرداری
تهیه نقشه فاز دو نظام مهندسی
رندرینگ و خدمات فنی
مدل سازی
انجام تغییرات نقشه معماری
خدمات دیگر
رندرینگ
عکاسی معماری

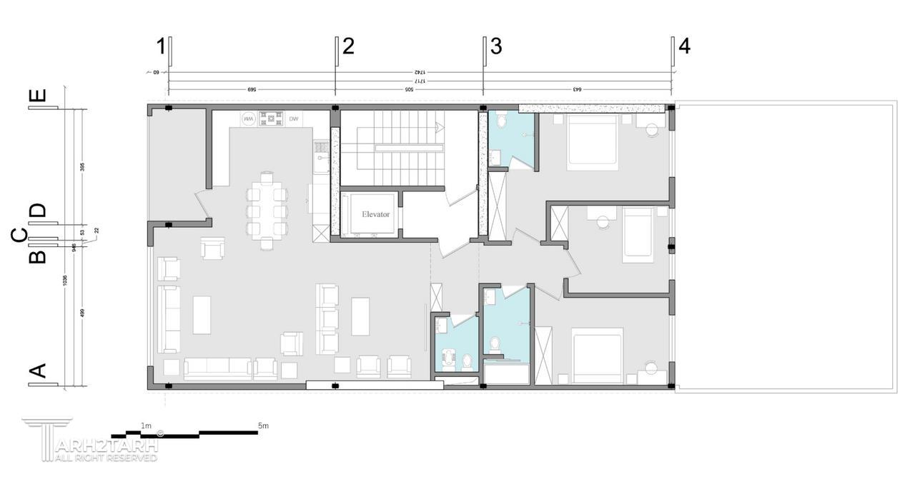
توضیحات پروژه

پروژه همسایه ۳، واقع در بلوار دانش‌آموز شهر مشهد، یک آپارتمان مسکونی است که در طراحی نمای آن تلاش شده تا با استفاده‌ی حداکثری از شیشه، از موقعیت پروژه بهره گرفته شود و دید مناسبی به پارک روبه‌رو فراهم آید. به‌کارگیری زاویه‌ها و قاب‌بندی‌های متنوع در نما، به ایجاد تنوع و پویایی در پروژه کمک کرده است. طراحی داخلی نیز با رویکردی مدرن و مینیمال انجام شده تا هماهنگی میان فرم، نور و فضای زیستی حفظ شود.

موقعیت مکانی پروژه

نظرات
پیشنهاد و بازخورد